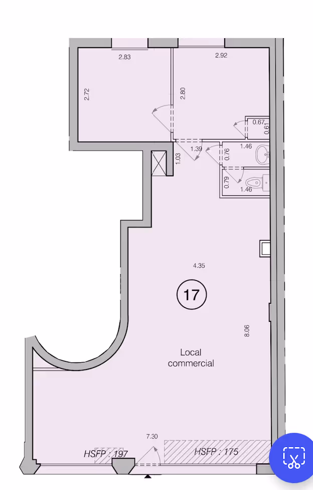
Location Pure - Local Commercial 92300 Levallois-Perret

Local Commercial | 68m² | Anatole-France

Restauration sans extraction
Restauration avec extraction
Murs libres
Murs occupés

Surface

Surface totale
68 m²
Surface RDC
68 m²
Surface Étage
Surface Sous-sol

Conditions financières

Prix
Loyer HT
Droit au bail
Charges
Prix au m²
Honoraires
Droit d'entrée

Description

WALLPARTNERS vous propose un local commercial / une boutique à proximité immédiate de Anatole-France , d'une surface totale d'environ 68 m2 de plain pied , sanitaire et point d'eau, excellent emplacement pour de la restauration rapide (froide), un salon d'esthétique ou coiffure , nombreuses enseignes à proximité.

Localisation du bien

VL2-4618
Prix net vendeur
Loyer HT
Pas de porte
Droit au bail HT
Appelez-nous
Thank you! Your submission has been received!
Oops! Something went wrong while submitting the form.
Merci ! Votre demande est envoyée.
Une erreur est survenue.
Partager l'annonce

Vous ne trouvez pas ce que vous cherchez ?

Nos équipes sont là vous vous aider.

Appelez-nous

Biens similaires

Vous ne trouvez pas ce que recherchez, ces biens pourraient peut-être vous intéresser.

Location
Nouveauté
Location Pure -
VL2-6063
Local Commercial | 33m² | Rochechouart
WALLPARTNERS vous propose un local commercial idéalement situé à proximité immédiate du métro Anvers, d’une surface totale d’environ 33m², comprenant : * un rez-de-chaussée de 21m², * un sous-sol, accessible directement depuis la boutique, d’environ 12m². Le local est équipé d’un point d’eau et de sanitaires. Emplacement stratégique, idéal pour un salon de coiffure ou toute autre activité commerciale. Nombreuses enseignes dynamiques à proximité. Vous êtes à la recherche d’un local commercial, d’une boutique, de bureaux ou d’un restaurant ? WALLPARTNERS, dispose d’un portefeuille de plus de 1 200 biens commerciaux disponibles à la location. N’hésitez pas à nous contacter pour une recherche personnalisée.
75009 Paris - Rochechouart
Prix net vendeur
Loyer HT
Pas de porte
Droit au bail
Button Text
Nouveauté
Location Pure -
VL2-6059
Local Commercial | 240m² | Sentier
WALLPARTNERS vous propose un local commercial idéalement situé en plein coeur du sentier, d’une surface totale d’environ 240m², comprenant : * un rez-de-chaussée de 70m², * un sous-sol avec plus 3M d'hauteur sous plafond, accessible directement depuis la boutique, d’environ 170m². Le local est équipé d’un point d’eau et de sanitaires. Emplacement stratégique, idéal pour une activité de restauration rapide sans extraction ou toute autre activité commerciale. Nombreuses enseignes dynamiques à proximité. Vous êtes à la recherche d’un local commercial, d’une boutique, de bureaux ou d’un restaurant ? WALLPARTNERS, dispose d’un portefeuille de plus de 1 200 biens commerciaux disponibles à la location. N’hésitez pas à nous contacter pour une recherche personnalisée.
75002 Paris - Sentier
Prix net vendeur
Loyer HT
Pas de porte
Droit au bail
Button Text
Nouveauté
Cession de bail -
VL2-6058
Local Commercial | 140m² | Frankin Rossevelt - Champs Élysées clémenceau
WALL PARTNERS vous propose un local commercial idéalement situé à proximité immédiate de , d’une surface totale d’environ 140 m², comprenant : * un rez-de-chaussée de 40 m², * un premier étage, accessible directement depuis la boutique, d’environ 100 m². Le local est équipé d’un point d’eau et de sanitaires. Emplacement stratégique, idéal pour une activité tertiaire, un showroom, club de pilâtes ou toute autre activité commerciale. Nombreuses enseignes dynamiques à proximité. Vous êtes à la recherche d’un local commercial, d’une boutique, de bureaux ou d’un restaurant ? WALLPARTNERS, dispose d’un portefeuille de plus de 1 200 biens commerciaux disponibles à la location. N’hésitez pas à nous contacter pour une recherche personnalisée.
75008 Paris - Frankin Rossevelt - Champs Élysées clémenceau
Prix net vendeur
Loyer HT
Pas de porte
Droit au bail
Button Text
Nouveauté
Location Pure -
VL2-6057
Local Commercial | 323m² | Lourmel
WALLPARTNERS vous propose un local commercial idéalement situé à proximité immédiate du métro Lourmel, d’une surface totale d’environ 323m² de plein-pied. Le local est équipé d’un point d’eau et de sanitaires. Emplacement stratégique, idéal pour une activité de cabinet médical ou toute autre activité commerciale. Nombreuses enseignes dynamiques à proximité. Vous êtes à la recherche d’un local commercial, d’une boutique, de bureaux ou d’un restaurant ? WALLPARTNERS, dispose d’un portefeuille de plus de 1 200 biens commerciaux disponibles à la location. N’hésitez pas à nous contacter pour une recherche personnalisée.
75015 Paris - Lourmel
Prix net vendeur
Loyer HT
Pas de porte
Droit au bail
Button Text
Nouveauté
Location Pure -
VL2-6056
Local Commercial | 40m² | Avenue d'Argenteuil
WALLPARTNERS vous propose un local commercial idéalement situé à proximité immédiate de l'avenue d'Argenteuil, d’une surface totale d’environ 40 m² le tout en rez-de-chaussée. Le local est équipé d’un point d’eau et de sanitaires. Emplacement stratégique, idéal pour une activité de restauration avec extraction ou toute autre activité commerciale. Nombreuses enseignes dynamiques à proximité. Vous êtes à la recherche d’un local commercial, d’une boutique, de bureaux ou d’un restaurant ? WALLPARTNERS, dispose d’un portefeuille de plus de 1 200 biens commerciaux disponibles à la location. N’hésitez pas à nous contacter pour une recherche personnalisée.
92600 Asnières-sur-Seine - Avenue d'Argenteuil
Prix net vendeur
Loyer HT
Pas de porte
Droit au bail
Button Text
Nouveauté
Location Pure -
VL2-6054
Local Commercial | 4329m² | Stade de France
WALLPARTNERS vous propose un local commercial idéalement situé à proximité immédiate du stade de france, d’une surface totale d’environ 4329m², comprenant : * un rez-de-chaussée de 4329m², *le batiment dispose d'un parking privatif de 313 places, Le local est équipé d’un point d’eau et de sanitaires. Emplacement stratégique, idéal pour une activité de restauration rapide sans extraction ou toute autre activité commerciale. Nombreuses enseignes dynamiques à proximité. Vous êtes à la recherche d’un local commercial, d’une boutique, de bureaux ou d’un restaurant ? WALLPARTNERS, dispose d’un portefeuille de plus de 1 200 biens commerciaux disponibles à la location. N’hésitez pas à nous contacter pour une recherche personnalisée.
93200 Saint-Denis - Stade de France
Prix net vendeur
Loyer HT
Pas de porte
Droit au bail
Button Text
Nouveauté
Location Pure -
VL2-6052
Local Professionnel | 154m² | Grands Boulevards
WALLPARTNERS vous propose des bureaux dans un immeuble ancien en pierre de taille idéalement situés à proximité immédiate des Grands boulevards, d’une surface totale d’environ 154 m² entièrement rénovés. Les parties communes offrent un bon standing et les locaux bénéficient d'une rénovation de type industriel, alliant luminosité et modernité. L'aménagement comprend un espace d'accueil, un grand open space, deux bureaux indépendants, ainsi qu'un espace détente avec kitchenette. Les bureaux sont équipés de la climatisation réversible et d'un câblage informatique complet. Cet espace convivial constitue une opportunité , idéale pour une start-up ou une jeune entreprise innovante. Vous êtes à la recherche d’un local commercial, d’une boutique, de bureaux ou d’un restaurant ? WALLPARTNERS, dispose d’un portefeuille de plus de 1 200 biens commerciaux disponibles à la location. N’hésitez pas à nous contacter pour une recherche personnalisée.
75002 Paris - Grands Boulevards
Prix net vendeur
Loyer HT
Pas de porte
Droit au bail
Button Text
Nouveauté
Location Pure -
VL2-6051
Local Commercial | 100m² | métro Rome
WALLPARTNERS vous propose un local commercial idéalement situé à proximité immédiate du métro Rome , d’une surface totale d’environ 100 m², comprenant : * un rez-de-chaussée de 70 m², * un sous-sol, accessible directement depuis la boutique, d’environ 30 m². Le local est équipé d’un point d’eau et de sanitaires. Emplacement stratégique, idéal pour une activité de restauration rapide sans extraction ou toute autre activité commerciale. Nombreuses enseignes dynamiques à proximité. Vous êtes à la recherche d’un local commercial, d’une boutique, de bureaux ou d’un restaurant ? WALLPARTNERS, dispose d’un portefeuille de plus de 1 200 biens commerciaux disponibles à la location. N’hésitez pas à nous contacter pour une recherche personnalisée.
75017 Paris - métro Rome
Prix net vendeur
Loyer HT
Pas de porte
Droit au bail
Button Text
Nouveauté
Location Pure -
VL2-6050
Local Commercial | 98m² | Bolivar
WALLPARTNERS vous propose un local commercial idéalement situé à seulement quelques mètres du métro Bolivar , d’une surface totale d’environ 98 m², comprenant : * un rez-de-chaussée de 75 m², * un sous-sol, accessible directement depuis la boutique, d’environ 23 m². Le local est équipé d’un point d’eau et de sanitaires. Emplacement stratégique, idéal pour une activité de restauration ou toute autre activité commerciale. Nombreuses enseignes dynamiques à proximité. Vous êtes à la recherche d’un local commercial, d’une boutique, de bureaux ou d’un restaurant ? WALLPARTNERS, dispose d’un portefeuille de plus de 1 200 biens commerciaux disponibles à la location. N’hésitez pas à nous contacter pour une recherche personnalisée.
75019 Paris - Bolivar
Prix net vendeur
Loyer HT
Pas de porte
Droit au bail
Button Text
Nouveauté
Location Pure -
VL2-6049
Local Commercial | 59m² | métro Notre Dame de Lorette
WALLPARTNERS vous propose un local commercial idéalement situé à proximité immédiate du métro Notre Dame de Lorette, d’une surface totale d’environ 59 m², comprenant : * un rez-de-chaussée de 43 m², * un sous-sol, accessible directement depuis la boutique, d’environ 16 m². Le local est équipé d’un point d’eau et de sanitaires. Emplacement stratégique, idéal pour une activité de restauration rapide sans extraction ou toute autre activité commerciale ( mode, décoration, beauté etc...) Nombreuses enseignes dynamiques à proximité. Vous êtes à la recherche d’un local commercial, d’une boutique, de bureaux ou d’un restaurant ? WALLPARTNERS, dispose d’un portefeuille de plus de 1 200 biens commerciaux disponibles à la location. N’hésitez pas à nous contacter pour une recherche personnalisée.
75009 Paris - métro Notre Dame de Lorette
Prix net vendeur
Loyer HT
Pas de porte
Droit au bail
Button Text
Nouveauté
Location Pure -
VL2-6048
Local Commercial | 90m² | Châtelet les Halles
WALL PARTNERS vous propose un local commercial idéalement situé à proximité immédiate de Châtelet les Halles , d’une surface totale d’environ 90 m², comprenant : * un rez-de-chaussée de 80 m², * un sous-sol, accessible directement depuis la boutique, d’environ 10 m². Le local est équipé d’un point d’eau et de sanitaires. Emplacement stratégique, idéal pour une activité de restauration rapide sans extraction ou toute autre activité commerciale. Nombreuses enseignes dynamiques à proximité. Vous êtes à la recherche d’un local commercial, d’une boutique, de bureaux ou d’un restaurant ? WALLPARTNERS, dispose d’un portefeuille de plus de 1 200 biens commerciaux disponibles à la location. N’hésitez pas à nous contacter pour une recherche personnalisée.
75001 Paris - Châtelet les Halles
Prix net vendeur
Loyer HT
Pas de porte
Droit au bail
Button Text
Nouveauté
Location Pure -
VL2-6041
Local Commercial | 57m² | Château Landon
WALL PARTNERS vous propose un local commercial idéalement situé à proximité immédiate de Chateau Landon, d’une surface totale d’environ 57 m², comprenant : * un rez-de-chaussée de 50 m², * un sous-sol, accessible depuis les parties communes, d’environ 7 m². Le local est équipé d’un point d’eau et de sanitaires. Emplacement stratégique, idéal pour une activité de restauration rapide sans extraction ou toute autre activité commerciale. Nombreuses enseignes dynamiques à proximité. Vous êtes à la recherche d’un local commercial, d’une boutique, de bureaux ou d’un restaurant ? WALLPARTNERS, dispose d’un portefeuille de plus de 1 200 biens commerciaux disponibles à la location. N’hésitez pas à nous contacter pour une recherche personnalisée.
75010 Paris - Château Landon
Prix net vendeur
Loyer HT
Pas de porte
Droit au bail
Button Text
Nouveauté
Location Pure -
VL2-6037
Local Commercial | 1081m² | Victor-Hugo/Trocadéro
WALL PARTNERS vous propose à la location un hôtel particulier indépendant de haut standing, idéalement situé dans le 16ᵉ arrondissement, à toute proximité du Trocadéro, au sein d’un environnement calme, résidentiel et recherché. L’immeuble développe une surface utile brute locative totale d’environ 887 m², répartie sur plusieurs niveaux, comprenant : • Sous-sol : environ 89 m², à usage de locaux techniques, stockage et annexes • Rez-de-chaussée : environ 259 m², composé de vastes espaces principaux, halls, circulations et sanitaires, avec accès à une cour intérieure • 1er étage : environ 189 m², comprenant bureaux, circulations, sanitaires et terrasse • 2ᵉ étage : environ 200 m², plateaux de bureaux fonctionnels et lumineux • 3ᵉ étage : environ 150 m², bureaux bénéficiant de balcons et terrasses À cela s’ajoutent des espaces extérieurs (terrasses et balcons) représentant environ 135 m². L’ensemble bénéficie de beaux volumes, d’une excellente luminosité, d’une distribution rationnelle et est desservi par escaliers et ascenseur. Locaux équipés de sanitaires à chaque niveau et de locaux techniques. Bien rare, offrant une grande flexibilité d’aménagement, idéal pour une activité institutionnelle ou tertiaire haut de gamme. 👉 Idéal notamment pour : • École privée ou établissement d’enseignement • Centre de formation ou campus exécutif • Centre de santé pluridisciplinaire • Centre esthétique ou clinique de soins haut de gamme • Siège social, cabinet de conseil ou bureaux de direction • Fondation, institution ou showroom de prestige 📞 Dossier complet et visites sur demande.
75116 Paris - Victor-Hugo/Trocadéro
Prix net vendeur
Loyer HT
Pas de porte
Droit au bail
Button Text
Nouveauté
Location Pure -
VL2-6040
Local Commercial | 15m² | Place d'Italie
WALL PARTNERS vous propose un local commercial à la sortié du centre commercial Italie 2 idéalement situé à proximité immédiate de la Place d'Italie, d’une surface totale d’environ 15 m², comprenant : * un rez-de-chaussée de 15 m², * un conduiot d'extraction Le local est équipé d’un point d’eau et de sanitaires. Emplacement stratégique, idéal pour une activité de restauration chaude ou toute autre activité commerciale. Nombreuses enseignes dynamiques à proximité. Vous êtes à la recherche d’un local commercial, d’une boutique, de bureaux ou d’un restaurant ? WALLPARTNERS, dispose d’un portefeuille de plus de 1 200 biens commerciaux disponibles à la location. N’hésitez pas à nous contacter pour une recherche personnalisée.
75013 Paris - Place d'Italie
Prix net vendeur
Loyer HT
Pas de porte
Droit au bail
Button Text
Nouveauté
Location Pure -
VL2-6038
Local Commercial | 85m² | Faubourg-saint-Honoré
WALLPARTNERS vous propose un local commercial idéalement situé à proximité immédiate de , d’une surface totale d’environ 85 m², comprenant : * un rez-de-chaussée de 45 m², * un sous-sol, accessible directement depuis la boutique, d’environ 40 m². Le local est équipé d’un point d’eau et de sanitaires. Emplacement stratégique, idéal pour une activité commerciale sauf de la restauration.. Nombreuses enseignes dynamiques à proximité. Vous êtes à la recherche d’un local commercial, d’une boutique, de bureaux ou d’un restaurant ? WALLPARTNERS, dispose d’un portefeuille de plus de 1 200 biens commerciaux disponibles à la location. N’hésitez pas à nous contacter pour une recherche personnalisée.
75008 Paris - Faubourg-saint-Honoré
Prix net vendeur
Loyer HT
Pas de porte
Droit au bail
Button Text
Nouveauté
Vente - OCC
VL2-6019
Local Commercial | 135m² | Asnières - Centre
WALLPARTNERS vous propose un local commercial idéalement situé à proximité immédiate de la gare de Bois-Colombes, d’une surface totale d’environ 135m², comprenant : * un rez-de-chaussée de 90m², * un sous-sol, accessible directement depuis la boutique, d’environ 45m². Le local est équipé d’un point d’eau et de sanitaires. Emplacement stratégique, idéal pour une activité de restauration ou toute autre activité commerciale. Nombreuses enseignes dynamiques à proximité. Vous êtes à la recherche d’un local commercial, d’une boutique, de bureaux ou d’un restaurant ? WALLPARTNERS, dispose d’un portefeuille de plus de 1 200 biens commerciaux disponibles à la location. N’hésitez pas à nous contacter pour une recherche personnalisée.
92600 Asnières-sur-Seine - Asnières - Centre
Prix net vendeur
Loyer HT
Pas de porte
Droit au bail
Button Text
Nouveauté
Location Pure -
VL2-6035
Local Commercial | 311m² | Bibliothéque Francois Mitterand
WALLPARTNERS vous propose un local commercial idéalement situé à proximité immédiate de La Bibliothèque Francois Mitterrand, d’une surface totale d’environ 311m², comprenant : * un rez-de-chaussée de 271 m², * un sous-sol, accessible directement depuis la boutique, d’environ40 m². Le local est équipé de tout l'équipement nécessaire pour une activité de restauration d’un point d’eau et de sanitaires. Emplacement stratégique, idéal pour une activité de restauration avec extraction de 400 ou toute autre activité commerciale. Nombreuses enseignes dynamiques à proximité. Vous êtes à la recherche d’un local commercial, d’une boutique, de bureaux ou d’un restaurant ? WALLPARTNERS, dispose d’un portefeuille de plus de 1 200 biens commerciaux disponibles à la location. N’hésitez pas à nous contacter pour une recherche personnalisée.
75013 Paris - Bibliothéque Francois Mitterand
Prix net vendeur
Loyer HT
Pas de porte
Droit au bail
Button Text
Nouveauté
Location Pure -
VL2-6034
Local Commercial | 78m² | Montmartre
WALL PARTNERS vous propose un local commercial idéalement situé à l'entrée de Montmartre, d’une surface totale d’environ 78m², comprenant : * un rez-de-chaussée de 58m², * un sous-sol, accessible directement depuis les parties communes, d’environ 20m². Le local est équipé d’un point d’eau et de sanitaires. Emplacement stratégique, idéal pour une activité de services, esthétique, ou toute autre activité commerciale. Nombreuses enseignes dynamiques à proximité. Vous êtes à la recherche d’un local commercial, d’une boutique, de bureaux ou d’un restaurant ? WALLPARTNERS, dispose d’un portefeuille de plus de 1 200 biens commerciaux disponibles à la location. N’hésitez pas à nous contacter pour une recherche personnalisée.
75018 Paris - Montmartre
Prix net vendeur
Loyer HT
Pas de porte
Droit au bail
Button Text
Nouveauté
Location Pure -
VL2-6033
Local Commercial | 100m² | Javel
WALLPARTNERS vous propose un local commercial idéalement situé à proximité immédiate de , d’une surface totale d’environ m², comprenant : * un rez-de-chaussée de m², * un sous-sol, accessible directement depuis la boutique, d’environ m². Le local est équipé d’un point d’eau et de sanitaires. Emplacement stratégique, idéal pour une activité de restauration rapide sans extraction ou toute autre activité commerciale. Nombreuses enseignes dynamiques à proximité. Vous êtes à la recherche d’un local commercial, d’une boutique, de bureaux ou d’un restaurant ? WALLPARTNERS, dispose d’un portefeuille de plus de 1 200 biens commerciaux disponibles à la location. N’hésitez pas à nous contacter pour une recherche personnalisée.
75015 Paris - Javel
Prix net vendeur
Loyer HT
Pas de porte
Droit au bail
Button Text
Nouveauté
Location -
VL2-6028
Local Commercial | 112m² | Ternes/Wagram
WALLPARTNERS vous propose un local commercial idéalement situé à proximité immédiate de , d’une surface totale d’environ 112 m², comprenant : * un rez-de-chaussée de 82 m², * un sous-sol, accessible directement depuis la boutique, d’environ 30 m². Le local est équipé de tout équipement pour un restaurant, également d’un point d’eau et de sanitaires. Emplacement stratégique, idéal pour une activité de restauration rapide avec extraction ou toute autre activité commerciale. Nombreuses enseignes dynamiques à proximité. Vous êtes à la recherche d’un local commercial, d’une boutique, de bureaux ou d’un restaurant ? WALLPARTNERS, dispose d’un portefeuille de plus de 1 200 biens commerciaux disponibles à la location. N’hésitez pas à nous contacter pour une recherche personnalisée.
75017 Paris - Ternes/Wagram
Prix net vendeur
Loyer HT
Pas de porte
Droit au bail
Button Text
Nouveauté
Vente - LIB
VL2-6021
Local Commercial | 205m² | Sainte-Catherine
WALL PARTNERS vous propose un ensemble immobilier (local commercial, courette privative, bâtiment arrière) à la vente qui comprend les lots 6, 7 et 14 d'une petite copropriété. Idéalement situé à proximité immédiate du Palais des Sports de Bordeaux, d’une surface totale d’environ 205m², comprenant : * une boutique pignon sur rue de 95m² de plain pied, * une courette privative de 37m² accessible depuis la boutique ainsi que les parties communes, * un bâtiment, accessible directement depuis la courette, d’environ 73m² au sol, à destination commerciale ou professionnelle. Grande hauteur, actuellement RDC + mezzanine (R+1) + mezzanine (R+2). Emplacement numéro 1 à Bordeaux, idéal pour de l'investissement locatif ou marchand de biens. Nombreuses enseignes dynamiques à proximité. Vous êtes à la recherche d’un local commercial, d’une boutique, de bureaux ou d’un restaurant ? WALLPARTNERS, dispose d’un portefeuille de plus de 1 200 biens commerciaux disponibles à la location. N’hésitez pas à nous contacter pour une recherche personnalisée.
33000 Bordeaux - Sainte-Catherine
Prix net vendeur
Loyer HT
Pas de porte
Droit au bail
Button Text
Nouveauté
Location Pure -
VL2-6023
Local Commercial | 52m² | Courcelles
WALLPARTNERS vous propose un local commercial idéalement situé à proximité immédiate de la place des Ternes, d’une surface totale d’environ 52 m², comprenant : * un rez-de-chaussée de 30 m², * un sous-sol, accessible directement depuis la boutique, d’environ 22 m². Le local est équipé d’un point d’eau et de sanitaires. Emplacement stratégique, idéal pour une activité de restauration rapide sans extraction ou toute autre activité commerciale. Nombreuses enseignes dynamiques à proximité. Vous êtes à la recherche d’un local commercial, d’une boutique, de bureaux ou d’un restaurant ? WALLPARTNERS, dispose d’un portefeuille de plus de 1 200 biens commerciaux disponibles à la location. N’hésitez pas à nous contacter pour une recherche personnalisée.
75008 Paris - Courcelles
Prix net vendeur
Loyer HT
Pas de porte
Droit au bail
Button Text
Nouveauté
Location Pure -
VL2-6022
Local Commercial | 143m² | Voltaire
WALLPARTNERS vous propose un local commercial idéalement situé à proximité immédiate de , d’une surface totale d’environ 143 m², comprenant : * un rez-de-chaussée de 101 m², * un sous-sol, accessible directement depuis la boutique, d’environ 42 m². Le local est équipé d’un point d’eau et de sanitaires. Emplacement stratégique, idéal pour une activité de restauration rapide sans extraction ou toute autre activité commerciale. Nombreuses enseignes dynamiques à proximité. Vous êtes à la recherche d’un local commercial, d’une boutique, de bureaux ou d’un restaurant ? WALLPARTNERS, dispose d’un portefeuille de plus de 1 200 biens commerciaux disponibles à la location. N’hésitez pas à nous contacter pour une recherche personnalisée.
75011 Paris - Voltaire
Prix net vendeur
Loyer HT
Pas de porte
Droit au bail
Button Text
Nouveauté
Location Pure -
VL2-6020
Local Commercial | 370m² | Sentier
WALL PARTNERS vous propose un local commercial idéalement situé à proximité immédiate du métro Sentier ainsi que de la rue des Petits Carreaux, d’une surface totale d’environ 370m², comprenant : * un rez-de-chaussée de 100m², * un premier étage de 120m², * un sous-sol, accessible directement depuis la boutique, d’environ 150m². Le local est équipé d’un ascenseur qui dessert les trois niveaux, accès aux parties communes dont sortie de secours également à chaque niveaux. Une terrasse d'une surface d'environ 20m² se trouve à l'étage. Emplacement stratégique, idéal pour une activité de showroom, pilates, spa... ou toute autre activité commerciale. Nombreuses enseignes dynamiques à proximité. Vous êtes à la recherche d’un local commercial, d’une boutique, de bureaux ou d’un restaurant ? WALLPARTNERS, dispose d’un portefeuille de plus de 1 200 biens commerciaux disponibles à la location. N’hésitez pas à nous contacter pour une recherche personnalisée.
75002 Paris - Sentier
Prix net vendeur
Loyer HT
Pas de porte
Droit au bail
Button Text
Nouveauté
Location Pure -
VL2-6016
Local Commercial | 30m² | Porte d'Auteuil
WALLPARTNERS vous propose un local commercial idéalement situé à proximité immédiate du Boulevard Exelmans , d’une surface totale d’environ 30 m², comprenant : * un rez-de-chaussée de 30 m², Le local est équipé d’un point d’eau et de sanitaires. Emplacement stratégique, idéal pour une activité de restauration rapide sans extraction ou toute autre activité commerciale. Nombreuses enseignes dynamiques à proximité. Vous êtes à la recherche d’un local commercial, d’une boutique, de bureaux ou d’un restaurant ? WALLPARTNERS, dispose d’un portefeuille de plus de 1 200 biens commerciaux disponibles à la location. N’hésitez pas à nous contacter pour une recherche personnalisée.
75016 Paris - Porte d'Auteuil
Prix net vendeur
Loyer HT
Pas de porte
Droit au bail
Button Text
Nouveauté
Location -
VL2-6012
Local Commercial | 30m² | République
WALLPARTNERS vous propose un local commercial idéalement situé à proximité immédiate de la place de la république , d’une surface totale d’environ 30m², comprenant : * un rez-de-chaussée de 30 m² Le local est équipé d’un point d’eau et de sanitaires. Emplacement stratégique, idéal pour une activité de restauration rapide sans extraction ou toute autre activité commerciale. Nombreuses enseignes dynamiques à proximité. Vous êtes à la recherche d’un local commercial, d’une boutique, de bureaux ou d’un restaurant ? WALLPARTNERS, dispose d’un portefeuille de plus de 1 200 biens commerciaux disponibles à la location. N’hésitez pas à nous contacter pour une recherche personnalisée.
75011 Paris - République
Prix net vendeur
Loyer HT
Pas de porte
Droit au bail
Button Text
Nouveauté
Location -
VL2-6007
Local Commercial | 35m² | Trocadéro
WALLPARTNERS vous propose un local commercial idéalement situé à proximité immédiate de , d’une surface totale d’environ 35 m², comprenant : * un rez-de-chaussée de 35 m², * une terrasse d'une dizaine de m2, Le local est équipé d’un point d’eau et une possibilité d'ajouter 14m2 au sous-sol comprenant des WC pour un loyer supérieur. Emplacement stratégique, idéal pour une activité de restauration rapide sans extraction ou toute autre activité commerciale. Nombreuses enseignes dynamiques à proximité. Vous êtes à la recherche d’un local commercial, d’une boutique, de bureaux ou d’un restaurant ? WALLPARTNERS, dispose d’un portefeuille de plus de 1 200 biens commerciaux disponibles à la location. N’hésitez pas à nous contacter pour une recherche personnalisée.
75116 Paris - Trocadéro
Prix net vendeur
Loyer HT
Pas de porte
Droit au bail
Button Text
Nouveauté
Vente - LIB
VL2-6008
Local Commercial | 28m² | métro Vaugirard
WALLPARTNERS vous propose un local commercial à vendre libre idéalement situé à proximité immédiate du métro Vaugirard , d’une surface totale d’environ 28 m², comprenant : * un rez-de-chaussée de 16 m², * un sous-sol, accessible directement depuis la boutique, d’environ 12 m². Le local est équipé d’un point d’eau et de sanitaires. Emplacement stratégique, idéal pour une activité de restauration rapide sans extraction ou toute autre activité commerciale. Nombreuses enseignes dynamiques à proximité. Vous êtes à la recherche d’un local commercial, d’une boutique, de bureaux ou d’un restaurant ? WALLPARTNERS, dispose d’un portefeuille de plus de 1 200 biens commerciaux disponibles à la location. N’hésitez pas à nous contacter pour une recherche personnalisée.
75015 Paris - métro Vaugirard
Prix net vendeur
Loyer HT
Pas de porte
Droit au bail
Button Text
Nouveauté
Cession de bail -
VL2-6006
Local Commercial | 40m² | Villiers
WALLPARTNERS vous propose un local commercial idéalement situé à proximité immédiate du Métro Villiers , d’une surface totale d’environ 25 m², comprenant : * un rez-de-chaussée de 25 m², * une cave, accessible depuis l'immeuble mitoyen, d’environ 15 m². Le local est équipé d’un point d’eau et de sanitaires. Emplacement stratégique, idéal pour une activité de restauration rapide sans extraction ou toute autre activité commerciale. Nombreuses enseignes dynamiques à proximité. Vous êtes à la recherche d’un local commercial, d’une boutique, de bureaux ou d’un restaurant ? WALLPARTNERS, dispose d’un portefeuille de plus de 1 200 biens commerciaux disponibles à la location. N’hésitez pas à nous contacter pour une recherche personnalisée.
75017 Paris - Villiers
Prix net vendeur
Loyer HT
Pas de porte
Droit au bail
Button Text
Nouveauté
Location Pure -
VL2-5999
Local Commercial | 360m² | Hyper centre
WALLPARTNERS vous propose un local commercial idéalement situé à proximité immédiate de , d’une surface totale d’environ 360m², comprenant : * un rez-de-chaussée de 175m², * un premier étage, accessible directement depuis la boutique, d’environ 185m². Le local est équipé d’un point d’eau et de sanitaires. Emplacement stratégique, idéal pour une activité de restauration rapide sans extraction ou toute autre activité commerciale. Nombreuses enseignes dynamiques à proximité. Vous êtes à la recherche d’un local commercial, d’une boutique, de bureaux ou d’un restaurant ? WALLPARTNERS, dispose d’un portefeuille de plus de 1 200 biens commerciaux disponibles à la location. N’hésitez pas à nous contacter pour une recherche personnalisée.
83000 Toulon - Hyper centre
Prix net vendeur
Loyer HT
Pas de porte
Droit au bail
Button Text
Nouveauté
Location Pure -
VL2-3455
Local Commercial | 180m² | Pont Garigliano
WALLPARTNERS vous propose un local commercial / une boutique d'angle à proximité immédiate du pont de Garigliano disposant d'un conduit d'extraction à rénover, d'une surface totale d'environ 180m2 comprenant un rez-de-chaussée d'environ 150m2 et un sous-sol d'environ 30m2 le sous-sol est accessible par la boutique, sanitaire et point d'eau, excellent emplacement pour de la restauration, creche, salle de sport..
75016 Paris - Pont Garigliano
Prix net vendeur
Loyer HT
Pas de porte
Droit au bail
Button Text
Nouveauté
Location Pure -
VL2-5998
Local Commercial | 59m² | Alésia
WALLPARTNERS vous propose un local commercial idéalement situé à proximité immédiate du métro Alésia, d’une surface totale d’environ 59m², comprenant : * un rez-de-chaussée de 44m², * un sous-sol, accessible directement depuis la boutique, d’environ 15m². Le local est équipé d’un point d’eau et de sanitaires. Emplacement stratégique, idéal pour une activité de restauration rapide sans extraction ou toute autre activité commerciale. Nombreuses enseignes dynamiques à proximité. Vous êtes à la recherche d’un local commercial, d’une boutique, de bureaux ou d’un restaurant ? WALLPARTNERS, dispose d’un portefeuille de plus de 1 200 biens commerciaux disponibles à la location. N’hésitez pas à nous contacter pour une recherche personnalisée.
75014 Paris - Alésia
Prix net vendeur
Loyer HT
Pas de porte
Droit au bail
Button Text
Nouveauté
Location Pure -
VL2-5997
Local Commercial | 35m² | Vaneau
WALLPARTNERS vous propose un local commercial idéalement situé à proximité immédiate du Bon Marché, d’une surface totale d’environ 35m², comprenant : * un rez-de-chaussée de 15m², * un R+1, accessible depuis la boutique ainsi que depuis les parties communes, d’environ 20m². Le local est équipé d’un point d’eau et de sanitaires. Emplacement stratégique, idéal pour une activité de restauration rapide sans extraction ou toute autre activité commerciale. Nombreuses enseignes dynamiques à proximité. Vous êtes à la recherche d’un local commercial, d’une boutique, de bureaux ou d’un restaurant ? WALLPARTNERS, dispose d’un portefeuille de plus de 1 200 biens commerciaux disponibles à la location. N’hésitez pas à nous contacter pour une recherche personnalisée.
75007 Paris - Vaneau
Prix net vendeur
Loyer HT
Pas de porte
Droit au bail
Button Text
Nouveauté
Cession de bail -
VL2-5990
Local Commercial | 140m² | Convention - Fontainebleau
WALLPARTNERS vous propose un local commercial idéalement situé à proximité immédiate de , d’une surface totale d’environ 140m², comprenant : * un rez-de-chaussée de 60m², * un sous-sol, accessible directement depuis la boutique, d’environ 80m². Le local est équipé d’un point d’eau et de sanitaires, idéal pour une activité de primeur ou toute autre activité commerciale. Nombreuses enseignes dynamiques à proximité. Vous êtes à la recherche d’un local commercial, d’une boutique, de bureaux ou d’un restaurant ? WALLPARTNERS, dispose d’un portefeuille de plus de 1 200 biens commerciaux disponibles à la location. N’hésitez pas à nous contacter pour une recherche personnalisée.
94270 Le Kremlin-Bicêtre - Convention - Fontainebleau
Prix net vendeur
Loyer HT
Pas de porte
Droit au bail
Button Text
Nouveauté
Location Pure -
VL2-5992
Local Commercial | 98m² | Invalides/ Rue du Bac
WALL PARTNERS vous propose un hôtel Particulier indépendant sur cour idéalement situé à proximité immédiate de , d’une surface totale d’environ 98 m², comprenant : * un rez-de-chaussée de 56 m², * un premier étage, accessible directement depuis la boutique, d’environ 42 m². Le local est équipé d’un point d’eau et de sanitaires. Vous êtes à la recherche d’un local commercial, d’une boutique, de bureaux ou d’un restaurant ? WALLPARTNERS, dispose d’un portefeuille de plus de 1 200 biens commerciaux disponibles à la location. N’hésitez pas à nous contacter pour une recherche personnalisée.
75007 Paris - Invalides/ Rue du Bac
Prix net vendeur
Loyer HT
Pas de porte
Droit au bail
Button Text
Nouveauté
Location Pure -
VL2-5986
Local Commercial | 190m² | RER A - Maisons Laffitte
WALL PARTNERS vous propose un local commercial idéalement situé à proximité immédiate de la Gare et de la Mairie de Maisons Laffitte, d’une surface totale d’environ 190m², comprenant : * une surface de vente en rez-de-chaussée de 138m², * un espace extérieur de 52m², accessible directement depuis la boutique, comprenant 20m² de terrasse ainsi que 32m² de jardin. Le local est équipé d’un point d’eau et de sanitaires. Emplacement stratégique, idéal pour une activité de restauration, crèche, pilates ou toute autre activité commerciale. Nombreuses enseignes dynamiques à proximité. Vous êtes à la recherche d’un local commercial, d’une boutique, de bureaux ou d’un restaurant ? WALLPARTNERS, dispose d’un portefeuille de plus de 1 200 biens commerciaux disponibles à la location. N’hésitez pas à nous contacter pour une recherche personnalisée.
78600 Maisons-Laffitte - RER A - Maisons Laffitte
Prix net vendeur
Loyer HT
Pas de porte
Droit au bail
Button Text
Nouveauté
Vente - LIB
VL2-5984
Local Commercial | 170m² | Charles Michels
WALL PARTNERS vous propose un local commercial à vendre, libre de toute occupation, idéalement situé à proximité immédiate du centre commercial de Beaugrenelle, d’une surface totale d’environ 170m², comprenant : * un rez-de-chaussée de 138m², * un sous-sol, accessible directement depuis la boutique, d’environ 32m². Le local est équipé d’un point d’eau et de sanitaires. Emplacement stratégique, idéal pour une activité de bureaux, pilates, assurance ou encore centre esthétique. Nombreuses enseignes dynamiques à proximité. Vous êtes à la recherche d’un local commercial, d’une boutique, de bureaux ou d’un restaurant ? WALLPARTNERS, dispose d’un portefeuille de plus de 1 200 biens commerciaux disponibles à la location. N’hésitez pas à nous contacter pour une recherche personnalisée.
75015 Paris - Charles Michels
Prix net vendeur
Loyer HT
Pas de porte
Droit au bail
Button Text
Nouveauté
Location Pure -
VL2-5983
Local Commercial | 170m² | Charles Michels
WALL PARTNERS vous propose un local commercial idéalement situé à proximité immédiate du centre commercial de Beaugrenelle, d’une surface totale d’environ 170m², comprenant : * un rez-de-chaussée de 138m², * un sous-sol, accessible directement depuis la boutique, d’environ 32m². Le local est équipé d’un point d’eau et de sanitaires. Emplacement stratégique, idéal pour une activité de bureaux, pilates, assurance ou encore centre esthétique. Nombreuses enseignes dynamiques à proximité. Vous êtes à la recherche d’un local commercial, d’une boutique, de bureaux ou d’un restaurant ? WALLPARTNERS, dispose d’un portefeuille de plus de 1 200 biens commerciaux disponibles à la location. N’hésitez pas à nous contacter pour une recherche personnalisée.
75015 Paris - Charles Michels
Prix net vendeur
Loyer HT
Pas de porte
Droit au bail
Button Text
Nouveauté
Location Pure -
VL2-5982
Local Professionnel | 173m² | Strasbourg - Saint-Denis
WALLPARTNERS vous propose des bureaux idéalement situés à proximité immédiate du métro Strasbourg – Saint-Denis. D’une surface totale d’environ 175 m², le bien se compose d’un rez-de-chaussée de 175 m², facilement aménageable selon vos besoins. Les bureaux disposent d’un point d’eau ainsi que de sanitaires. L’emplacement est stratégique et parfaitement adapté à une activité de bureaux, cabinets professionnels, showroom ou toute autre activité tertiaire. L’environnement est dynamique, avec de nombreuses enseignes et services à proximité immédiate. Vous êtes à la recherche de bureaux, d’un local commercial ou d’un espace professionnel adapté à votre activité ? WALLPARTNERS dispose d’un portefeuille de plus de 1 200 biens professionnels disponibles à la location. Contactez-nous dès maintenant pour une recherche personnalisée et sur mesure.
75010 Paris - Strasbourg - Saint-Denis
Prix net vendeur
Loyer HT
Pas de porte
Droit au bail
Button Text
Nouveauté
Location Pure -
VL2-5981
Local Commercial | 112m² | Place aragon
WALLPARTNERS vous propose un local commercial idéalement situé à Colombes, d’une surface totale d’environ 112 m², entièrement en rez-de-chaussée. Le local bénéficie d’une extraction de 400 mm, d’un point d’eau et de sanitaires, le rendant parfaitement adapté à une activité de restauration ou de restauration rapide. Emplacement stratégique, offrant une bonne visibilité et un environnement commerçant avec de nombreuses enseignes dynamiques à proximité. Convient également à toute autre activité commerciale
92700 Colombes - Place aragon
Prix net vendeur
Loyer HT
Pas de porte
Droit au bail
Button Text
Nouveauté
Location Pure -
VL2-5979
Local Commercial | 133m² | Pigalle
WALLPARTNERS vous propose un local commercial idéalement situé à proximité immédiate du métro Pigalle , d’une surface totale d’environ 133m², comprenant : * un rez-de-chaussée de 103m², * un sous-sol, accessible directement depuis la boutique, d’environ 30m². Le local est équipé d’un point d’eau et de sanitaires. Emplacement stratégique, idéal pour une activité de restauration rapide avec petite extraction 200MM ou toute autre activité commerciale. Nombreuses enseignes dynamiques à proximité. Vous êtes à la recherche d’un local commercial, d’une boutique, de bureaux ou d’un restaurant ? WALLPARTNERS, dispose d’un portefeuille de plus de 1200 biens commerciaux disponibles à la location. N’hésitez pas à nous contacter pour une recherche personnalisée.
75009 Paris - Pigalle
Prix net vendeur
Loyer HT
Pas de porte
Droit au bail
Button Text
Nouveauté
Location Pure -
VL2-5976
Local Commercial | 42m² | Jasmin
WALLPARTNERS vous propose un local commercial idéalement situé à proximité immédiate de , d’une surface totale d’environ 42m², comprenant : * un rez-de-chaussée de 18m², * un R+1, d'environ 15m² * un sous-sol, accessible directement depuis la boutique, d’environ 9m². Le local est équipé d’un point d’eau et de sanitaires. Emplacement stratégique, idéal pour une activité de prêt à porter ou toute autre activité commerciale. Nombreuses enseignes dynamiques à proximité. Vous êtes à la recherche d’un local commercial, d’une boutique, de bureaux ou d’un restaurant ? WALLPARTNERS, dispose d’un portefeuille de plus de 1 200 biens commerciaux disponibles à la location. N’hésitez pas à nous contacter pour une recherche personnalisée.
75016 Paris - Jasmin
Prix net vendeur
Loyer HT
Pas de porte
Droit au bail
Button Text
Nouveauté
Location Pure -
VL2-5977
Local Commercial | 68m² | métro Vavin
WALLPARTNERS vous propose un local commercial idéalement situé à proximité immédiate du métro Vavin, d’une surface totale d’environ 68 m², comprenant : * un rez-de-chaussée de 60 m², * un sous-sol, accessible directement depuis la boutique, d’environ 8 m². Le local est équipé d’un point d’eau et de sanitaires. Emplacement stratégique, idéal pour une activité de restauration rapide sans extraction ou toute autre activité commerciale. Nombreuses enseignes dynamiques à proximité. Vous êtes à la recherche d’un local commercial, d’une boutique, de bureaux ou d’un restaurant ? WALLPARTNERS, dispose d’un portefeuille de plus de 1 200 biens commerciaux disponibles à la location. N’hésitez pas à nous contacter pour une recherche personnalisée.
75014 Paris - métro Vavin
Prix net vendeur
Loyer HT
Pas de porte
Droit au bail
Button Text
Nouveauté
Location Pure -
VL2-5972
Local Commercial | 84m² | métro Marx Dormoy
WALLPARTNERS vous propose un local commercial idéalement situé à proximité immédiate du métro Marx Dormoy, d’une surface totale d’environ 84 m², comprenant : * un rez-de-chaussée de 54 m², * un sous-sol, accessible directement depuis la boutique, d’environ 30 m². Le local est équipé d’un point d’eau et de sanitaires. Emplacement stratégique, idéal pour une activité de restauration rapide sans extraction ou toute autre activité commerciale. Nombreuses enseignes dynamiques à proximité. Vous êtes à la recherche d’un local commercial, d’une boutique, de bureaux ou d’un restaurant ? WALLPARTNERS, dispose d’un portefeuille de plus de 1 200 biens commerciaux disponibles à la location. N’hésitez pas à nous contacter pour une recherche personnalisée.
75018 Paris - métro Marx Dormoy
Prix net vendeur
Loyer HT
Pas de porte
Droit au bail
Button Text
Nouveauté
Location Pure -
VL2-5971
Local Commercial | 58m² | métro Guy Moquet
WALLPARTNERS vous propose un local commercial idéalement situé à proximité immédiate du métro Guy Moquet , d’une surface totale d’environ 58 m²le tout en rez-de-chaussée. Le local est équipé d’un point d’eau et de sanitaires. Emplacement stratégique, idéal pour une activité de restauration rapide sans extraction ou toute autre activité commerciale. Nombreuses enseignes dynamiques à proximité. Vous êtes à la recherche d’un local commercial, d’une boutique, de bureaux ou d’un restaurant ? WALLPARTNERS, dispose d’un portefeuille de plus de 1 200 biens commerciaux disponibles à la location. N’hésitez pas à nous contacter pour une recherche personnalisée.
75018 Paris - métro Guy Moquet
Prix net vendeur
Loyer HT
Pas de porte
Droit au bail
Button Text
Nouveauté
Location Pure -
VL2-5970
Local Commercial | 335m² | rue du Bourg
WALLPARTNERS vous propose un local commercial idéalement situé à proximité immédiate de la rue du Bourg , d’une surface totale d’environ 335 m², comprenant : * un rez-de-chaussée de 245 m², * un sous-sol, accessible directement depuis la boutique, d’environ 90 m². Le local est équipé d’un point d’eau et de sanitaires. Emplacement stratégique, idéal pour une activité de restauration rapide sans extraction ou toute autre activité commerciale. Nombreuses enseignes dynamiques à proximité. Vous êtes à la recherche d’un local commercial, d’une boutique, de bureaux ou d’un restaurant ? WALLPARTNERS, dispose d’un portefeuille de plus de 1 200 biens commerciaux disponibles à la location. N’hésitez pas à nous contacter pour une recherche personnalisée.
21000 Dijon - rue du Bourg
Prix net vendeur
Loyer HT
Pas de porte
Droit au bail
Button Text
Nouveauté
Location Pure -
VL2-5969
Local Commercial | 86m² | Boulevard de la plage
WALLPARTNERS vous propose un local commercial en pleine propriété dans une rue très recherchée , idéalement situé à proximité immédiate du Boulevard de la plage , d’une surface totale d’environ 86 m², comprenant : * un rez-de-chaussée de 44 m², * un étage accessible directement depuis la boutique, d’environ 42 m². Le local est équipé d’un point d’eau et de sanitaires. Emplacement stratégique, idéal pour une activité de restauration rapide sans extraction ou toute autre activité commerciale. Nombreuses enseignes dynamiques à proximité. Vous êtes à la recherche d’un local commercial, d’une boutique, de bureaux ou d’un restaurant ? WALLPARTNERS, dispose d’un portefeuille de plus de 1 200 biens commerciaux disponibles à la location. N’hésitez pas à nous contacter pour une recherche personnalisée.
62520 Le Touquet-Paris-Plage - Boulevard de la plage
Prix net vendeur
Loyer HT
Pas de porte
Droit au bail
Button Text
Nouveauté
Location Pure -
VL2-5968
Local Commercial | 85m² | Madeleine
WALLPARTNERS vous propose un local commercial idéalement situé à proximité immédiate de la Place de la Madeleine , d’une surface totale d’environ 85 m²le tout en rez-de-chaussée. Le local est équipé d’un point d’eau et de sanitaires. Emplacement stratégique, idéal pour une activité de restauration rapide sans extraction ou toute autre activité commerciale. Nombreuses enseignes dynamiques à proximité. Vous êtes à la recherche d’un local commercial, d’une boutique, de bureaux ou d’un restaurant ? WALLPARTNERS, dispose d’un portefeuille de plus de 1 200 biens commerciaux disponibles à la location. N’hésitez pas à nous contacter pour une recherche personnalisée.
75008 Paris - Madeleine
Prix net vendeur
Loyer HT
Pas de porte
Droit au bail
Button Text
Nouveauté
Cession de bail -
VL2-5967
Local Commercial | 78m² | Versailles - Centre
WALLPARTNERS vous propose un local commercial idéalement situé à proximité immédiate de , d’une surface totale d’environ 78m², comprenant : * un rez-de-chaussée de 44 m², * un R+1, accessible directement depuis la boutique, d’environ 34m². Le local est équipé d’un point d’eau et de sanitaires. Emplacement stratégique, idéal pour une activité de restauration rapide sans extraction ou toute autre activité commerciale. Nombreuses enseignes dynamiques à proximité. Vous êtes à la recherche d’un local commercial, d’une boutique, de bureaux ou d’un restaurant ? WALLPARTNERS, dispose d’un portefeuille de plus de 1 200 biens commerciaux disponibles à la location. N’hésitez pas à nous contacter pour une recherche personnalisée.
78000 Versailles - Versailles - Centre
Prix net vendeur
Loyer HT
Pas de porte
Droit au bail
Button Text
Nouveauté
Location -
VL2-3049A
Local Commercial | 60m² | République
WALL PARTNERS vous propose un local commercial / une boutique à proximité immédiate de la place de la place de la République, d'une surface totale d'environ 60 m2 comprenant un rez-de-chaussée d'environ 40 m2 et un sous-sol d'environ 20 m2 le sous-sol est accessible par la boutique, sanitaire et point d'eau, excellent emplacement pour de la restauration rapide (froide) , nombreuses enseignes à proximité.
75010 Paris - République
Prix net vendeur
Loyer HT
Pas de porte
Droit au bail
Button Text
Nouveauté
Vente - LIB
VL2-5963
Local Commercial | 179m² | Richard Lenoir
WALLPARTNERS vous propose un local commercial idéalement situé à proximité immédiate de , d’une surface totale d’environ 179 m², comprenant : * un rez-de-chaussée de 95 m², * un sous-sol, accessible directement depuis la boutique, d’environ 84 m². Le local est équipé d’un point d’eau et de sanitaires. Emplacement stratégique, idéal pour une activité de restauration rapide sans extraction ou toute autre activité commerciale. Nombreuses enseignes dynamiques à proximité. Vous êtes à la recherche d’un local commercial, d’une boutique, de bureaux ou d’un restaurant ? WALLPARTNERS, dispose d’un portefeuille de plus de 1 200 biens commerciaux disponibles à la location. N’hésitez pas à nous contacter pour une recherche personnalisée.
75011 Paris - Richard Lenoir
Prix net vendeur
Loyer HT
Pas de porte
Droit au bail
Button Text
Nouveauté
Vente - LIB
VL2-5962
Local Commercial | 72m² | Arts et Métiers
WALLPARTNERS vous propose un local commercial idéalement situé à proximité immédiate de , d’une surface totale d’environ 66 m², comprenant : * un rez-de-chaussée de 66 m², * une terrasse privative, accessible directement depuis la boutique, d’environ 6 m². Le local est équipé d’un point d’eau et de sanitaires. Emplacement stratégique, idéal pour toute activité commerciale sauf restauration. Nombreuses enseignes dynamiques à proximité. Vous êtes à la recherche d’un local commercial, d’une boutique, de bureaux ou d’un restaurant ? WALLPARTNERS, dispose d’un portefeuille de plus de 1 200 biens commerciaux disponibles à la location. N’hésitez pas à nous contacter pour une recherche personnalisée.
75003 Paris - Arts et Métiers
Prix net vendeur
Loyer HT
Pas de porte
Droit au bail
Button Text
Nouveauté
Location Pure -
VL2-5961
Local Commercial | 55m² | Ile de Puteaux
WALLPARTNERS vous propose un local commercial idéalement situé à proximité immédiate de , d’une surface totale d’environ 55 m², comprenant : * un rez-de-chaussée de 45 m², * un sous-sol, accessible directement depuis la boutique, d’environ 10 m². Le local est équipé d’un point d’eau et de sanitaires. Emplacement stratégique, idéal pour une activité de restauration rapide avec extraction ou toute autre activité commerciale. Nombreuses enseignes dynamiques à proximité. Vous êtes à la recherche d’un local commercial, d’une boutique, de bureaux ou d’un restaurant ? WALLPARTNERS, dispose d’un portefeuille de plus de 1 200 biens commerciaux disponibles à la location. N’hésitez pas à nous contacter pour une recherche personnalisée.
92800 Puteaux - Ile de Puteaux
Prix net vendeur
Loyer HT
Pas de porte
Droit au bail
Button Text
Nouveauté
Location Pure -
VL2-5960
Local Commercial | 73m² | Ternes/Wagram
WALLPARTNERS vous propose un local commercial idéalement situé à proximité immédiate de , d’une surface totale d’environ 70 m², comprenant : * un rez-de-chaussée de 40 m², * un sous-sol, accessible directement depuis la boutique, d’environ 30 m². Le local est équipé d’un point d’eau et de sanitaires. Emplacement stratégique, idéal pour une activité de restauration rapide sans extraction ou toute autre activité commerciale. Nombreuses enseignes dynamiques à proximité. Vous êtes à la recherche d’un local commercial, d’une boutique, de bureaux ou d’un restaurant ? WALLPARTNERS, dispose d’un portefeuille de plus de 1 200 biens commerciaux disponibles à la location. N’hésitez pas à nous contacter pour une recherche personnalisée.
75008 Paris - Ternes/Wagram
Prix net vendeur
Loyer HT
Pas de porte
Droit au bail
Button Text
Nouveauté
Location Pure -
VL2-5959
Local Commercial | 70m² | Sentier
WALLPARTNERS vous propose un local commercial idéalement situé à proximité immédiate de , d’une surface totale d’environ 70 m², comprenant : * un rez-de-chaussée de 55 m², * un sous-sol, accessible directement depuis la boutique, d’environ 15 m². Le local est équipé d’un point d’eau et de sanitaires. Emplacement stratégique, idéal pour une activité de restauration rapide avec extraction car une autorisation a été voté en AG. Nombreuses enseignes dynamiques à proximité. Vous êtes à la recherche d’un local commercial, d’une boutique, de bureaux ou d’un restaurant ? WALLPARTNERS, dispose d’un portefeuille de plus de 1 200 biens commerciaux disponibles à la location. N’hésitez pas à nous contacter pour une recherche personnalisée.
75002 Paris - Sentier
Prix net vendeur
Loyer HT
Pas de porte
Droit au bail
Button Text
Nouveauté
Location Pure -
VL2-5957
Local Commercial | 172m² | Saint michel
WALLPARTNERS vous propose un local commercial idéalement situé à proximité immédiate de Saint Michel, d’une surface totale d’environ 172 m², comprenant : * un rez-de-chaussée de 106 m², * un sous-sol, accessible directement depuis la boutique, d’environ 66 m². Le local est équipé d’un point d’eau et de sanitaires. Emplacement stratégique, idéal pour une activité de restauration rapide sans extraction ou toute autre activité commerciale. Nombreuses enseignes dynamiques à proximité. Vous êtes à la recherche d’un local commercial, d’une boutique, de bureaux ou d’un restaurant ? WALLPARTNERS, dispose d’un portefeuille de plus de 1 200 biens commerciaux disponibles à la location. N’hésitez pas à nous contacter pour une recherche personnalisée.
75006 Paris - Saint michel
Prix net vendeur
Loyer HT
Pas de porte
Droit au bail
Button Text
Nouveauté
Vente - LIB
VL2-5954
Local Commercial | 70m² | Charles de Gaulle – Étoile
WALL PARTNERS vous propose un local commercial libre à la vente idéalement situé à proximité immédiate de la Place de l'Étoile, d’une surface totale d’environ 70m², comprenant : * un rez-de-chaussée de 35m², * un sous-sol, accessible directement depuis la boutique, d’environ 35m². Le local est équipé d’un point d’eau et de sanitaires. Emplacement stratégique, idéal pour une activité de prêt à porter ou toute autre activité commerciale. Nombreuses enseignes dynamiques à proximité. Vous êtes à la recherche d’un local commercial, d’une boutique, de bureaux ou d’un restaurant ? WALLPARTNERS, dispose d’un portefeuille de plus de 1 200 biens commerciaux disponibles à la location. N’hésitez pas à nous contacter pour une recherche personnalisée.
75016 Paris - Charles de Gaulle – Étoile
Prix net vendeur
Loyer HT
Pas de porte
Droit au bail
Button Text
Nouveauté
Location Pure -
VL2-5953
Local Commercial | 1152m² | Robert Schumann
WALL PARTNERS vous propose un local commercial idéalement situé à proximité immédiate de Robert Schumann, d’une surface totale d’environ 1152 m², comprenant : * un rez-de-chaussée de 576 m², * un 1ère étage accessible directement depuis un escalier intérieur ou un acensseur. Le local est équipé d’un point d’eau et de sanitaires. il est équipé d'un monte charge et d'un acensseur. Emplacement stratégique, idéal pour une activité de restauration chaude disposant de plusieurs conduits extraction 450 mm ainsi qu'un parking privé d'environ 40 places ou encore toute autre activité commerciale. Nombreuses enseignes dynamiques à proximité. Vous êtes à la recherche d’un local commercial, d’une boutique, de bureaux ou d’un restaurant ? WALLPARTNERS, dispose d’un portefeuille de plus de 1 200 biens commerciaux disponibles à la location. N’hésitez pas à nous contacter pour une recherche personnalisée.
78500 Sartrouville - Robert Schumann
Prix net vendeur
Loyer HT
Pas de porte
Droit au bail
Button Text
Nouveauté
Location Pure -
VL2-5950
Local Commercial | 900m² | Sainte-Claire - Les Halles
WALL PARTNERS vous propose un local commercial idéalement situé à proximité immédiate de Sainte-Claire - Les Halles, d’une surface totale d’environ 900 m², comprenant : * un rez-de-chaussée de 900 m² plain pied, Le local est équipé d’un point d’eau et de sanitaires. Emplacement stratégique, idéal pour une activité de supermarché, salle de sport ou toute autre activité commerciale. Nombreuses enseignes dynamiques à proximité. Vous êtes à la recherche d’un local commercial, d’une boutique, de bureaux ou d’un restaurant ? WALLPARTNERS, dispose d’un portefeuille de plus de 1 200 biens commerciaux disponibles à la location. N’hésitez pas à nous contacter pour une recherche personnalisée.
38000 Grenoble - Sainte-Claire - Les Halles
Prix net vendeur
Loyer HT
Pas de porte
Droit au bail
Button Text
Nouveauté
Vente - LIB
VL2-5951
Local Commercial | 208m² | Les Moulineaux
WALL PARTNERS vous propose un local commercial idéalement situé à proximité immédiate du Pont de Billancourt ainsi que du centre commercial Issy 3 Moulins, à cheval entre Boulogne, Issy-les-Moulineaux et Meudon, d’une surface totale d’environ 208m² de plain pied. Le local est équipé d’un point d’eau , de sanitaires, d'un accès PMR... Emplacement stratégique, idéal pour une activité de laboratoire, restauration... comprenant un conduit d'extraction. Nombreuses enseignes dynamiques à proximité. Vous êtes à la recherche d’un local commercial, d’une boutique, de bureaux ou d’un restaurant ? WALLPARTNERS, dispose d’un portefeuille de plus de 1 200 biens commerciaux disponibles à la location. N’hésitez pas à nous contacter pour une recherche personnalisée.
92130 Issy-les-Moulineaux - Les Moulineaux
Prix net vendeur
Loyer HT
Pas de porte
Droit au bail
Button Text
Nouveauté
Location Pure -
VL2-5949
Local Commercial | 208m² | Les Moulineaux
WALL PARTNERS vous propose un local commercial idéalement situé à proximité immédiate du Pont de Billancourt ainsi que du centre commercial Issy 3 Moulins, à cheval entre Boulogne, Issy-les-Moulineaux et Meudon, d’une surface totale d’environ 208m² de plain pied. Le local est équipé d’un point d’eau , de sanitaires, d'un accès PMR... Emplacement stratégique, idéal pour une activité de laboratoire, restauration... comprenant un conduit d'extraction. Nombreuses enseignes dynamiques à proximité. Vous êtes à la recherche d’un local commercial, d’une boutique, de bureaux ou d’un restaurant ? WALLPARTNERS, dispose d’un portefeuille de plus de 1 200 biens commerciaux disponibles à la location. N’hésitez pas à nous contacter pour une recherche personnalisée.
92130 Issy-les-Moulineaux - Les Moulineaux
Prix net vendeur
Loyer HT
Pas de porte
Droit au bail
Button Text
Nouveauté
Location Pure -
VL2-5948
Local Commercial | 700m² | ZAC DE MERCIERES
WALL PARTNERS vous propose un local commercial idéalement situé à proximité immédiate de ZAC DE MERCIERES, d’une surface totale d’environ 700 m², comprenant : * un rez-de-chaussée de 700 m² plain-pied. béneficiant d'une excellente hsp, * un parking commun avec plusieurs autre enseignes de la zone commerciale. Le local est équipé d’un point d’eau et de sanitaires. Emplacement stratégique, idéal pour toute activité commerciale sauf restauration. Nombreuses enseignes dynamiques à proximité. Vous êtes à la recherche d’un local commercial, d’une boutique, de bureaux ou d’un restaurant ? WALLPARTNERS, dispose d’un portefeuille de plus de 1 200 biens commerciaux disponibles à la location. N’hésitez pas à nous contacter pour une recherche personnalisée.
60200 Compiègne - ZAC DE MERCIERES
Prix net vendeur
Loyer HT
Pas de porte
Droit au bail
Button Text
Nouveauté
Location Pure -
VL2-5947
Local Commercial | 221m² | Saint-Quentin en Yvelines
WALL PARTNERS vous propose un local commercial idéalement situé à proximité immédiate de la gare de Saint-Quentin en Yvelines, d’une surface totale d’environ 221 m², comprenant : * un rez-de-chaussée de 136 m², * un 1ère étage, accessible directement depuis la boutique, d’environ 85 m². Le local est équipé d’un point d’eau et de sanitaires. Emplacement stratégique d'angle, idéal pour une activité de banque, médicale, bureau ou toute autre activité commerciale. Le local est entièrement climatisé. Nombreuses enseignes dynamiques à proximité. Vous êtes à la recherche d’un local commercial, d’une boutique, de bureaux ou d’un restaurant ? WALLPARTNERS, dispose d’un portefeuille de plus de 1 200 biens commerciaux disponibles à la location. N’hésitez pas à nous contacter pour une recherche personnalisée.
78180 Montigny-le-Bretonneux - Saint-Quentin en Yvelines
Prix net vendeur
Loyer HT
Pas de porte
Droit au bail
Button Text
Nouveauté
Location Pure -
VL2-5946
Local Commercial | 50m² | Saint-Paul
WALL PARTNERS vous propose un local commercial idéalement situé à proximité immédiate du métro Saint-Paul ainsi que de la Place des Vosges, d’une surface totale d’environ 50m² de plain pied. Le local est équipé d’un point d’eau et de sanitaires. Emplacement stratégique, idéal pour une activité de coffee shop ou toute autre activité commerciale. Nombreuses enseignes dynamiques à proximité. Vous êtes à la recherche d’un local commercial, d’une boutique, de bureaux ou d’un restaurant ? WALLPARTNERS, dispose d’un portefeuille de plus de 1 200 biens commerciaux disponibles à la location. N’hésitez pas à nous contacter pour une recherche personnalisée.
75004 Paris - Saint-Paul
Prix net vendeur
Loyer HT
Pas de porte
Droit au bail
Button Text
Nouveauté
Location Pure -
VL2-4013
Local Professionnel | 43m² | Saint-Augustin
WALL PARTNERS vous propose des bureaux donnant sur la rue et accessible par les parties communes d'un immeuble PDT, s à proximité immédiate du métro Saint-Augustin et de la rue la Boétie, d'une surface totale d'environ 43 m2 le tout en rez-de-chaussée , sanitaire et point d'eau, excellent emplacement , idéal professions libérales . . .
75008 Paris - Saint-Augustin
Prix net vendeur
Loyer HT
Pas de porte
Droit au bail
Button Text
Nouveauté
Location -
VL2-5940
Local Commercial | 74m² | Voltaire
WALL PARTNERS vous propose un local commercial idéalement situé à proximité immédiate de la Place léon Blum et au pied du métro Voltaire, d’une surface totale d’environ 74 m², comprenant : * un rez-de-chaussée de 56 m², * un sous-sol, accessible directement depuis la boutique, d’environ 14 m². Le local est équipé d’un point d’eau et de sanitaires. Emplacement stratégique, idéal pour une activité de restauration chaude avec extraction 400 mm ou toute autre activité commerciale. Nombreuses enseignes dynamiques à proximité. Vous êtes à la recherche d’un local commercial, d’une boutique, de bureaux ou d’un restaurant ? WALLPARTNERS, dispose d’un portefeuille de plus de 1 200 biens commerciaux disponibles à la location. N’hésitez pas à nous contacter pour une recherche personnalisée.
75011 Paris - Voltaire
Prix net vendeur
Loyer HT
Pas de porte
Droit au bail
Button Text
Nouveauté
Location Pure -
VL2-5939
Local Professionnel | 50m² | métro Ternes
WALLPARTNERS vous propose des bureaux sur cour idéalement situé à proximité immédiate du métro Ternes, d’une surface totale d’environ 50 m². Le local est équipé d’un point d’eau et de sanitaires. Le local est en bon état. Nombreuses enseignes dynamiques à proximité. Vous êtes à la recherche d’un local commercial, d’une boutique, de bureaux ou d’un restaurant ? WALLPARTNERS, dispose d’un portefeuille de plus de 1 200 biens commerciaux disponibles à la location. N’hésitez pas à nous contacter pour une recherche personnalisée.
75017 Paris - métro Ternes
Prix net vendeur
Loyer HT
Pas de porte
Droit au bail
Button Text
Nouveauté
Vente - LIB
VL2-5938
Local Commercial | 92m² | Maison de la Radio
WALLPARTNERS vous propose un local commercial idéalement situé à proximité immédiate de la Maison de la Radio, d’une surface totale d’environ 92 m², comprenant : * un rez-de-chaussée de 72 m², * un sous-sol, accessible directement depuis la boutique, d’environ 20 m². * un parking pour voiture type citadine au 3ème sous-sol. Le local est équipé d’un point d’eau et de sanitaires. Emplacement stratégique, idéal pour une activité de restauration rapide sans extraction , crèche, profession libérale , ou toute autre activité commerciale. Nombreuses enseignes dynamiques à proximité. Vous êtes à la recherche d’un local commercial, d’une boutique, de bureaux ou d’un restaurant ? WALLPARTNERS, dispose d’un portefeuille de plus de 1 200 biens commerciaux disponibles à la location. N’hésitez pas à nous contacter pour une recherche personnalisée.
75016 Paris - Maison de la Radio
Prix net vendeur
Loyer HT
Pas de porte
Droit au bail
Button Text
Nouveauté
Location Pure -
VL2-1274
Local Commercial | 92m² | Maison de la Radio
WALLPARTNERS vous propose EN EXCLUSIVITÉ une boutique à proximité immédiate de la Maison de la Radio et du Village de Passy, d'une surface totale de 92m2 comprenant un rez de chaussée d'environ 72m2 et un sous-sol d'environ 20m2. Le sous-sol est accessible par la boutique via un escalier intérieur. Très peu de contraintes porteuses. Surface rénovée il y'a peu de temps. Sanitaires et point d'eau. Place de parking pour citadine en sus au 3ème sous-sol. Excellent emplacement pour de la restauration rapide, crèche, profession libérale...
75016 Paris - Maison de la Radio
Prix net vendeur
Loyer HT
Pas de porte
Droit au bail
Button Text
Nouveauté
Location Pure -
VL2-3469
Local Commercial | 76m² | Parc Georges Brassens
WALLPARTNERS vous propose un local commercial sur cour/ une boutique à proximité immédiate du parc Georges Brassens , d'une surface totale d'environ 76 m2 comprenant un rez-de-chaussée d'environ 32 m2 et un étage d'environ 44 m2 . l'étage est accessible par la boutique, sanitaire et point d'eau, excellent emplacement pour une activité de bureau.
75015 Paris - Parc Georges Brassens
Prix net vendeur
Loyer HT
Pas de porte
Droit au bail
Button Text
Nouveauté
Location Pure -
VL2-5937
Local Commercial | 75m² | Bérault
WALL PARTNERS vous propose un local commercial idéalement situé à proximité immédiate de Bérault, d’une surface totale d’environ 75 m², comprenant : * un rez-de-chaussée de 64 m², * un sous-sol, accessible directement depuis la boutique, d’environ 11 m². Le local est équipé d’un point d’eau et de sanitaires. Emplacement stratégique, idéal pour une activité de restauration chaude avec extraction 400 mm ou toute autre activité commerciale. Nombreuses enseignes dynamiques à proximité. Vous êtes à la recherche d’un local commercial, d’une boutique, de bureaux ou d’un restaurant ? WALLPARTNERS, dispose d’un portefeuille de plus de 1 200 biens commerciaux disponibles à la location. N’hésitez pas à nous contacter pour une recherche personnalisée.
94300 Vincennes - Bérault
Prix net vendeur
Loyer HT
Pas de porte
Droit au bail
Button Text
Nouveauté
Location Pure -
VL2-5936
Local Commercial | 105m² | Vaillant-Couturier
WALL PARTNERS vous propose un local commercial idéalement situé à proximité immédiate de Vaillant-Couturier, d’une surface totale d’environ 105 m², comprenant : * un rez-de-chaussée de 65 m², * un sous-sol, accessible directement depuis la boutique, d’environ 45 m². Le local est équipé d’un point d’eau et de sanitaires. Emplacement stratégique, idéal pour une activité médicale, bureau ou toute autre activité commerciale. Nombreuses enseignes dynamiques à proximité. Vous êtes à la recherche d’un local commercial, d’une boutique, de bureaux ou d’un restaurant ? WALLPARTNERS, dispose d’un portefeuille de plus de 1 200 biens commerciaux disponibles à la location. N’hésitez pas à nous contacter pour une recherche personnalisée.
92300 Levallois-Perret - Vaillant-Couturier
Prix net vendeur
Loyer HT
Pas de porte
Droit au bail
Button Text
Nouveauté
Location -
VL2-5934
Local Commercial | 187m² | Pierre Larousse - Carrefour du 8 Mai 1945
WALL PARTNERS vous propose un local commercial idéalement situé à proximité immédiate de Pierre Brossolette - Gabriel Péri, d’une surface totale d’environ 187 m², comprenant : * un rez-de-chaussée de 61 m², * un 1ère étage 100% commercial à usage de salle de restaurant d'environ 63 m2 * un sous-sol, accessible directement depuis la boutique, d’environ 61m² à usage de cusine. Le local est équipé d’un point d’eau et de sanitaires. Emplacement stratégique, idéal pour une activité de restauration chaude avec extraction 450 mm ou toute autre activité commerciale. Nombreuses enseignes dynamiques à proximité. Vous êtes à la recherche d’un local commercial, d’une boutique, de bureaux ou d’un restaurant ? WALLPARTNERS, dispose d’un portefeuille de plus de 1 200 biens commerciaux disponibles à la location. N’hésitez pas à nous contacter pour une recherche personnalisée.
92240 Malakoff - Pierre Larousse - Carrefour du 8 Mai 1945
Prix net vendeur
Loyer HT
Pas de porte
Droit au bail
Button Text
Nouveauté
Vente - LIB
VL2-5928
Local Commercial | 14m² | Argentine
WALL PARTNERS vous propose un local commercial idéalement situé à proximité immédiate d'Argentine, d’une surface totale d’environ 14 m², comprenant : * un rez-de-chaussée de 14 m², Le local est équipé d’un point d’eau et de sanitaires. Emplacement stratégique, idéal pour une activité de restauration rapide sans extraction ou toute autre activité commerciale. Nombreuses enseignes dynamiques à proximité. Vous êtes à la recherche d’un local commercial, d’une boutique, de bureaux ou d’un restaurant ? WALLPARTNERS, dispose d’un portefeuille de plus de 1 200 biens commerciaux disponibles à la location. N’hésitez pas à nous contacter pour une recherche personnalisée.
75016 Paris - Argentine
Prix net vendeur
Loyer HT
Pas de porte
Droit au bail
Button Text
Nouveauté
Location -
VL2-5919
Local Commercial | 130m² | métro Quatre Septembre
WALLPARTNERS vous propose un local commercial d'angle idéalement situé à proximité immédiate du métro Quatre Septembre , d’une surface totale d’environ 130 m², comprenant : * un rez-de-chaussée de 100 m², * un sous-sol, accessible directement depuis la boutique, d’environ 30 m². Le local est équipé d’un point d’eau et de sanitaires. Emplacement stratégique, idéal pour une activité de restauration rapide sans extraction ou toute autre activité commerciale. Nombreuses enseignes dynamiques à proximité. Vous êtes à la recherche d’un local commercial, d’une boutique, de bureaux ou d’un restaurant ? WALLPARTNERS, dispose d’un portefeuille de plus de 1 200 biens commerciaux disponibles à la location. N’hésitez pas à nous contacter pour une recherche personnalisée.
75002 Paris - métro Quatre Septembre
Prix net vendeur
Loyer HT
Pas de porte
Droit au bail
Button Text
Nouveauté
Location Pure -
VL2-5918
Local Commercial | 120m² | Victor Hugo
WALLPARTNERS vous propose un local commercial idéalement situé à proximité immédiate du métro Victor Hugo, d’une surface totale d’environ 120 m², comprenant : * un rez-de-chaussée de 80 m², * un sous-sol, accessible directement depuis la boutique, d’environ 40 m². Le local est équipé d’un point d’eau et de sanitaires. Emplacement stratégique, idéal pour une activité de restauration rapide sans extraction ou toute autre activité commerciale. Nombreuses enseignes dynamiques à proximité. Vous êtes à la recherche d’un local commercial, d’une boutique, de bureaux ou d’un restaurant ? WALLPARTNERS, dispose d’un portefeuille de plus de 1 200 biens commerciaux disponibles à la location. N’hésitez pas à nous contacter pour une recherche personnalisée.
75016 Paris - Victor Hugo
Prix net vendeur
Loyer HT
Pas de porte
Droit au bail
Button Text
Nouveauté
Location Pure -
VL2-5917
Local Commercial | 223m² | métro Falguière
WALLPARTNERS vous propose un local commercial idéalement situé à proximité immédiate du métro Falguière , d’une surface totale d’environ 223 m² le tout en rez-de-chaussée. Le local est équipé d’un point d’eau et de sanitaires. Emplacement stratégique, idéal pour une activité de restauration rapide sans extraction ou toute autre activité commerciale. Nombreuses enseignes dynamiques à proximité. Vous êtes à la recherche d’un local commercial, d’une boutique, de bureaux ou d’un restaurant ? WALLPARTNERS, dispose d’un portefeuille de plus de 1 200 biens commerciaux disponibles à la location. N’hésitez pas à nous contacter pour une recherche personnalisée.
75015 Paris - métro Falguière
Prix net vendeur
Loyer HT
Pas de porte
Droit au bail
Button Text
Nouveauté
Vente - LIB
VL2-5915
Local Commercial | 700m² | Porte de Vincennes
WALL PARTNERS vous propose un local commercial unique et extrêmement rare, situé en rez-de-chaussée, au sein d’un immeuble entièrement rénové. Idéalement situé à proximité immédiate de la Porte de Vincennes et du métro Saint-Mandé. Local d’une surface totale d’environ 700m², ce plateau bénéficie de volumes remarquables avec 3,50 m de hauteur sous plafond ainsi qu'une luminosité éclatante, offrant un potentiel d’aménagement exceptionnel. Atouts majeurs : 4 accès indépendants sur rue ERP catégorie 5 Accessibilité PMR conforme Possibilité de division en deux lots d’environ 300 m² et 400 m² Extraction 400, idéale pour restauration ou activités spécifiques Très forte visibilité et excellente accessibilité Boxes disponibles en complément Les locaux commerciaux de cette surface, en RDC, ERP, avec plusieurs accès rue et une telle hauteur sous plafond sont quasi inexistants sur le secteur. Ce bien s’adresse à des enseignes, activités tertiaires, médicales, culturelles ou commerciales recherchant une adresse aux portes de Paris. 📍 Disponibilité immédiate 📄 Plans et photos sur demande Vous êtes à la recherche d’un local commercial, d’une boutique, de bureaux ou d’un restaurant ? WALLPARTNERS, dispose d’un portefeuille de plus de 1 200 biens commerciaux disponibles à la location. N’hésitez pas à nous contacter pour une recherche personnalisée.
94300 Vincennes - Porte de Vincennes
Prix net vendeur
Loyer HT
Pas de porte
Droit au bail
Button Text
Nouveauté
Location Pure -
VL2-5914
Local Professionnel | 235m² | Saint-Philippe du Roule
WALLPARTNERS vous propose des bureaux en location idéalement situés à proximité immédiate de l'Avenue des Champs-Élysée et du métro Saint-Philippe-du-Roule , d’une surface totale d’environ 235 m² tout d'un seul tenant, au 3e étage d'un immeuble haussmannien. Vous êtes à la recherche d’un local commercial, d’une boutique, de bureaux ou d’un restaurant ? en location pure, cession de fonds de commerce ou à l'achat. WALLPARTNERS, dispose d’un portefeuille de plus de 1 200 biens commerciaux disponibles à la location. N’hésitez pas à nous contacter pour une recherche personnalisée.
75008 Paris - Saint-Philippe du Roule
Prix net vendeur
Loyer HT
Pas de porte
Droit au bail
Button Text
Nouveauté
Location Pure -
VL2-5911
Local Commercial | 700m² | Porte de Vincennes
WALL PARTNERS vous propose un local commercial unique et extrêmement rare, situé en rez-de-chaussée, au sein d’un immeuble entièrement rénové. Idéalement situé à proximité immédiate de la Porte de Vincennes et du métro Saint-Mandé. Local d’une surface totale d’environ 700m², ce plateau bénéficie de volumes remarquables avec 3,50 m de hauteur sous plafond ainsi qu'une luminosité éclatante, offrant un potentiel d’aménagement exceptionnel. Atouts majeurs : 4 accès indépendants sur rue ERP catégorie 5 Accessibilité PMR conforme Possibilité de division en deux lots d’environ 300 m² et 400 m² Extraction 400, idéale pour restauration ou activités spécifiques Très forte visibilité et excellente accessibilité Boxes disponibles en complément Les locaux commerciaux de cette surface, en RDC, ERP, avec plusieurs accès rue et une telle hauteur sous plafond sont quasi inexistants sur le secteur. Ce bien s’adresse à des enseignes, activités tertiaires, médicales, culturelles ou commerciales recherchant une adresse aux portes de Paris. 📍 Disponibilité immédiate 📄 Plans et photos sur demande Vous êtes à la recherche d’un local commercial, d’une boutique, de bureaux ou d’un restaurant ? WALLPARTNERS, dispose d’un portefeuille de plus de 1 200 biens commerciaux disponibles à la location. N’hésitez pas à nous contacter pour une recherche personnalisée.
94300 Vincennes - Porte de Vincennes
Prix net vendeur
Loyer HT
Pas de porte
Droit au bail
Button Text
Nouveauté
Location -
VL2-5912
Local Commercial | 115m² | Philippe Auguste
WALLPARTNERS vous propose un local commercial disposant d'une extraction 400 idéalement situé à proximité immédiate du métro Philippe Auguste, d’une surface totale d’environ 115m², comprenant : * un rez-de-chaussée de 100m², * un sous-sol, accessible directement depuis la boutique, d’environ 15m². Le local est équipé d’un point d’eau et de sanitaires. Emplacement stratégique, idéal pour une activité de restauration rapide sans extraction ou toute autre activité commerciale. Nombreuses enseignes dynamiques à proximité. Vous êtes à la recherche d’un local commercial, d’une boutique, de bureaux ou d’un restaurant ? WALLPARTNERS, dispose d’un portefeuille de plus de 1 200 biens commerciaux disponibles à la location. N’hésitez pas à nous contacter pour une recherche personnalisée.
75020 Paris - Philippe Auguste
Prix net vendeur
Loyer HT
Pas de porte
Droit au bail
Button Text
Nouveauté
Location Pure -
VL2-5910
Local Commercial | 60m² | Fondation Pinault
WALLPARTNERS vous propose un local commercial idéalement situé à proximité immédiate de la fondation Pinault, d’une surface totale d’environ 60m², comprenant : * un rez-de-chaussée de 60m², Le local est équipé d’un point d’eau et de sanitaires. Emplacement stratégique, idéal pour une activité de restauration rapide sans extraction ou toute autre activité commerciale. Nombreuses enseignes dynamiques à proximité. Vous êtes à la recherche d’un local commercial, d’une boutique, de bureaux ou d’un restaurant ? WALLPARTNERS, dispose d’un portefeuille de plus de 1 200 biens commerciaux disponibles à la location. N’hésitez pas à nous contacter pour une recherche personnalisée.
75001 Paris - Fondation Pinault
Prix net vendeur
Loyer HT
Pas de porte
Droit au bail
Button Text
Nouveauté
Location Pure -
VL2-5909
Local Commercial | 39m² | Pyrenees
WALLPARTNERS vous propose un local commercial idéalement situé à proximité immédiate de la station de métro pyrénées, d’une surface totale d’environ 39m², comprenant : * un rez-de-chaussée de 39m², Le local est équipé d’un point d’eau et de sanitaires. Emplacement stratégique, idéal pour une activité de restauration rapide sans extraction ou toute autre activité commerciale. Nombreuses enseignes dynamiques à proximité. Vous êtes à la recherche d’un local commercial, d’une boutique, de bureaux ou d’un restaurant ? WALLPARTNERS, dispose d’un portefeuille de plus de 1 200 biens commerciaux disponibles à la location. N’hésitez pas à nous contacter pour une recherche personnalisée.
75020 Paris - Pyrenees
Prix net vendeur
Loyer HT
Pas de porte
Droit au bail
Button Text
Nouveauté
Location Pure -
VL2-5738
Local Commercial | 65m² | Métro Boulogne - Pont de Saint-Cloud
WALLPARTNERS vous propose un local commercial idéalement situé à proximité immédiate du Métro Boulogne - Pont de Saint-Cloud, d’une surface totale d’environ 65 m², comprenant : * un rez-de-chaussée de 65 m², Le local est équipé d’un point d’eau et de sanitaires. Emplacement stratégique, idéal pour une activité de restauration rapide sans extraction ou toute autre activité commerciale. Nombreuses enseignes dynamiques à proximité. Vous êtes à la recherche d’un local commercial, d’une boutique, de bureaux ou d’un restaurant ? WALLPARTNERS, dispose d’un portefeuille de plus de 1 200 biens commerciaux disponibles à la location. N’hésitez pas à nous contacter pour une recherche personnalisée.
92210 Saint-Cloud - Métro Boulogne - Pont de Saint-Cloud
Prix net vendeur
Loyer HT
Pas de porte
Droit au bail
Button Text
Nouveauté
Location Pure -
VL2-5907
Local Commercial | 114m² | rue de Paris
WALLPARTNERS vous propose un local commercial idéalement situé à proximité immédiate de la rue de Paris, d’une surface totale d’environ 114 m², comprenant : * un rez-de-chaussée de 77 m², * un sous-sol, accessible directement depuis la boutique, d’environ 37 m². Le local est équipé d’un point d’eau et de sanitaires. Emplacement stratégique, idéal pour une activité de restauration rapide sans extraction ou toute autre activité commerciale. Nombreuses enseignes dynamiques à proximité. Vous êtes à la recherche d’un local commercial, d’une boutique, de bureaux ou d’un restaurant ? WALLPARTNERS, dispose d’un portefeuille de plus de 1 200 biens commerciaux disponibles à la location. N’hésitez pas à nous contacter pour une recherche personnalisée.
95130 Franconville - rue de Paris
Prix net vendeur
Loyer HT
Pas de porte
Droit au bail
Button Text
Nouveauté
Vente - OCC
VL2-5905
Local Commercial | 30m² | Parc des Princes
WALL PARTNERS vous propose un local commercial à vendre idéalement situé à proximité immédiate de la Porte de Saint-Cloud situé dans le très chic 16e arrondissement, d’une surface totale d’environ 30m² de plain pied. Le local est équipé d’un point d’eau et de sanitaires. Emplacement stratégique, loué à un locataire solide. Nombreuses enseignes dynamiques à proximité. Vous êtes à la recherche d’un local commercial, d’une boutique, de bureaux ou d’un restaurant ? WALLPARTNERS, dispose d’un portefeuille de plus de 1 200 biens commerciaux disponibles à la location. N’hésitez pas à nous contacter pour une recherche personnalisée.
75016 Paris - Parc des Princes
Prix net vendeur
Loyer HT
Pas de porte
Droit au bail
Button Text
Nouveauté
Location Pure -
VL2-5904
Local Commercial | 363m² | Mairie d'Alfortville
WALL PARTNERS vous propose un local commercial idéalement situé à proximité immédiate de la Mairie d'Alfortville, d’une surface totale d’environ 363m², comprenant : * un rez-de-chaussée de 133m², * un étage de 110m², * un sous-sol, accessible directement depuis la boutique, d’environ 120m². Le local est équipé d’un point d’eau et de sanitaires. Emplacement stratégique, idéal pour une activité de restauration ou toute autre activité commerciale. Nombreuses enseignes dynamiques à proximité. Vous êtes à la recherche d’un local commercial, d’une boutique, de bureaux ou d’un restaurant ? WALLPARTNERS, dispose d’un portefeuille de plus de 1 200 biens commerciaux disponibles à la location. N’hésitez pas à nous contacter pour une recherche personnalisée.
94140 Alfortville - Mairie d'Alfortville
Prix net vendeur
Loyer HT
Pas de porte
Droit au bail
Button Text
Nouveauté
Location Pure -
VL2-5903
Local Commercial | 35m² | Anatole-France
WALLPARTNERS vous propose un local commercial idéalement situé à proximité immédiate du métro ANATOLE-FRANCE , d’une surface totale d’environ 35m², comprenant : * un rez-de-chaussée de 35 m². Le local est équipé d’un point d’eau et de sanitaires. Emplacement stratégique, idéal pour une activité de restauration rapide sans extraction, ou une activité esthétique, de service, ou toutes autres activités commercial. Nombreuses enseignes dynamiques à proximité. Vous êtes à la recherche d’un local commercial, d’une boutique, de bureaux ou d’un restaurant ? WALLPARTNERS, dispose d’un portefeuille de plus de 1 200 biens commerciaux disponibles à la location. N’hésitez pas à nous contacter pour une recherche personnalisée.
92300 Levallois-Perret - Anatole-France
Prix net vendeur
Loyer HT
Pas de porte
Droit au bail
Button Text
Nouveauté
Location Pure -
VL2-5902
Local Commercial | 181m² | Pereire / Ternes
WALL PARTNERS vous propose un local commercial situé entre l'avenue des Ternes, l'avenue Niel et le boulevard Pereire, d'une surface totale d'environ 170m2 comprenant un rez-de-chaussée d'environ 70m2 et un sous-sol d'environ 100m2, dont 60m2 brut, le sous-sol est accessible par la boutique, sanitaire et point d'eau, excellent emplacement pour de la restauration Nombreuses enseignes dynamiques à proximité. Vous êtes à la recherche d’un local commercial, d’une boutique, de bureaux ou d’un restaurant ? WALLPARTNERS, dispose d’un portefeuille de plus de 1 200 biens commerciaux disponibles à la location. N’hésitez pas à nous contacter pour une recherche personnalisée.
75017 Paris - Pereire / Ternes
Prix net vendeur
Loyer HT
Pas de porte
Droit au bail
Button Text
Nouveauté
Location Pure -
VL2-929
Local Commercial | 28m² | La Fourche
WALLPARTNERS vous propose un local commercial idéalement situé à proximité immédiate du Métro La Fourche, d’une surface totale d’environ 28 m², comprenant : * un rez-de-chaussée de 28 m², Le local est équipé d’un point d’eau et de sanitaires. Emplacement stratégique, idéal pour une activité de restauration rapide sans extraction ou toute autre activité commerciale. Nombreuses enseignes dynamiques à proximité. Vous êtes à la recherche d’un local commercial, d’une boutique, de bureaux ou d’un restaurant ? WALLPARTNERS, dispose d’un portefeuille de plus de 1 200 biens commerciaux disponibles à la location. N’hésitez pas à nous contacter pour une recherche personnalisée.
75017 Paris - La Fourche
Prix net vendeur
Loyer HT
Pas de porte
Droit au bail
Button Text
Nouveauté
Cession de bail -
VL2-5901
Local Commercial | 40m² | Place de Levis
WALLPARTNERS vous propose un local commercial idéalement situé à proximité immédiate du Métro Villiers, d’une surface totale d’environ 40 m², comprenant : * un rez-de-chaussée de 30 m², * un sous-sol, accessible directement depuis la boutique, d’environ 10 m². Le local est équipé d’un point d’eau et de sanitaires. Emplacement stratégique, idéal pour une activité de restauration rapide sans extraction ou toute autre activité commerciale. Nombreuses enseignes dynamiques à proximité. Vous êtes à la recherche d’un local commercial, d’une boutique, de bureaux ou d’un restaurant ? WALLPARTNERS, dispose d’un portefeuille de plus de 1 200 biens commerciaux disponibles à la location. N’hésitez pas à nous contacter pour une recherche personnalisée.
75017 Paris - Place de Levis
Prix net vendeur
Loyer HT
Pas de porte
Droit au bail
Button Text
Nouveauté
Location Pure -
VL2-5900
Local Commercial | 500m² | Gare de Courbevoie
WALL PARTNERS vous propose un local commercial idéalement situé à proximité immédiate de la Gare de Courbevoie, d’une surface totale d’environ 500 m², comprenant : * un rez-de-chaussée de 160 m², * un 1ère étage de 150 m2, * Les combles de 60 m2 * un sous-sol, accessible directement depuis la boutique, d’environ 130 m². Le local est équipé d’un point d’eau et de sanitaires. Emplacement stratégique, idéal pour une activité ayant besoin de flux passant constant ou toute autre activité commerciale. Nombreuses enseignes dynamiques à proximité. Vous êtes à la recherche d’un local commercial, d’une boutique, de bureaux ou d’un restaurant ? WALLPARTNERS, dispose d’un portefeuille de plus de 1 200 biens commerciaux disponibles à la location. N’hésitez pas à nous contacter pour une recherche personnalisée.
92400 Courbevoie - Gare de Courbevoie
Prix net vendeur
Loyer HT
Pas de porte
Droit au bail
Button Text
Nouveauté
Location Pure -
VL2-5772
Local Commercial | 51m² | Montmartre
WALLPARTNERS vous propose un local commercial idéalement situé à proximité immédiate de la Butte Montmartre/Sacré-Coeur, d’une surface totale d’environ 51m², comprenant : * un rez-de-chaussée de 34m², * une Mezzanine, accessible directement depuis la boutique, d’environ 17m². Le local est équipé d’un point d’eau et de sanitaires. Emplacement stratégique, idéal pour une activité de restauration rapide sans extraction ou toute autre activité commerciale. Nombreuses enseignes dynamiques à proximité. Vous êtes à la recherche d’un local commercial, d’une boutique, de bureaux ou d’un restaurant ? WALLPARTNERS, dispose d’un portefeuille de plus de 1 200 biens commerciaux disponibles à la location. N’hésitez pas à nous contacter pour une recherche personnalisée.
75018 Paris - Montmartre
Prix net vendeur
Loyer HT
Pas de porte
Droit au bail
Button Text
Nouveauté
Location Pure -
VL2-5892
Local Commercial | 55m² | Centre Ville du Perreux
WALL PARTNERS vous propose un local commercial idéalement situé à proximité immédiate de la Mairie, en plein centre du Perreux, d’une surface totale d’environ 55m² de plain pied. Le local est équipé d’un point d’eau et de sanitaires. Emplacement stratégique, idéal pour une activité d'esthétique, agence immobilière ou toute autre activité commerciale. Nombreuses enseignes dynamiques à proximité. Vous êtes à la recherche d’un local commercial, d’une boutique, de bureaux ou d’un restaurant ? WALLPARTNERS, dispose d’un portefeuille de plus de 1 200 biens commerciaux disponibles à la location. N’hésitez pas à nous contacter pour une recherche personnalisée.
94170 Le Perreux-sur-Marne - Centre Ville du Perreux
Prix net vendeur
Loyer HT
Pas de porte
Droit au bail
Button Text
Nouveauté
Location Pure -
VL2-5891
Local Commercial | 45m² | Village d'Auteuil
WALLPARTNERS vous propose un local commercial en location pure, idéalement situé à proximité immédiate de , d’une surface totale d’environ 45 m², comprenant : * un rez-de-chaussée de 45 m², comprenant 6 postes de travail et un bureau cloisonné. Le local est équipé d’un point d’eau et de sanitaires. Vous êtes à la recherche d’un local commercial, d’une boutique, de bureaux ou d’un restaurant ? WALLPARTNERS, dispose d’un portefeuille de plus de 1 200 biens commerciaux disponibles à la location. N’hésitez pas à nous contacter pour une recherche personnalisée.
75016 Paris - Village d'Auteuil
Prix net vendeur
Loyer HT
Pas de porte
Droit au bail
Button Text
Nouveauté
Cession de bail -
VL2-5890
Local Commercial | 250m² | Place d'Italie
WALLPARTNERS vous propose un local commercial idéalement situé à proximité immédiate de la Place d'Italie , d’une surface totale d’environ 250m², comprenant : * un rez-de-chaussée de 130m², * un sous-sol, accessible directement depuis la boutique, d’environ 120m². Le local est équipé d’un point d’eau et de sanitaires. Emplacement stratégique, idéal pour une activité de restauration avec extraction ou toute autre activité commerciale. Nombreuses enseignes dynamiques à proximité. Vous êtes à la recherche d’un local commercial, d’une boutique, de bureaux ou d’un restaurant ? WALLPARTNERS, dispose d’un portefeuille de plus de 1 200 biens commerciaux disponibles à la location. N’hésitez pas à nous contacter pour une recherche personnalisée.
75013 Paris - Place d'Italie
Prix net vendeur
Loyer HT
Pas de porte
Droit au bail
Button Text
Nouveauté
Cession de bail -
VL2-5888
Local Commercial | 90m² | Tolbiac
WALLPARTNERS vous propose un local commercial idéalement situé à proximité immédiate de la Rue de Tolbiac, d’une surface totale d’environ 90m², comprenant : * un rez-de-chaussée de 70 m², * un sous-sol, accessible directement depuis la boutique, d’environ 20m². Le local est équipé d’un point d’eau et de sanitaires. Emplacement stratégique, idéal pour une activité de restauration rapide sans extraction ou toute autre activité commerciale. Nombreuses enseignes dynamiques à proximité. Vous êtes à la recherche d’un local commercial, d’une boutique, de bureaux ou d’un restaurant ? WALLPARTNERS, dispose d’un portefeuille de plus de 1 200 biens commerciaux disponibles à la location. N’hésitez pas à nous contacter pour une recherche personnalisée.
75013 Paris - Tolbiac
Prix net vendeur
Loyer HT
Pas de porte
Droit au bail
Button Text
Nouveauté
Location Pure -
VL2-5887
Local Professionnel | 180m² | Rue Cardinet
WALLPARTNERS vous propose des bureaux idéalement situés à proximité immédiate du Métro Malesherbes, d’une surface totale d’environ 180 m², comprenant : • un rez-de-chaussée de 115 m², • un sous-sol d’environ 65 m², directement accessible depuis le local. Le bien est équipé d’un point d’eau et de sanitaires. Emplacement stratégique, parfaitement adapté à une activité de bureaux : professions libérales, cabinet de conseil, activités juridiques, communication, start-up ou siège opérationnel. Environnement dynamique avec de nombreuses enseignes et services à proximité. Vous êtes à la recherche de bureaux ou de locaux professionnels ? WALLPARTNERS dispose d’un portefeuille de plus de 1 200 biens tertiaires et commerciaux disponibles à la location. 📞 Contactez-nous pour une recherche personnalisée.
75017 Paris - Rue Cardinet
Prix net vendeur
Loyer HT
Pas de porte
Droit au bail
Button Text
Nouveauté
Cession de bail -
VL2-5879
Local Commercial | 80m² | Miromesnil
WALLPARTNERS vous propose un local commercial idéalement situé à proximité immédiate du métro Miromesnil , d’une surface totale d’environ 80m², comprenant : * un rez-de-chaussée de 35m², * un sous-sol, accessible directement depuis la boutique, d’environ 45m². Le local est équipé d’un point d’eau et de sanitaires. Emplacement stratégique, idéal pour une activité de restauration rapide sans extraction ou toute autre activité commerciale. Nombreuses enseignes dynamiques à proximité. Vous êtes à la recherche d’un local commercial, d’une boutique, de bureaux ou d’un restaurant ? WALLPARTNERS, dispose d’un portefeuille de plus de 1 200 biens commerciaux disponibles à la location. N’hésitez pas à nous contacter pour une recherche personnalisée.
75008 Paris - Miromesnil
Prix net vendeur
Loyer HT
Pas de porte
Droit au bail
Button Text
Nouveauté
Location Pure -
VL2-5878
Local Commercial | 13m² | Place de la Bastille
WALLPARTNERS vous propose un local commercial idéalement situé à proximité immédiate de la Place de la Bastille, d’une surface totale d’environ 13 m² en rez-de-chaussée. Hotte à charbon possible Le local est équipé d’un point d’eau et de sanitaires. Emplacement stratégique, idéal pour une activité de restauration rapide sans extraction ou toute autre activité commerciale. Nombreuses enseignes dynamiques à proximité. Vous êtes à la recherche d’un local commercial, d’une boutique, de bureaux ou d’un restaurant ? WALLPARTNERS, dispose d’un portefeuille de plus de 1 200 biens commerciaux disponibles à la location. N’hésitez pas à nous contacter pour une recherche personnalisée.
75011 Paris - Place de la Bastille
Prix net vendeur
Loyer HT
Pas de porte
Droit au bail
Button Text
Prix net vendeur
Droit au bail
Loyer HT
Droit d'entrée

Contactez notre agence

Réf: VL2-4618

Appelez ce numéro pour joindre notre agence:

+33 1 84 79 73 73

Nos conseillers sont à votre écoute

Suivez-nous sur nos réseaux