Vente - Local Commercial 92320 Châtillon

Local Commercial | 180m² | métro Châtillon-Montrouge

Restauration sans extraction
Restauration avec extraction
Murs libres
Murs occupés

Surface

Surface totale
180 m²
Surface RDC
150 m²
Surface Étage
Surface Sous-sol
30 m²

Conditions financières

Prix
Loyer HT
Droit au bail
Charges
Prix au m²
Honoraires
Droit d'entrée

Description

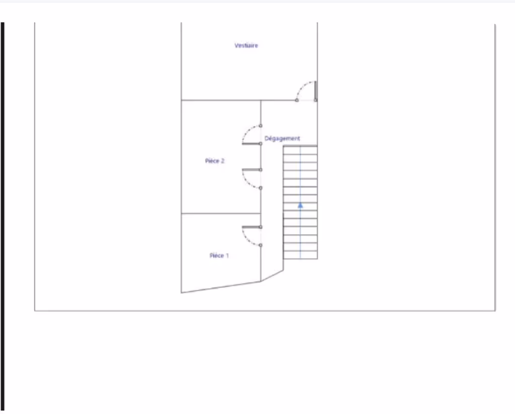
WALLPARTNERS vous propose un local commercial idéalement situé à proximité immédiate de la mairie de Châtillon, d’une surface totale d’environ 180 m², comprenant : * un rez-de-chaussée de 150 m², * un sous-sol, accessible directement depuis la boutique, d’environ 30 m². Le local est équipé d’un point d’eau et de sanitaires. Emplacement stratégique, idéal pour une salle de sport ou toute autre activité commerciale. Nombreuses enseignes dynamiques à proximité. Vous êtes à la recherche d’un local commercial, d’une boutique, de bureaux ou d’un restaurant ? WALLPARTNERS, dispose d’un portefeuille de plus de 1 200 biens commerciaux disponibles à la location. N’hésitez pas à nous contacter pour une recherche personnalisée.

Localisation du bien

VL2-5605
Prix net vendeur
Loyer HT
Pas de porte
Droit au bail HT
Appelez-nous
Thank you! Your submission has been received!
Oops! Something went wrong while submitting the form.
Merci ! Votre demande est envoyée.
Une erreur est survenue.
Partager l'annonce

Vous ne trouvez pas ce que vous cherchez ?

Nos équipes sont là vous vous aider.

Appelez-nous

Biens similaires

Vous ne trouvez pas ce que recherchez, ces biens pourraient peut-être vous intéresser.

Vente
Nouveauté
Location Pure -
VL2-6304
Local Commercial | 30m² | Pigalle
WALLPARTNERS vous propose un local commercial idéalement situé à proximité immédiate du métro Pigalle, d’une surface totale d’environ 30m², comprenant : * un rez-de-chaussée de 23m², * un sous-sol, accessible directement depuis l'immeuble, d’environ 7m². Le local est équipé d’un point d’eau et de sanitaires. Emplacement stratégique, idéal pour une activité de restauration rapide sans extraction ou toute autre activité commerciale. Nombreuses enseignes dynamiques à proximité. Vous êtes à la recherche d’un local commercial, d’une boutique, de bureaux ou d’un restaurant ? WALLPARTNERS, dispose d’un portefeuille de plus de 1 200 biens commerciaux disponibles à la location. N’hésitez pas à nous contacter pour une recherche personnalisée.
75009 Paris - Pigalle
Prix net vendeur
Loyer HT
Pas de porte
Droit au bail
Button Text
Nouveauté
Location Pure -
VL2-6299
Local Commercial | 149m² | Quai de Suresnes
WALLPARTNERS vous propose un local commercial idéalement situé à proximité immédiate de Quai de Suresnes , d’une surface totale d’environ 149 m², comprenant : * un rez-de-chaussée de 92 m², * un sous-sol, accessible directement depuis la boutique, d’environ 57 m². Le local est équipé d’un point d’eau et de sanitaires. Emplacement stratégique, idéal pour une activité de restauration rapide sans extraction ou toute autre activité commerciale. Nombreuses enseignes dynamiques à proximité. Vous êtes à la recherche d’un local commercial, d’une boutique, de bureaux ou d’un restaurant ? WALLPARTNERS, dispose d’un portefeuille de plus de 1 200 biens commerciaux disponibles à la location. N’hésitez pas à nous contacter pour une recherche personnalisée.
92150 Suresnes - Quai de Suresnes
Prix net vendeur
Loyer HT
Pas de porte
Droit au bail
Button Text
Nouveauté
Location Pure -
VL2-6297
Local Commercial | 118m² | Ternes
WALL PARTNERS vous propose un local commercial idéalement situé à proximité immédiate du Boulevard Haussemann, d’une surface totale d’environ 118 m², comprenant : * un rez-de-chaussée de 63 m², * un sous-sol, accessible directement depuis la boutique, d’environ 55 m². Le local est équipé d’un point d’eau et de sanitaires. Emplacement stratégique, idéal pour une activité de service ou toute autre activité commerciale. Nombreuses enseignes dynamiques à proximité. Vous êtes à la recherche d’un local commercial, d’une boutique, de bureaux ou d’un restaurant ? WALLPARTNERS, dispose d’un portefeuille de plus de 1 200 biens commerciaux disponibles à la location. N’hésitez pas à nous contacter pour une recherche personnalisée.
75008 Paris - Ternes
Prix net vendeur
Loyer HT
Pas de porte
Droit au bail
Button Text
Nouveauté
Cession de bail -
VL2-6296
Local Commercial | 105m² | Saint-Sulpice
WALLPARTNERS vous propose un local commercial idéalement situé à proximité immédiate du Bd Raspail, d’une surface totale d’environ 105 m², comprenant : * un rez-de-chaussée de 60 m², * un sous-sol, accessible directement depuis la boutique, d’environ 45 m². Le local est équipé d’un point d’eau et de sanitaires. Emplacement stratégique, idéal pour une activité de restauration rapide sans extraction ou toute autre activité commerciale. Nombreuses enseignes dynamiques à proximité. Vous êtes à la recherche d’un local commercial, d’une boutique, de bureaux ou d’un restaurant ? WALLPARTNERS, dispose d’un portefeuille de plus de 1 200 biens commerciaux disponibles à la location. N’hésitez pas à nous contacter pour une recherche personnalisée.
75007 Paris - Saint-Sulpice
Prix net vendeur
Loyer HT
Pas de porte
Droit au bail
Button Text
Nouveauté
Location Pure -
VL2-6295
Local Commercial | 293m² | Rambuteau
WALLPARTNERS vous propose un local commercial idéalement situé à proximité immédiate du métro Rambiuteau , d’une surface totale d’environ 293 m², comprenant : * un rez-de-chaussée de 200 m², * un sous-sol, accessible directement depuis la boutique, d’environ 33 m². * un étage accessible directement depuis la boutique, d'environ 60m2. Le local est équipé d’un point d’eau et de sanitaires. Emplacement stratégique, idéal pour une activité de restauration rapide sans extraction ou toute autre activité commerciale. Nombreuses enseignes dynamiques à proximité. Vous êtes à la recherche d’un local commercial, d’une boutique, de bureaux ou d’un restaurant ? WALLPARTNERS, dispose d’un portefeuille de plus de 1 200 biens commerciaux disponibles à la location. N’hésitez pas à nous contacter pour une recherche personnalisée.
75003 Paris - Rambuteau
Prix net vendeur
Loyer HT
Pas de porte
Droit au bail
Button Text
Nouveauté
Location Pure -
VL2-6294
Local Commercial | 42m² | Alésia
WALL PARTNERS vous propose un local commercial idéalement situé à proximité immédiate de la Place Victor Et Héléne Basch , d’une surface totale d’environ 42 m² au rez-de-chaussée. Le local est équipé d’un point d’eau et de sanitaires. Emplacement stratégique, idéal pour une activité de restauration rapide sans extraction ou toute autre activité commerciale. Nombreuses enseignes dynamiques à proximité. Vous êtes à la recherche d’un local commercial, d’une boutique, de bureaux ou d’un restaurant ? WALLPARTNERS, dispose d’un portefeuille de plus de 1 200 biens commerciaux disponibles à la location. N’hésitez pas à nous contacter pour une recherche personnalisée.
75014 Paris - Alésia
Prix net vendeur
Loyer HT
Pas de porte
Droit au bail
Button Text
Nouveauté
Vente - LIB
VL2-6291
Local Commercial | 42m² | Porchefontaine
WALLPARTNERS vous propose un local commercial situé à proximité immédiate de la gare de versaille, d’une surface totale d’environ 42 m², de plain pied. Le local est équipé d’un point d’eau et de sanitaires. Emplacement stratégique, idéal pour une activité de restauration rapide sans extraction ou toute autre activité commerciale. Nombreuses enseignes dynamiques à proximité. Vous êtes à la recherche d’un local commercial, d’une boutique, de bureaux ou d’un restaurant ? WALLPARTNERS, dispose d’un portefeuille de plus de 1 200 biens commerciaux disponibles à la location. N’hésitez pas à nous contacter pour une recherche personnalisée.
78000 Versailles - Porchefontaine
Prix net vendeur
Loyer HT
Pas de porte
Droit au bail
Button Text
Nouveauté
Vente - LIB
VL2-6292
Local Commercial | 93m² | Saint-Ambroise
WALL PARTNERS vous propose un local commercial idéalement situé à proximité immédiate de Saint-Ambroise, d’une surface totale d’environ 93 m², comprenant : * un rez-de-chaussée de 80 m², * un sous-sol, accessible directement depuis la boutique, d’environ 13 m². Le local est équipé d’un point d’eau et de sanitaires. Emplacement stratégique, idéal pour toute autre activité commerciale sans alimentation. Nombreuses enseignes dynamiques à proximité. Vous êtes à la recherche d’un local commercial, d’une boutique, de bureaux ou d’un restaurant ? WALLPARTNERS, dispose d’un portefeuille de plus de 1 200 biens commerciaux disponibles à la location. N’hésitez pas à nous contacter pour une recherche personnalisée.
75011 Paris - Saint-Ambroise
Prix net vendeur
Loyer HT
Pas de porte
Droit au bail
Button Text
Nouveauté
Location Pure -
VL2-6290
Local Commercial | 14m² | Chateau de Vincennes
WALL PARTNERS vous propose un local commercial idéalement situé à proximité immédiate de Vincennes RER A, d’une surface totale d’environ 14m2 m² plain-pied en rez-dechaussée. Le local est équipé d’un point d’eau. Emplacement stratégique, idéal pour une activité de restauration rapide sans extraction ou toute autre activité commerciale. Nombreuses enseignes dynamiques à proximité. Vous êtes à la recherche d’un local commercial, d’une boutique, de bureaux ou d’un restaurant ? WALLPARTNERS, dispose d’un portefeuille de plus de 1 200 biens commerciaux disponibles à la location. N’hésitez pas à nous contacter pour une recherche personnalisée.
94300 Vincennes - Chateau de Vincennes
Prix net vendeur
Loyer HT
Pas de porte
Droit au bail
Button Text
Nouveauté
Cession de bail -
VL2-6287
Local Commercial | 90m² | Église de Saint-Mandé
WALL PARTNERS vous propose un local commercial idéalement situé à proximité immédiate de l'église de Saint-Mandé, d’une surface totale d’environ 90 m², comprenant : * un rez-de-chaussée de 40 m², * un sous-sol, accessible directement depuis la boutique pouvant accueiillir du public, d’environ 50 m². Le local est équipé d’un point d’eau et de sanitaires. Emplacement stratégique, idéal pour une activité d'esthétique, restauration rapide sans extraction ou toute autre activité commerciale. Nombreuses enseignes dynamiques à proximité. Vous êtes à la recherche d’un local commercial, d’une boutique, de bureaux ou d’un restaurant ? WALLPARTNERS, dispose d’un portefeuille de plus de 1 200 biens commerciaux disponibles à la location. N’hésitez pas à nous contacter pour une recherche personnalisée.
94160 Saint-Mandé - Église de Saint-Mandé
Prix net vendeur
Loyer HT
Pas de porte
Droit au bail
Button Text
Nouveauté
Location Pure -
VL2-6286
Local Commercial | 724m² | Pont Bineau
WALL PARTNERS vous propose un batiment commercial indépendant idéalement situé à proximité immédiate du Pont Bineau, d’une surface totale d’environ 724 m², comprenant : * une cour privative de 121 m2 avec accès véhicules, * un rez-de-chaussée haut de 226 m², * un rez-de-chaussée bas de 412 m², * un 1ère étage, accessible directement depuis le rdc, d’environ 86 m². Le local est équipé d’un point d’eau et de sanitaires. Emplacement stratégique, idéal pour une activité de salle de sport, laboratoire de cuisine ou toute autre activité commerciale. Nombreuses enseignes dynamiques à proximité. Vous êtes à la recherche d’un local commercial, d’une boutique, de bureaux ou d’un restaurant ? WALLPARTNERS, dispose d’un portefeuille de plus de 1 200 biens commerciaux disponibles à la location. N’hésitez pas à nous contacter pour une recherche personnalisée.
92400 Courbevoie - Pont Bineau
Prix net vendeur
Loyer HT
Pas de porte
Droit au bail
Button Text
Nouveauté
Cession de bail -
VL2-6282
Local Commercial | 66m² | Bonne Nouvelle
WALLPARTNERS vous propose un local commercial idéalement situé à proximité immédiate du métro Bonne Nouvelle - Lignes 8 et 9, d’une surface totale d’environ 66m² de Plein Pied. Le local est équipé d’une hotte à charbon, ainsi que d'un point d’eau et de sanitaires. Emplacement stratégique, idéal pour une activité de restauration rapide ou toute autre activité commerciale. Nombreuses enseignes dynamiques à proximité. Vous êtes à la recherche d’un local commercial, d’une boutique, de bureaux ou d’un restaurant ? WALLPARTNERS, dispose d’un portefeuille de plus de 1 200 biens commerciaux disponibles à la location. N’hésitez pas à nous contacter pour une recherche personnalisée.
75009 Paris - Bonne Nouvelle
Prix net vendeur
Loyer HT
Pas de porte
Droit au bail
Button Text
Nouveauté
Cession de bail -
VL2-6271
Local Commercial | 37m² | Madeleine
WALLPARTNERS vous propose un local commercial idéalement situé à proximité immédiate du boulevard de la Madeleine, d’une surface totale d’environ 37m² de Plein - Pied. Le local est équipé d’un point d’eau et de sanitaires. Emplacement stratégique, idéal pour une activité de restauration rapide sans extraction ou toute autre activité commerciale. Nombreuses enseignes dynamiques à proximité. Vous êtes à la recherche d’un local commercial, d’une boutique, de bureaux ou d’un restaurant ? WALLPARTNERS, dispose d’un portefeuille de plus de 1 200 biens commerciaux disponibles à la location. N’hésitez pas à nous contacter pour une recherche personnalisée.
75008 Paris - Madeleine
Prix net vendeur
Loyer HT
Pas de porte
Droit au bail
Button Text
Nouveauté
Location Pure -
VL2-6281
Local Commercial | 235m² | RER VERSAILLES RIVE GAUCHE
WALLPARTNERS vous propose un local commercial idéalement situé à proximité immédiate du rer de Versailles , d’une surface totale d’environ 235 m², comprenant : * un rez-de-chaussée de 155m², * un sous-sol, accessible directement depuis la boutique, d’environ 80 m². Le local est équipé d’un point d’eau et de sanitaires. Emplacement stratégique, idéal pour une activité de restauration rapide avec extraction ou toute autre activité commerciale. Le local possède deux extractions de 200 Nombreuses enseignes dynamiques à proximité. Vous êtes à la recherche d’un local commercial, d’une boutique, de bureaux ou d’un restaurant ? WALLPARTNERS, dispose d’un portefeuille de plus de 1 200 biens commerciaux disponibles à la location. N’hésitez pas à nous contacter pour une recherche personnalisée.
78000 Versailles - RER VERSAILLES RIVE GAUCHE
Prix net vendeur
Loyer HT
Pas de porte
Droit au bail
Button Text
Nouveauté
Location Pure -
VL2-6277
Local Commercial | 148m² | Versailles
WALLPARTNERS vous propose un local commercial idéalement situé à proximité immédiate de Versailles RER Rive Gauche , d’une surface totale d’environ 148 m², comprenant : * un rez-de-chaussée de 100 m², * un sous-sol, accessible directement depuis la boutique, d’environ 18 m². *un étage de 30m2, accessible depuis la boutique. Le local est équipé d’un point d’eau et de sanitaires. Emplacement stratégique, idéal pour une activité de restauration rapide sans extraction ou toute autre activité commerciale. Nombreuses enseignes dynamiques à proximité. Vous êtes à la recherche d’un local commercial, d’une boutique, de bureaux ou d’un restaurant ? WALLPARTNERS, dispose d’un portefeuille de plus de 1 200 biens commerciaux disponibles à la location. N’hésitez pas à nous contacter pour une recherche personnalisée.
78000 Versailles - Versailles
Prix net vendeur
Loyer HT
Pas de porte
Droit au bail
Button Text
Nouveauté
Location Pure -
VL2-6276
Local Commercial | 75m² | Roquette
WALLPARTNERS vous propose un local commercial idéalement situé à proximité immédiate du Quartier Roquette , d’une surface totale d’environ 75 m², comprenant : * un rez-de-chaussée de 75 m², Le local est équipé d’un point d’eau et de sanitaires. Emplacement stratégique, idéal pour une activité de restauration rapide sans extraction ou toute autre activité commerciale. Nombreuses enseignes dynamiques à proximité. Vous êtes à la recherche d’un local commercial, d’une boutique, de bureaux ou d’un restaurant ? WALLPARTNERS, dispose d’un portefeuille de plus de 1 200 biens commerciaux disponibles à la location. N’hésitez pas à nous contacter pour une recherche personnalisée.
75011 Paris - Roquette
Prix net vendeur
Loyer HT
Pas de porte
Droit au bail
Button Text
Nouveauté
Location Pure -
VL2-6275
Local Commercial | 57m² | Panthéon
WALLPARTNERS vous propose un local commercial idéalement situé à proximité immédiate du Panthéon, d’une surface totale d’environ 57 m², comprenant : * un rez-de-chaussée de 57 m², Le local est équipé d’un point d’eau et de sanitaires. Emplacement stratégique, idéal pour une activité de restauration rapide sans extraction ou toute autre activité commerciale. Nombreuses enseignes dynamiques à proximité. Vous êtes à la recherche d’un local commercial, d’une boutique, de bureaux ou d’un restaurant ? WALLPARTNERS, dispose d’un portefeuille de plus de 1 200 biens commerciaux disponibles à la location. N’hésitez pas à nous contacter pour une recherche personnalisée.
75005 Paris - Panthéon
Prix net vendeur
Loyer HT
Pas de porte
Droit au bail
Button Text
Nouveauté
Location Pure -
VL2-6113
Local Commercial | 65m² | Charles de Gaulle – Étoile
WALL PARTNERS vous propose un local commercial idéalement situé à proximité immédiate de la Place de l'Étoile, d’une surface totale d’environ 65m², comprenant : * un rez-de-chaussée de 35m², * un sous-sol, accessible directement depuis la boutique, d’environ 30m². Le local est équipé d’un point d’eau et de sanitaires. Emplacement stratégique, idéal pour une activité de bijouterie, horlogerie, prêt à porter , coffee shop ou toute autre activité commerciale. Nombreuses enseignes dynamiques à proximité. Vous êtes à la recherche d’un local commercial, d’une boutique, de bureaux ou d’un restaurant ? WALLPARTNERS, dispose d’un portefeuille de plus de 1 200 biens commerciaux disponibles à la location. N’hésitez pas à nous contacter pour une recherche personnalisée.
75016 Paris - Charles de Gaulle – Étoile
Prix net vendeur
Loyer HT
Pas de porte
Droit au bail
Button Text
Nouveauté
Cession de bail -
VL2-3963
Local Commercial | 350m² | Grands Boulevards
WALL PARTNERS vous propose un local commercial à proximité immédiate des Grands Boulevards, d'une surface totale d'environ 400m2 comprenant un rez-de-chaussée d'environ 180m2, un sous-sol d'environ 160m2 et d'un premier étage, qui fait office d'appartement de 60m2 entièrement rénové. Le sous-sol est accessible par la boutique, sanitaire et point d'eau, excellent emplacement pour de la restauration, conduit de cheminée aux normes, nombreuses enseignes à proximité.
75009 Paris - Grands Boulevards
Prix net vendeur
Loyer HT
Pas de porte
Droit au bail
Button Text
Nouveauté
Location Pure -
VL2-6274
Local Commercial | 650m² |
WALL PARTNERS vous propose un local commercial situé Avenue d'Argenteuil, d’une surface totale d’environ 650 m² au rez-de-chaussée Le local est équipé d’un point d’eau et de sanitaires. Emplacement stratégique. Nombreuses enseignes dynamiques à proximité. Vous êtes à la recherche d’un local commercial, d’une boutique, de bureaux ou d’un restaurant ? WALLPARTNERS, dispose d’un portefeuille de plus de 1 200 biens commerciaux disponibles à la location. N’hésitez pas à nous contacter pour une recherche personnalisée.
92600 Asnières-sur-Seine -
Prix net vendeur
Loyer HT
Pas de porte
Droit au bail
Button Text
Nouveauté
Location Pure -
VL2-6272
Local Commercial | 1020m² | République - Beaux-Arts
WALL PARTNERS vous propose un local commercial idéalement situé à proximité immédiate de la Place de la République, d’une surface totale d’environ 1.020m², comprenant : * un rez-de-chaussée de 343m², * un premier étage de 442m², * un deuxième étage de 187m², * un sous-sol, accessible directement depuis la boutique, d’environ 48m². Le local est équipé d’un point d’eau et de sanitaires. Également la possibilité d'installer un conduit de ch"minée (charge preneur) Emplacement stratégique, idéal pour une activité de restauration ou toute autre activité commerciale. Nombreuses enseignes dynamiques à proximité. Vous êtes à la recherche d’un local commercial, d’une boutique, de bureaux ou d’un restaurant ? WALLPARTNERS, dispose d’un portefeuille de plus de 1 200 biens commerciaux disponibles à la location. N’hésitez pas à nous contacter pour une recherche personnalisée.
59000 Lille - République - Beaux-Arts
Prix net vendeur
Loyer HT
Pas de porte
Droit au bail
Button Text
Nouveauté
Location Pure -
VL2-6270
Local Commercial | 27m² | Avron
WALL PARTNERS vous propose un local commercial idéalement situé à proximité immédiate de Avron, d’une surface totale d’environ 27 m² en rez-de-chaussée. Le local est équipé d’un point d’eau et de sanitaires. Emplacement stratégique, idéal pour une activité de restauration chaude avec extraction 300 mm ou toute autre activité commerciale. Nombreuses enseignes dynamiques à proximité. Vous êtes à la recherche d’un local commercial, d’une boutique, de bureaux ou d’un restaurant ? WALLPARTNERS, dispose d’un portefeuille de plus de 1 200 biens commerciaux disponibles à la location. N’hésitez pas à nous contacter pour une recherche personnalisée.
75011 Paris - Avron
Prix net vendeur
Loyer HT
Pas de porte
Droit au bail
Button Text
Nouveauté
Location Pure -
VL2-6266
Local Commercial | 75m² | Jules Joffrin
WALLPARTNERS vous propose un local commercial idéalement situé à proximité immédiate du métro Jules Joffrin (Ligne 12) , d’une surface totale d’environ 75m² en Rez-De-Chaussée, comprenant : Le local est équipé d’un point d’eau et de sanitaires. Emplacement stratégique, idéal pour une activité de restauration froide sans extraction ou toute autre activité commerciale. Nombreuses enseignes dynamiques à proximité. Vous êtes à la recherche d’un local commercial, d’une boutique, de bureaux ou d’un restaurant ? WALLPARTNERS, dispose d’un portefeuille de plus de 1 200 biens commerciaux disponibles à la location. N’hésitez pas à nous contacter pour une recherche personnalisée.
75018 Paris - Jules Joffrin
Prix net vendeur
Loyer HT
Pas de porte
Droit au bail
Button Text
Nouveauté
Location Pure -
VL2-6267
Local Commercial | 185m² | Réaumur - Sébastopol
WALL PARTNERS vous propose un local commercial idéalement situé à proximité immédiate du métro Réaumur-Sébastopol, d’une surface totale d’environ 185m², comprenant : * un rez-de-chaussée de 80m², * un étage d'environ 80m², * un sous-sol, accessible directement depuis la boutique, d’environ 25m². Le local est équipé d’un point d’eau et de sanitaires. Emplacement stratégique, idéal pour une activité de pilates, centre de bien être ou toute autre activité commerciale. Nombreuses enseignes dynamiques à proximité. Vous êtes à la recherche d’un local commercial, d’une boutique, de bureaux ou d’un restaurant ? WALLPARTNERS, dispose d’un portefeuille de plus de 1 200 biens commerciaux disponibles à la location. N’hésitez pas à nous contacter pour une recherche personnalisée.
75002 Paris - Réaumur - Sébastopol
Prix net vendeur
Loyer HT
Pas de porte
Droit au bail
Button Text
Nouveauté
Vente - OCC
VL2-6265
Local Commercial | 92m² | Franklin D. Roosevelt
WALLPARTNERS vous propose des murs occupés avec extraction 400 mm, idéalement situés à proximité immédiate du métro Franklin D. Roosevelt, d’une surface totale d’environ 92 m², comprenant : * un rez-de-chaussée de 67m², * un sous-sol, accessible depuis les parties communes de 25m². Le local est équipé d’un point d’eau et de sanitaires. Nombreuses enseignes dynamiques à proximité. Vous êtes à la recherche d’un local commercial, d’une boutique, de bureaux ou d’un restaurant ? WALLPARTNERS, dispose d’un portefeuille de plus de 1 200 biens commerciaux disponibles à la location. N’hésitez pas à nous contacter pour une recherche personnalisée.
75008 Paris - Franklin D. Roosevelt
Prix net vendeur
Loyer HT
Pas de porte
Droit au bail
Button Text
Nouveauté
Location Pure -
VL2-4582
Local Commercial | 73m² | Saint Placide
WALL PARTNERS vous propose un local commercial à proximité immédiate de la Gare Montparnasse, d'une surface totale d'environ 73 m2 comprenant un rez-de-chaussée d'environ 43 m2 et un sous-sol d'environ 30 m2 le sous-sol est accessible par la boutique, sanitaire et point d'eau, excellent emplacement pour de la restauration rapide (extraction 350mm) , nombreuses enseignes à proximité.
75006 Paris - Saint Placide
Prix net vendeur
Loyer HT
Pas de porte
Droit au bail
Button Text
Nouveauté
Location Pure -
VL2-6262
Local Commercial | 66m² | Poissonnière
WALLPARTNERS vous propose un local commercial idéalement situé à proximité immédiate du métro Ppoissonnière , d’une surface totale d’environ 66 m², comprenant : * un rez-de-chaussée de 41 m², * un sous-sol, accessible directement depuis la boutique, d’environ 25 m². Le local est équipé d’un point d’eau et de sanitaires. Emplacement stratégique, idéal pour une activité de restauration rapide sans extraction ou toute autre activité commerciale. Nombreuses enseignes dynamiques à proximité. Vous êtes à la recherche d’un local commercial, d’une boutique, de bureaux ou d’un restaurant ? WALLPARTNERS, dispose d’un portefeuille de plus de 1 200 biens commerciaux disponibles à la location. N’hésitez pas à nous contacter pour une recherche personnalisée.
75009 Paris - Poissonnière
Prix net vendeur
Loyer HT
Pas de porte
Droit au bail
Button Text
Nouveauté
Location Pure -
VL2-6264
Local Commercial | 425m² | Vieux-Port
WALLPARTNERS vous propose à la location pure un local commercial exceptionnellement situé à seulement 100 mètres du Vieux-Port de Marseille. Emplacement premium, bénéficiant d’un fort flux piéton et d’un environnement commerçant dynamique avec de nombreuses enseignes reconnues à proximité immédiate. D’une surface totale d’environ 425 m², le bien se compose de : 180 m² en rez-de-chaussée, offrant une belle visibilité et un espace de vente optimal, 180 m² au 1er étage, idéal pour un showroom, des bureaux ou une surface complémentaire d’exploitation, 66 m² au 2ᵉ étage, aménagés en appartement, pouvant servir de logement de fonction ou d’espace annexe selon les besoins. Configuration rare sur le secteur, parfaitement adaptée à une activité commerciale, showroom, concept store, bureaux ou toute autre activité (restauration selon projet).
13001 Marseille - Vieux-Port
Prix net vendeur
Loyer HT
Pas de porte
Droit au bail
Button Text
Nouveauté
Location Pure -
VL2-6261
Local Commercial | 820m² | Aéroport de Paris-Le Bourget
WALL PARTNERS vous propose un local commercial idéalement situé à proximité immédiate de l'aéroport du Bourget, d’une surface totale d’environ 820m² de plain pied. Le local est équipé d’un point d’eau et de sanitaires. Emplacement stratégique, idéal pour une activité de stockage ou toute autre activité commerciale. Nombreuses enseignes dynamiques à proximité. Vous êtes à la recherche d’un local commercial, d’une boutique, de bureaux ou d’un restaurant ? WALLPARTNERS, dispose d’un portefeuille de plus de 1 200 biens commerciaux disponibles à la location. N’hésitez pas à nous contacter pour une recherche personnalisée.
93150 Le Blanc-Mesnil - Aéroport de Paris-Le Bourget
Prix net vendeur
Loyer HT
Pas de porte
Droit au bail
Button Text
Nouveauté
Location Pure -
VL2-6260
Local Commercial | 193m² | Porte Saint-Denis
WALLPARTNERS vous propose un local commercial idéalement situé à proximité immédiate de la gare de l'est , d’une surface totale d’environ 193 m², comprenant : * un rez-de-chaussée de 120 m², * un sous-sol, accessible directement depuis la boutique, d’environ 73 m². Le local est équipé d’un point d’eau et de sanitaires. Emplacement stratégique, idéal pour une activité de restauration chaude avec conduit de cheminée ou toute autre activité commerciale. Nombreuses enseignes dynamiques à proximité. Vous êtes à la recherche d’un local commercial, d’une boutique, de bureaux ou d’un restaurant ? WALLPARTNERS, dispose d’un portefeuille de plus de 1 200 biens commerciaux disponibles à la location. N’hésitez pas à nous contacter pour une recherche personnalisée.
75010 Paris - Porte Saint-Denis
Prix net vendeur
Loyer HT
Pas de porte
Droit au bail
Button Text
Nouveauté
Location Pure -
VL2-6258
Local Commercial | 87m² | Église de Boulogne
WALL PARTNERS vous propose un local commercial idéalement situé à proximité immédiate du boulevard Jean Jaurès, d’une surface totale d’environ 87m², comprenant : * un rez-de-chaussée de 60m², * un sous-sol, accessible directement depuis la boutique, d’environ 27m². Le local est équipé d’un point d’eau et de sanitaires. Emplacement stratégique, idéal pour une activité de restauration rapide sans extraction ou toute autre activité commerciale. Nombreuses enseignes dynamiques à proximité. Vous êtes à la recherche d’un local commercial, d’une boutique, de bureaux ou d’un restaurant ? WALLPARTNERS, dispose d’un portefeuille de plus de 1 200 biens commerciaux disponibles à la location. N’hésitez pas à nous contacter pour une recherche personnalisée.
92100 Boulogne-Billancourt - Église de Boulogne
Prix net vendeur
Loyer HT
Pas de porte
Droit au bail
Button Text
Nouveauté
Location Pure -
VL2-6256
Local Commercial | 172m² | Marais
WALLPARTNERS vous propose un local commercial idéalement situé dans le Marais , d’une surface totale d’environ 172 m², comprenant : * un rez-de-chaussée de 129 m², * un sous-sol, accessible directement depuis la boutique, d’environ 43 m². Le local est équipé d’un point d’eau et de sanitaires. Possibilité d'installer une extraction à la charge du preneur. Emplacement stratégique, idéal pour une activité de restauration rapide sans extraction ou toute autre activité commerciale. Nombreuses enseignes dynamiques à proximité. Vous êtes à la recherche d’un local commercial, d’une boutique, de bureaux ou d’un restaurant ? WALLPARTNERS, dispose d’un portefeuille de plus de 1 200 biens commerciaux disponibles à la location. N’hésitez pas à nous contacter pour une recherche personnalisée.
75004 Paris - Marais
Prix net vendeur
Loyer HT
Pas de porte
Droit au bail
Button Text
Nouveauté
Location Pure -
VL2-6254
Local Commercial | 306m² | Vélizy 2
WALL PARTNERS vous propose un local commercial idéalement situé à proximité immédiate du centre Vélizy 2, d’une surface totale de 306m² de plain pied. Le local est équipé d’un point d’eau et de sanitaires. Emplacement stratégique, idéal pour une activité de services, destination ou toute autre activité commerciale. Nombreuses enseignes dynamiques à proximité. Vous êtes à la recherche d’un local commercial, d’une boutique, de bureaux ou d’un restaurant ? WALLPARTNERS, dispose d’un portefeuille de plus de 1 200 biens commerciaux disponibles à la location. N’hésitez pas à nous contacter pour une recherche personnalisée.
78140 Vélizy-Villacoublay - Vélizy 2
Prix net vendeur
Loyer HT
Pas de porte
Droit au bail
Button Text
Nouveauté
Location Pure -
VL2-6253
Local Commercial | 80m² | Batignolles
WALL PARTNERS vous propose un local commercial idéalement situé à proximité immédiate du Pont-Cardinet, d’une surface totale d’environ 80m², comprenant : * un rez-de-chaussée de 62m², * un sous-sol, accessible directement depuis la boutique, d’environ 18m². Le local est équipé d’un point d’eau et de sanitaires. Emplacement stratégique, idéal pour une activité de restauration rapide sans extraction ou toute autre activité commerciale. Nombreuses enseignes dynamiques à proximité. Vous êtes à la recherche d’un local commercial, d’une boutique, de bureaux ou d’un restaurant ? WALLPARTNERS, dispose d’un portefeuille de plus de 1 200 biens commerciaux disponibles à la location. N’hésitez pas à nous contacter pour une recherche personnalisée.
75017 Paris - Batignolles
Prix net vendeur
Loyer HT
Pas de porte
Droit au bail
Button Text
Nouveauté
Location Pure -
VL2-6251
Local Commercial | 51m² | Passy
WALL PARTNERS vous propose un local commercial idéalement situé à proximité immédiate de la rue de Passy , d’une surface totale d’environ 51 m², comprenant : * un rez-de-chaussée de 43 m², * une cave, d’environ 8 m². Le local est équipé d’un point d’eau et de sanitaires et d"une extraction 400. Emplacement stratégique, idéal pour une activité de restauration. Nombreuses enseignes dynamiques à proximité. Vous êtes à la recherche d’un local commercial, d’une boutique, de bureaux ou d’un restaurant ? WALLPARTNERS, dispose d’un portefeuille de plus de 1 200 biens commerciaux disponibles à la location. N’hésitez pas à nous contacter pour une recherche personnalisée.
75116 Paris - Passy
Prix net vendeur
Loyer HT
Pas de porte
Droit au bail
Button Text
Nouveauté
Location Pure -
VL2-6252
Local Commercial | 116m² | Miromesnil
WALLPARTNERS vous propose un local commercial idéalement situé à proximité immédiate du métro Saint-Philippe-du-Roule, d’une surface totale d’environ 116m², comprenant : * un rez-de-chaussée de 94m², * un sous-sol, accessible directement depuis la boutique, d’environ 22m². Le local est équipé d’un point d’eau et de sanitaires. Emplacement stratégique, idéal pour une activité d'agence immobilière, pilate ou toute autre activité commerciale. Nombreuses enseignes dynamiques à proximité. Vous êtes à la recherche d’un local commercial, d’une boutique, de bureaux ou d’un restaurant ? WALLPARTNERS, dispose d’un portefeuille de plus de 1 200 biens commerciaux disponibles à la location. N’hésitez pas à nous contacter pour une recherche personnalisée.
75008 Paris - Miromesnil
Prix net vendeur
Loyer HT
Pas de porte
Droit au bail
Button Text
Nouveauté
Location Pure -
VL2-6250
Local Commercial | 65m² | Havre-Caumartin
WALLPARTNERS vous propose un local commercial idéalement situé à proximité immédiate de , d’une surface totale d’environ m², comprenant : * un rez-de-chaussée de 50 m², * une mezzanine, accessible directement depuis la boutique, d’environ 15 m². Le local est équipé d’un point d’eau et de sanitaires. Emplacement stratégique, idéal pour une activité de restauration rapide sans extraction ou toute autre activité commerciale. Nombreuses enseignes dynamiques à proximité. Vous êtes à la recherche d’un local commercial, d’une boutique, de bureaux ou d’un restaurant ? WALLPARTNERS, dispose d’un portefeuille de plus de 1 200 biens commerciaux disponibles à la location. N’hésitez pas à nous contacter pour une recherche personnalisée.
75009 Paris - Havre-Caumartin
Prix net vendeur
Loyer HT
Pas de porte
Droit au bail
Button Text
Nouveauté
Location Pure -
VL2-6249
Local Commercial | 90m² | Trinité d'Estienne d'orves
WALLPARTNERS vous propose un local commercial idéalement situé à proximité immédiate du métro Trinité Estienne d'Orves , d’une surface totale d’environ 90 m², comprenant : * un rez-de-chaussée de 35 m², * un premier étagel, accessible directement depuis la boutique, d’environ 20 m². * un sous-sol, accessible directement depuis la boutique, d’environ 35 m². Le local est équipé d’un point d’eau et de sanitaires. Emplacement stratégique, idéal pour une activité de restauration rapide sans extraction ou toute autre activité commerciale. Nombreuses enseignes dynamiques à proximité. Vous êtes à la recherche d’un local commercial, d’une boutique, de bureaux ou d’un restaurant ? WALLPARTNERS, dispose d’un portefeuille de plus de 1 200 biens commerciaux disponibles à la location. N’hésitez pas à nous contacter pour une recherche personnalisée.
75009 Paris - Trinité d'Estienne d'orves
Prix net vendeur
Loyer HT
Pas de porte
Droit au bail
Button Text
Nouveauté
Location Pure -
VL2-6248
Local Commercial | 165m² | Pont de sèvres
WALLPARTNERS vous propose un local commercial idéalement situé à proximité immédiate de Pont de sèvres , d’une surface totale d’environ 165 m² de plain pied. Le local est équipé d’un point d’eau et de sanitaires. Emplacement stratégique, idéal pour une activité de cabinet médical, banque et toutes autres activités. Nombreuses enseignes dynamiques à proximité. Vous êtes à la recherche d’un local commercial, d’une boutique, de bureaux ou d’un restaurant ? WALLPARTNERS, dispose d’un portefeuille de plus de 1 200 biens commerciaux disponibles à la location. N’hésitez pas à nous contacter pour une recherche personnalisée.
92100 Boulogne-Billancourt - Pont de sèvres
Prix net vendeur
Loyer HT
Pas de porte
Droit au bail
Button Text
Nouveauté
Location Pure -
VL2-6247
Local Commercial | 85m² | Saint-Mandé
WALL PARTNERS vous propose un local commercial idéalement situé à proximité immédiate du métro Saint-Mandé, d’une surface totale d’environ 85 m², comprenant : * un rez-de-chaussée de 70 m², * un sous-sol, accessible directement depuis la boutique, d’environ 15 m². Le local est équipé d’un point d’eau et de sanitaires. Emplacement stratégique, idéal pour une activité de restauration rapide avec extraction de diamètre 200 mm ou toute autre activité commerciale. Nombreuses enseignes dynamiques à proximité. Vous êtes à la recherche d’un local commercial, d’une boutique, de bureaux ou d’un restaurant ? WALLPARTNERS, dispose d’un portefeuille de plus de 1 200 biens commerciaux disponibles à la location. N’hésitez pas à nous contacter pour une recherche personnalisée.
94160 Saint-Mandé - Saint-Mandé
Prix net vendeur
Loyer HT
Pas de porte
Droit au bail
Button Text
Nouveauté
Location Pure -
VL2-6245
Local Commercial | 70m² | Saint-Mandé
WALL PARTNERS vous propose un local commercial idéalement situé à proximité immédiate de Saint-Mandé, d’une surface totale d’environ 70 m², comprenant : * un rez-de-chaussée de 60 m², * un sous-sol, accessible directement depuis la boutique, d’environ 10 m². Le local est équipé d’un point d’eau et de sanitaires. Emplacement stratégique, idéal pour une activité de restauration rapide avec petite extraction de diamètre 200 mm ou toute autre activité commerciale. Nombreuses enseignes dynamiques à proximité. Vous êtes à la recherche d’un local commercial, d’une boutique, de bureaux ou d’un restaurant ? WALLPARTNERS, dispose d’un portefeuille de plus de 1 200 biens commerciaux disponibles à la location. N’hésitez pas à nous contacter pour une recherche personnalisée.
94160 Saint-Mandé - Saint-Mandé
Prix net vendeur
Loyer HT
Pas de porte
Droit au bail
Button Text
Nouveauté
Location Pure -
VL2-6244
Local Commercial | 30m² | Chateau de Vincennes
WALL PARTNERS vous propose un local commercial idéalement situé à proximité immédiate du Chateau de Vincennes , d’une surface totale d’environ 30 m² en rez-de-chaussée. Le local est équipé d’un point d’eau et de sanitaires. Emplacement numéro 1, idéal pour une activité de restauration rapide sans extraction ou toute autre activité commerciale. Nombreuses enseignes dynamiques à proximité. Vous êtes à la recherche d’un local commercial, d’une boutique, de bureaux ou d’un restaurant ? WALLPARTNERS, dispose d’un portefeuille de plus de 1 200 biens commerciaux disponibles à la location. N’hésitez pas à nous contacter pour une recherche personnalisée.
94300 Vincennes - Chateau de Vincennes
Prix net vendeur
Loyer HT
Pas de porte
Droit au bail
Button Text
Nouveauté
Location Pure -
VL2-6242
Local Commercial | 140m² | Strasbourg Saint Denis
WALLPARTNERS vous propose un local commercial avec extraction, idéalement situé à proximité immédiate du métro Strasbourg Saint-Denis, d’une surface totale d’environ 140m², comprenant : * un rez-de-chaussée de 125m², * une mezzanine, accessible directement depuis la boutique, d’environ 15m². Le local est équipé d’un point d’eau et de sanitaires. Emplacement stratégique, idéal pour une activité de restauration ou toute autre activité commerciale. Nombreuses enseignes dynamiques à proximité. Vous êtes à la recherche d’un local commercial, d’une boutique, de bureaux ou d’un restaurant ? WALLPARTNERS, dispose d’un portefeuille de plus de 1 200 biens commerciaux disponibles à la location. N’hésitez pas à nous contacter pour une recherche personnalisée.
75010 Paris - Strasbourg Saint Denis
Prix net vendeur
Loyer HT
Pas de porte
Droit au bail
Button Text
Nouveauté
Cession de bail -
VL2-6241
Local Commercial | 72m² | Saint-Ambroise
WALLPARTNERS vous propose un local commercial idéalement situé à proximité immédiate de , d’une surface totale d’environ 72m², comprenant : * un rez-de-chaussée de 45m², * un sous-sol, accessible directement depuis la boutique, d’environ 17m². * une mezzanine de 10m² Le local est équipé d’un point d’eau et de sanitaires. Emplacement stratégique, idéal pour une activité de restauration froide sans extraction ou toute autre activité commerciale. Nombreuses enseignes dynamiques à proximité. Vous êtes à la recherche d’un local commercial, d’une boutique, de bureaux ou d’un restaurant ? WALLPARTNERS, dispose d’un portefeuille de plus de 1 200 biens commerciaux disponibles à la location. N’hésitez pas à nous contacter pour une recherche personnalisée.
75011 Paris - Saint-Ambroise
Prix net vendeur
Loyer HT
Pas de porte
Droit au bail
Button Text
Nouveauté
Cession de bail -
VL2-6240
Local Commercial | 32m² | Hotel de Ville
WALL PARTNERS vous propose un local commercial idéalement situé rue des Rosiers , d’une surface totale d’environ 32 m², comprenant : * un rez-de-chaussée de 32 m², dont une réserve de 8 m2 Le local est équipé d’un point d’eau et de sanitaires. Emplacement stratégique, idéal pour une activité de restauration rapide sans extraction ou toute autre activité commerciale. Nombreuses enseignes dynamiques à proximité. Vous êtes à la recherche d’un local commercial, d’une boutique, de bureaux ou d’un restaurant ? WALLPARTNERS, dispose d’un portefeuille de plus de 1 200 biens commerciaux disponibles à la location. N’hésitez pas à nous contacter pour une recherche personnalisée.
75004 Paris - Hotel de Ville
Prix net vendeur
Loyer HT
Pas de porte
Droit au bail
Button Text
Nouveauté
Cession de bail -
VL2-6239
Local Commercial | 58m² | Rue du Bac
WALL PARTNERS vous propose un local commercial idéalement situé rue du Bac, d’une surface totale d’environ 58 m², comprenant : * un rez-de-chaussée de 38 m², * un premier étage, accessible directement depuis la boutique, d’environ 20 m². Le local est équipé d’un point d’eau et de sanitaires. Emplacement stratégique, pas de restauration possible. Nombreuses enseignes dynamiques à proximité. Vous êtes à la recherche d’un local commercial, d’une boutique, de bureaux ou d’un restaurant ? WALLPARTNERS, dispose d’un portefeuille de plus de 1 200 biens commerciaux disponibles à la location. N’hésitez pas à nous contacter pour une recherche personnalisée.
75007 Paris - Rue du Bac
Prix net vendeur
Loyer HT
Pas de porte
Droit au bail
Button Text
Nouveauté
Vente - OCC
VL2-6236
Local Commercial | 270m² | Pont de Suresnes
WALL PARTNERS vous propose un immeuble indépendanr idéalement situé à proximité immédiate du Pont de Suresnes , d’une surface totale d’environ 270 m², comprenant : * un rez-de-chaussée de 200 m², * un premier étage, accessible directement depuis le rdc , d’environ 70 m². Le local est équipé d’un point d’eau et de sanitaires. Vous êtes à la recherche d’un local commercial, d’une boutique, de bureaux ou d’un restaurant ? WALLPARTNERS, dispose d’un portefeuille de plus de 1 200 biens commerciaux disponibles à la location. N’hésitez pas à nous contacter pour une recherche personnalisée.
92150 Suresnes - Pont de Suresnes
Prix net vendeur
Loyer HT
Pas de porte
Droit au bail
Button Text
Nouveauté
Location Pure -
VL2-6235
Local Commercial | 131m² | Saint-Germain-des-Prés
WALL PARTNERS vous propose un local commercial en emplacement numéro 1 rue de Sèvres, d’une surface totale d’environ 131 m², comprenant : * un rez-de-chaussée de 87 m², * un sous-sol, accessible directement depuis la boutique, d’environ 44 m². Le local est équipé d’un point d’eau et de sanitaires. Nombreuses enseignes nationale de luxe à proximité. Vous êtes à la recherche d’un local commercial, d’une boutique, de bureaux ou d’un restaurant ? WALLPARTNERS, dispose d’un portefeuille de plus de 1 200 biens commerciaux disponibles à la location. N’hésitez pas à nous contacter pour une recherche personnalisée.
75006 Paris - Saint-Germain-des-Prés
Prix net vendeur
Loyer HT
Pas de porte
Droit au bail
Button Text
Nouveauté
Location Pure -
VL2-6147
Local Commercial | 432m² | Mairie de Montrouge
WALL PARTNERS vous propose un local commercial idéalement situé à proximité immédiate de la Mairie de Montrouge, d’une surface totale d’environ 432m², comprenant : * un rez-de-chaussée de 245m², * un premier étage, accessible directement depuis la boutique, d’environ 187m². Le local est équipé d’un point d’eau et de sanitaires. Emplacement stratégique, idéal pour tous types d'activités. Nombreuses enseignes dynamiques à proximité. Vous êtes à la recherche d’un local commercial, d’une boutique, de bureaux ou d’un restaurant ? WALLPARTNERS, dispose d’un portefeuille de plus de 1 200 biens commerciaux disponibles à la location. N’hésitez pas à nous contacter pour une recherche personnalisée.
92120 Montrouge - Mairie de Montrouge
Prix net vendeur
Loyer HT
Pas de porte
Droit au bail
Button Text
Nouveauté
Location Pure -
VL2-6094
Local Commercial | 223m² | Cadet
WALLPARTNERS vous propose un local commercial idéalement situé à proximité immédiate du métro Cadet , d’une surface totale d’environ 223m², comprenant : * un local sur Rue de 113m², * une deuxième surface, accessible depuis la cour intérieure de l'immeuble, et reliée au premier local, d’environ 110m². Le local est équipé d’un point d’eau et de sanitaires. Emplacement stratégique, idéal pour une activité de pilate ou toute autre activité commerciale. Nombreuses enseignes dynamiques à proximité. Vous êtes à la recherche d’un local commercial, d’une boutique, de bureaux ou d’un restaurant ? WALLPARTNERS, dispose d’un portefeuille de plus de 1 200 biens commerciaux disponibles à la location. N’hésitez pas à nous contacter pour une recherche personnalisée.
75009 Paris - Cadet
Prix net vendeur
Loyer HT
Pas de porte
Droit au bail
Button Text
Nouveauté
Location -
VL2-4601
Local Commercial | 45m² | Saint-Paul
WALL PARTNERS vous propose un local commercial / une boutique à proximité immédiate de la rue de Rivoli, en plein coeur du marais, d'une surface totale d'environ 45m2 de plain pied, sanitaire et point d'eau, excellent emplacement pour de la restauration froide sans nuisances, bénéficiant d'un flux piéton important avec de nombreux commerces à proximité.
75004 Paris - Saint-Paul
Prix net vendeur
Loyer HT
Pas de porte
Droit au bail
Button Text
Nouveauté
Location Pure -
VL2-6234
Local Commercial | 387m² | Puteaux
WALL PARTNERS vous propose un local commercial idéalement situé à proximité immédiate de la Gare de Puteaux, d’une surface totale d’environ 387m², comprenant : * un rez-de-chaussée de 167m², * un étage d'environ 140 m², * un sous-sol, accessible directement depuis la boutique, faisant office de salle de réunion avec sortie de secours d’environ 80m². Le local est équipé d’un point d’eau et de sanitaires. Emplacement stratégique, idéal pour une activité de service, centre médical ou toute autre activité commerciale. Nombreuses enseignes dynamiques à proximité. Vous êtes à la recherche d’un local commercial, d’une boutique, de bureaux ou d’un restaurant ? WALLPARTNERS, dispose d’un portefeuille de plus de 1 200 biens commerciaux disponibles à la location. N’hésitez pas à nous contacter pour une recherche personnalisée.
92150 Suresnes - Puteaux
Prix net vendeur
Loyer HT
Pas de porte
Droit au bail
Button Text
Nouveauté
Location Pure -
VL2-6233
Local Commercial | 250m² | Bastille
WALL PARTNERS vous propose un local commercial idéalement situé à proximité immédiate de la Place de la Bastille ainsi que du métro Ledru-Rollin, d’une surface totale d’environ 250m², comprenant : * un rez-de-chaussée d'environ 210m², * un sous-sol, accessible directement depuis la boutique, d’environ 40m². Le local est équipé d’un point d’eau et de sanitaires. Emplacement stratégique, idéal pour une activité de destination, pilates, coiffeur, esthétique ou toute autre activité commerciale. Nombreuses enseignes dynamiques à proximité. Vous êtes à la recherche d’un local commercial, d’une boutique, de bureaux ou d’un restaurant ? WALLPARTNERS, dispose d’un portefeuille de plus de 1 200 biens commerciaux disponibles à la location. N’hésitez pas à nous contacter pour une recherche personnalisée.
75012 Paris - Bastille
Prix net vendeur
Loyer HT
Pas de porte
Droit au bail
Button Text
Nouveauté
Location Pure -
VL2-6231
Local Commercial | 60m² | Hotel de Ville
WALLPARTNERS vous propose un local commercial idéalement situé à proximité immédiate de l'hôtel de ville, d’une surface totale d’environ 60 m², comprenant : * un rez-de-chaussée de 30 m², * un sous-sol, accessible directement depuis la boutique, d’environ 30 m². Le local est équipé d’un point d’eau et de sanitaires. Emplacement stratégique, idéal pour une activité de restauration rapide sans extraction ou toute autre activité commerciale. Nombreuses enseignes dynamiques à proximité. Vous êtes à la recherche d’un local commercial, d’une boutique, de bureaux ou d’un restaurant ? WALLPARTNERS, dispose d’un portefeuille de plus de 1 200 biens commerciaux disponibles à la location. N’hésitez pas à nous contacter pour une recherche personnalisée.
75004 Paris - Hotel de Ville
Prix net vendeur
Loyer HT
Pas de porte
Droit au bail
Button Text
Nouveauté
Location Pure -
VL2-6230
Local Commercial | 116m² | avenue d'Argenteuil
WALLPARTNERS vous propose un local commercial idéalement situé à proximité immédiate de l'avenue d'Argenteuil, d’une surface totale d’environ 116 m², comprenant : * un rez-de-chaussée de 62 m², * un sous-sol, accessible directement depuis la boutique, d’environ 54 m². conduit d'extraction de 200 de diamètre. Le local est équipé d’un point d’eau et de sanitaires. Emplacement stratégique, idéal pour une activité de restauration rapide sans extraction ou toute autre activité commerciale. Nombreuses enseignes dynamiques à proximité. Vous êtes à la recherche d’un local commercial, d’une boutique, de bureaux ou d’un restaurant ? WALLPARTNERS, dispose d’un portefeuille de plus de 1 200 biens commerciaux disponibles à la location. N’hésitez pas à nous contacter pour une recherche personnalisée.
92270 Bois-Colombes - avenue d'Argenteuil
Prix net vendeur
Loyer HT
Pas de porte
Droit au bail
Button Text
Nouveauté
Location Pure -
VL2-6229
Local Commercial | 140m² | avenue Parmentier
WALLPARTNERS vous propose un local commercial idéalement situé à proximité immédiate de l'avenue Parmentier, d’une surface totale d’environ 140 m² le tout en rez-de-chaussée. Le local est équipé d’un point d’eau et de sanitaires. Emplacement stratégique, idéal pour un cabinet de kiné , ou cabinet d'architecte, ou salle de Pilâtes , ou toute autre activité commerciale. Nombreuses enseignes dynamiques à proximité. Vous êtes à la recherche d’un local commercial, d’une boutique, de bureaux ou d’un restaurant ? WALLPARTNERS, dispose d’un portefeuille de plus de 1 200 biens commerciaux disponibles à la location. N’hésitez pas à nous contacter pour une recherche personnalisée.
75010 Paris - avenue Parmentier
Prix net vendeur
Loyer HT
Pas de porte
Droit au bail
Button Text
Nouveauté
Location Pure -
VL2-6228
Local Commercial | 76m² | Ternes
WALLPARTNERS vous propose un local commercial idéalement situé à proximité immédiate du métro Ternes, d’une surface totale d’environ 76 m², comprenant : * un rez-de-chaussée de 56 m², * un sous-sol, accessible directement depuis la boutique, d’environ 20 m². Le local est équipé d’un point d’eau et de sanitaires. Emplacement stratégique, idéal pour une activité de Prêt à Porter ou toute autre activité commerciale. Nombreuses enseignes dynamiques à proximité. Vous êtes à la recherche d’un local commercial, d’une boutique, de bureaux ou d’un restaurant ? WALLPARTNERS, dispose d’un portefeuille de plus de 1 200 biens commerciaux disponibles à la location. N’hésitez pas à nous contacter pour une recherche personnalisée.
75017 Paris - Ternes
Prix net vendeur
Loyer HT
Pas de porte
Droit au bail
Button Text
Nouveauté
Location Pure -
VL2-6227
Local Commercial | 70m² | quai de Valmy
WALLPARTNERS vous propose un local commercial idéalement situé à proximité immédiate du métro Château Landon , d’une surface totale d’environ 70 m² le tout en rez-de-chaussée, * 2 emplacements de stationnement au sous sol de l'immeuble. Le local est équipé d’un point d’eau et de sanitaires. Emplacement stratégique, idéal pour une activité de restauration rapide sans extraction ou une agence immobilière, ou un cabinet d'architecte, ou toutes autres activités commerciales. Nombreuses enseignes dynamiques à proximité. Vous êtes à la recherche d’un local commercial, d’une boutique, de bureaux ou d’un restaurant ? WALLPARTNERS, dispose d’un portefeuille de plus de 1 200 biens commerciaux disponibles à la location. N’hésitez pas à nous contacter pour une recherche personnalisée.
75010 Paris - quai de Valmy
Prix net vendeur
Loyer HT
Pas de porte
Droit au bail
Button Text
Nouveauté
Location Pure -
VL2-6226
Local Commercial | 120m² | Cadet
WALLPARTNERS vous propose un local commercial idéalement situé à proximité immédiate du métro Cadet , d’une surface totale d’environ 120 m², comprenant : * un rez-de-chaussée de 65 m², * un sous-sol, accessible directement depuis la boutique, d’environ 55 m². Le local est équipé d’un point d’eau et de sanitaires. Emplacement stratégique, idéal pour une activité de restauration rapide sans extraction ou toute autre activité commerciale. Nombreuses enseignes dynamiques à proximité. Vous êtes à la recherche d’un local commercial, d’une boutique, de bureaux ou d’un restaurant ? WALLPARTNERS, dispose d’un portefeuille de plus de 1 200 biens commerciaux disponibles à la location. N’hésitez pas à nous contacter pour une recherche personnalisée.
75009 Paris - Cadet
Prix net vendeur
Loyer HT
Pas de porte
Droit au bail
Button Text
Nouveauté
Location Pure -
VL2-6225
Local Commercial | 103m² | Invalides
WALLPARTNERS vous propose un local commercial idéalement situé à proximité immédiate des Invalides, d’une surface totale d’environ 103 m² comprenant un rez-de-chaussée de 95 m2, une cave en sous sol de 8 m2 Le local est équipé d’un point d’eau et de sanitaires. Emplacement stratégique, idéal pour une activité de Pilâtes ou toute autre activité commerciale. Nombreuses enseignes dynamiques à proximité. Vous êtes à la recherche d’un local commercial, d’une boutique, de bureaux ou d’un restaurant ? WALLPARTNERS, dispose d’un portefeuille de plus de 1 200 biens commerciaux disponibles à la location. N’hésitez pas à nous contacter pour une recherche personnalisée.
75007 Paris - Invalides
Prix net vendeur
Loyer HT
Pas de porte
Droit au bail
Button Text
Nouveauté
Location Pure -
VL2-6223
Local Commercial | 188m² | Billancourt - Rives de Seine
WALL PARTNERS vous propose un local commercial idéalement situé à proximité immédiate des Rives de Seine, d’une surface totale d’environ 188m², comprenant : * un rez-de-chaussée de 104m², * une mezzanine, accessible directement depuis la boutique, d’environ 84m². Le local est équipé d’un point d’eau et de sanitaires. Emplacement stratégique, idéal pour une activité de services, agence, esthétique ou toute autre activité commerciale. Nombreuses enseignes dynamiques à proximité. Vous êtes à la recherche d’un local commercial, d’une boutique, de bureaux ou d’un restaurant ? WALLPARTNERS, dispose d’un portefeuille de plus de 1 200 biens commerciaux disponibles à la location. N’hésitez pas à nous contacter pour une recherche personnalisée.
92100 Boulogne-Billancourt - Billancourt - Rives de Seine
Prix net vendeur
Loyer HT
Pas de porte
Droit au bail
Button Text
Nouveauté
Location Pure -
VL2-6222
Local Commercial | 410m² | Strasbourg - Saint-Denis
WALL PARTNERS vous propose un local commercial idéalement situé à proximité immédiate de Strasbourg - Saint-Denis, d’une surface totale d’environ 410 m², comprenant : * un rez-de-chaussée de 180 m², * un 1 étage commercial de 120 m2, * un sous-sol, accessible directement depuis la boutique, d’environ 110 m². Le local est équipé d’un point d’eau et de sanitaires. Emplacement stratégique, idéal pour une activité de restauration rapide sans extraction ou toute autre activité commerciale. Nombreuses enseignes dynamiques à proximité. Vous êtes à la recherche d’un local commercial, d’une boutique, de bureaux ou d’un restaurant ? WALLPARTNERS, dispose d’un portefeuille de plus de 1 200 biens commerciaux disponibles à la location. N’hésitez pas à nous contacter pour une recherche personnalisée.
75002 Paris - Strasbourg - Saint-Denis
Prix net vendeur
Loyer HT
Pas de porte
Droit au bail
Button Text
Nouveauté
Location Pure -
VL2-6221
Local Commercial | 330m² | Censier - Daubenton
WALL PARTNERS vous propose un local commercial idéalement situé à proximité immédiate de Censier - Daubenton, d’une surface totale d’environ 330 m², comprenant : * un rez-de-chaussée de 250 m², * un 1ère étage, accessible directement depuis la boutique, d’environ 48 m². * Ainsi qu'un 2ème étage de 32 m2 Le local est équipé d’un point d’eau et de sanitaires. Emplacement stratégique, idéal pour une école ou toute autre activité commerciale. Nombreuses enseignes dynamiques à proximité. Vous êtes à la recherche d’un local commercial, d’une boutique, de bureaux ou d’un restaurant ? WALLPARTNERS, dispose d’un portefeuille de plus de 1 200 biens commerciaux disponibles à la location. N’hésitez pas à nous contacter pour une recherche personnalisée.
75005 Paris - Censier - Daubenton
Prix net vendeur
Loyer HT
Pas de porte
Droit au bail
Button Text
Nouveauté
Location Pure -
VL2-6220
Local Commercial | 53m² | Saint-Ambroise
WALL PARTNERS vous propose un local commercial idéalement situé à proximité immédiate de Saint-Ambroise, d’une surface totale d’environ 53 m², comprenant : * un rez-de-chaussée de 40 m², * un sous-sol, accessible directement depuis la boutique, d’environ 13 m². Le local est équipé d’un point d’eau et de sanitaires. Emplacement stratégique, idéal pour une activité de type tertiaire ou toute autre activité commerciale sauf alimentaire. Nombreuses enseignes dynamiques à proximité. Vous êtes à la recherche d’un local commercial, d’une boutique, de bureaux ou d’un restaurant ? WALLPARTNERS, dispose d’un portefeuille de plus de 1 200 biens commerciaux disponibles à la location. N’hésitez pas à nous contacter pour une recherche personnalisée.
75011 Paris - Saint-Ambroise
Prix net vendeur
Loyer HT
Pas de porte
Droit au bail
Button Text
Nouveauté
Location Pure -
VL2-6219
Local Commercial | 40m² | Saint-Ambroise
WALL PARTNERS vous propose un local commercial idéalement situé à proximité immédiate de Saint-Ambroise, d’une surface totale d’environ 40 m², comprenant : * un rez-de-chaussée de 40 m², Le local est équipé d’un point d’eau et de sanitaires. Emplacement stratégique, idéal pour un coiffeur ou toute autre activité commerciale sauf alimentation. Nombreuses enseignes dynamiques à proximité. Vous êtes à la recherche d’un local commercial, d’une boutique, de bureaux ou d’un restaurant ? WALLPARTNERS, dispose d’un portefeuille de plus de 1 200 biens commerciaux disponibles à la location. N’hésitez pas à nous contacter pour une recherche personnalisée.
75011 Paris - Saint-Ambroise
Prix net vendeur
Loyer HT
Pas de porte
Droit au bail
Button Text
Nouveauté
Location Pure -
VL2-6218
Local Commercial | 42m² | Vaugirard
WALLPARTNERS vous propose un local commercial idéalement situé à proximité immédiate du métro falguière, d’une surface totale d’environ 42 m², comprenant : * un rez-de-chaussée de 31 m², * un sous-sol, accessible directement depuis la boutique, d’environ 11 m², * une cave Le local est équipé d’un point d’eau et de sanitaires. Emplacement stratégique, idéal pour une activité de restauration rapide sans extraction ou toute autre activité commerciale. Nombreuses enseignes dynamiques à proximité. Vous êtes à la recherche d’un local commercial, d’une boutique, de bureaux ou d’un restaurant ? WALLPARTNERS, dispose d’un portefeuille de plus de 1 200 biens commerciaux disponibles à la location. N’hésitez pas à nous contacter pour une recherche personnalisée.
75015 Paris - Vaugirard
Prix net vendeur
Loyer HT
Pas de porte
Droit au bail
Button Text
Nouveauté
Location Pure -
VL2-3079
Local Commercial | 360m² | Rambuteau
WALL PARTNERS vous propose un local commercial en angle à proximité immédiate de la rue Rambuteau, d'une surface totale d'environ 360 m2 comprenant un rez-de-chaussée d'environ 160 m2 et un sous-sol d'environ 200 m2 le sous-sol est accessible par la boutique, sanitaire et point d'eau, excellent emplacement pour de la restauration rapide, show room, galerie d'art, nombreuses enseignes à proximité.
75003 Paris - Rambuteau
Prix net vendeur
Loyer HT
Pas de porte
Droit au bail
Button Text
Nouveauté
Location Pure -
VL2-5966
Local Commercial | 270m² | Passy
WALL PARTNERS vous propose un local commercial idéalement situé rue de Passy en emplacement 1 , d’une surface totale d’environ 270 m², comprenant : * un rez-de-chaussée de 240 m², * un sous-sol, accessible directement depuis la boutique, d’environ 30 m². Le local est équipé d’un point d’eau et de sanitaires. Emplacement stratégique, idéal pour une activité de restauration rapide sans extraction ou toute autre activité commerciale. Nombreuses enseignes dynamiques à proximité. Vous êtes à la recherche d’un local commercial, d’une boutique, de bureaux ou d’un restaurant ? WALLPARTNERS, dispose d’un portefeuille de plus de 1 200 biens commerciaux disponibles à la location. N’hésitez pas à nous contacter pour une recherche personnalisée.
75116 Paris - Passy
Prix net vendeur
Loyer HT
Pas de porte
Droit au bail
Button Text
Nouveauté
Location Pure -
VL2-6217
Local Commercial | 47m² | Poissonière
WALLPARTNERS vous propose un local commercial idéalement situé à proximité immédiate du métro Poissonière , d’une surface totale d’environ 47 m², comprenant : * un rez-de-chaussée de 38 m², * un sous-sol, accessible directement depuis la boutique, d’environ 9 m². Le local est équipé d’un point d’eau et de sanitaires. Emplacement stratégique, idéal pour une activité de bureau, esthétique, salon de coiffure ou toute autre activité commerciale. Nombreuses enseignes dynamiques à proximité. Vous êtes à la recherche d’un local commercial, d’une boutique, de bureaux ou d’un restaurant ? WALLPARTNERS, dispose d’un portefeuille de plus de 1 200 biens commerciaux disponibles à la location. N’hésitez pas à nous contacter pour une recherche personnalisée.
75009 Paris - Poissonière
Prix net vendeur
Loyer HT
Pas de porte
Droit au bail
Button Text
Nouveauté
Location Pure -
VL2-6216
Local Commercial | 120m² | Bretagne - Temple
WALL PARTNERS vous propose un local commercial idéalement situé à proximité immédiate du métro Arts-et-Métiers, d’une surface totale d’environ 120m², comprenant : * un rez-de-chaussée de 80m², * une mezzanine d'environ 20m², * un sous-sol, accessible directement depuis la boutique, d’environ 20m². Le local est équipé d’un point d’eau et de sanitaires. Emplacement stratégique, idéal pour une activité de prêt à porter ou toute autre activité commerciale sans nuisances. Nombreuses enseignes dynamiques à proximité. Vous êtes à la recherche d’un local commercial, d’une boutique, de bureaux ou d’un restaurant ? WALLPARTNERS, dispose d’un portefeuille de plus de 1 200 biens commerciaux disponibles à la location. N’hésitez pas à nous contacter pour une recherche personnalisée.
75003 Paris - Bretagne - Temple
Prix net vendeur
Loyer HT
Pas de porte
Droit au bail
Button Text
Nouveauté
Location Pure -
VL2-6215
Local Commercial | 82m² | Sentier
WALL PARTNERS vous propose un local commercial idéalement situé à proximité immédiate du métro Sentier, d’une surface totale d’environ 82 m², comprenant : * un rez-de-chaussée de 35 m², * un entresol de 17 m2 * un sous-sol, accessible directement depuis la boutique, d’environ 30 m². Le local est équipé d’un point d’eau et de sanitaires. Emplacement stratégique, idéal pour une activité de restauration rapide sans extraction ou toute autre activité commerciale. Nombreuses enseignes dynamiques à proximité. Vous êtes à la recherche d’un local commercial, d’une boutique, de bureaux ou d’un restaurant ? WALLPARTNERS, dispose d’un portefeuille de plus de 1 200 biens commerciaux disponibles à la location. N’hésitez pas à nous contacter pour une recherche personnalisée.
75002 Paris - Sentier
Prix net vendeur
Loyer HT
Pas de porte
Droit au bail
Button Text
Nouveauté
Location Pure -
VL2-6214
Local Commercial | 55m² | Bolivar
WALLPARTNERS vous propose un local commercial idéalement situé à proximité immédiate du métro Bolivar (Ligne 7bis) , d’une surface totale d’environ 55m², comprenant : * un rez-de-chaussée de 35m², * un sous-sol, accessible directement depuis la boutique, d’environ 20m². Le local est équipé d’un point d’eau et de sanitaires. Emplacement stratégique, idéal pour une activité de restauration rapide sans extraction ou toute autre activité commerciale. Nombreuses enseignes dynamiques à proximité. Vous êtes à la recherche d’un local commercial, d’une boutique, de bureaux ou d’un restaurant ? WALLPARTNERS, dispose d’un portefeuille de plus de 1 200 biens commerciaux disponibles à la location. N’hésitez pas à nous contacter pour une recherche personnalisée.
75019 Paris - Bolivar
Prix net vendeur
Loyer HT
Pas de porte
Droit au bail
Button Text
Nouveauté
Vente - OCC
VL2-2163
Local Commercial | 239m² | ALESIA
WALL PARTNERS vous propose à la vente des murs occupés par un gros groupe, d'une boutique d'angle à proximité immédiate de Alésia , d'une surface totale d'environ 196 m2 de plain pied en angle avec deux conduits d'extraction, et un sous-sol au sous-sol de 43 m2, sanitaire et point d'eau.
75014 Paris - ALESIA
Prix net vendeur
Loyer HT
Pas de porte
Droit au bail
Button Text
Nouveauté
Location Pure -
VL2-6211
Local Commercial | 436m² | Croix de Chavaux
WALLPARTNERS vous propose un local commercial idéalement situé à proximité immédiate du métro Croix de Chaveaux , d’une surface totale d’environ 436 m², comprenant : * un rez-de-chaussée de 436 m² Le local est équipé d’un point d’eau et de sanitaires. Emplacement stratégique, idéal pour une activité sport, cabinet médical ou toute autre activité commerciale. Nombreuses enseignes dynamiques à proximité. Vous êtes à la recherche d’un local commercial, d’une boutique, de bureaux ou d’un restaurant ? WALLPARTNERS, dispose d’un portefeuille de plus de 1 200 biens commerciaux disponibles à la location. N’hésitez pas à nous contacter pour une recherche personnalisée.
93100 Montreuil - Croix de Chavaux
Prix net vendeur
Loyer HT
Pas de porte
Droit au bail
Button Text
Nouveauté
Vente - LIB
VL2-6209
Local Commercial | 130m² | Mairie d'Alfortville
WALL PARTNERS vous propose des murs libres à vendre idéalement situé à proximité immédiate de la Mairie d'Alfortville, d’une surface totale d’environ 130m², comprenant : * un rez-de-chaussée de 65m², * un sous-sol, accessible directement depuis la boutique, d’environ 65m². Le local est équipé d’un point d’eau et de sanitaires. Emplacement stratégique, idéal pour une activité d'opticien, d'agence immo, audioprothésiste ou toute autre activité commerciale. Nombreuses enseignes dynamiques à proximité. Vous êtes à la recherche d’un local commercial, d’une boutique, de bureaux ou d’un restaurant ? WALLPARTNERS, dispose d’un portefeuille de plus de 1 200 biens commerciaux disponibles à la location. N’hésitez pas à nous contacter pour une recherche personnalisée.
94140 Alfortville - Mairie d'Alfortville
Prix net vendeur
Loyer HT
Pas de porte
Droit au bail
Button Text
Nouveauté
Location Pure -
VL2-6208
Local Commercial | 130m² | Mairie d'Alfortville
WALL PARTNERS vous propose un local commercial idéalement situé à proximité immédiate de la Mairie d'Alfortville, d’une surface totale d’environ 130m², comprenant : * un rez-de-chaussée de 65m², * un sous-sol, accessible directement depuis la boutique, d’environ 65m². Le local est équipé d’un point d’eau et de sanitaires. Emplacement stratégique, idéal pour une activité d'opticien, d'agence immo, audioprothésiste ou toute autre activité commerciale. Nombreuses enseignes dynamiques à proximité. Vous êtes à la recherche d’un local commercial, d’une boutique, de bureaux ou d’un restaurant ? WALLPARTNERS, dispose d’un portefeuille de plus de 1 200 biens commerciaux disponibles à la location. N’hésitez pas à nous contacter pour une recherche personnalisée.
94140 Alfortville - Mairie d'Alfortville
Prix net vendeur
Loyer HT
Pas de porte
Droit au bail
Button Text
Nouveauté
Location Pure -
VL2-6207
Local Commercial | 80m² | Victor Hugo
WALL PARTNERS vous propose un local commercial idéalement situé à proximité immédiate de l'avenue Victor Hugo, d’une surface totale d’environ 80m², comprenant : * un rez-de-chaussée de 55m², * un sous-sol, accessible directement depuis la boutique, d’environ 25m². Le local est équipé d’un point d’eau et de sanitaires. Emplacement stratégique, idéal pour une activité de prêt à porter ou toute autre activité commerciale. Nombreuses enseignes dynamiques à proximité. Vous êtes à la recherche d’un local commercial, d’une boutique, de bureaux ou d’un restaurant ? WALLPARTNERS, dispose d’un portefeuille de plus de 1 200 biens commerciaux disponibles à la location. N’hésitez pas à nous contacter pour une recherche personnalisée.
75016 Paris - Victor Hugo
Prix net vendeur
Loyer HT
Pas de porte
Droit au bail
Button Text
Nouveauté
Vente - OCC
VL2-6206
Local Commercial | 55m² | Cambronne
WALLPARTNERS vous propose un local commercial idéalement situé à proximité immédiate du métro Cambronne (Ligne 6) , d’une surface totale d’environ 55m², comprenant : * un rez-de-chaussée de 25m², * un sous-sol, accessible directement depuis la boutique, d’environ 30m². Le local est actuellement loué à une boutique de CBD depuis Septembre 2025, il dispose d’un point d’eau et de sanitaires. Emplacement stratégique, idéal pour toute autre activité commerciale. Nombreuses enseignes dynamiques à proximité. Vous êtes à la recherche d’un local commercial, d’une boutique, de bureaux ou d’un restaurant ? WALLPARTNERS, dispose d’un portefeuille de plus de 1 200 biens commerciaux disponibles à la location. N’hésitez pas à nous contacter pour une recherche personnalisée.
75015 Paris - Cambronne
Prix net vendeur
Loyer HT
Pas de porte
Droit au bail
Button Text
Nouveauté
Location Pure -
VL2-6204
Local Commercial | 175m² | Rue de Sèvres
WALLPARTNERS vous propose un local commercial sur cour, situé à proximité immédiate du métro Vanneau, d’une surface totale d’environ 175m², comprenant : * un rez-de-chaussée de 148m², * un étage, accessible directement depuis la boutique, d’environ 27m². Le local est équipé d’un point d’eau et de sanitaires. Emplacement stratégique, idéal pour une activité de bureaux, pilate, showroomn agence de com, ou toute autre activité commerciale. Nombreuses enseignes dynamiques à proximité. Vous êtes à la recherche d’un local commercial, d’une boutique, de bureaux ou d’un restaurant ? WALLPARTNERS, dispose d’un portefeuille de plus de 1200 biens commerciaux disponibles à la location. N’hésitez pas à nous contacter pour une recherche personnalisée.
75007 Paris - Rue de Sèvres
Prix net vendeur
Loyer HT
Pas de porte
Droit au bail
Button Text
Nouveauté
Location Pure -
VL2-6197
Local Commercial | 160m² | Boulogne Billancourt
WALLPARTNERS vous propose un local commercial idéalement situé à proximité immédiate de Marcel Sembat , d’une surface totale d’environ 160 m², comprenant : * un rez-de-chaussée de 125 m², * un sous-sol, accessible directement depuis la boutique, d’environ 35 m². Le local est équipé d’un point d’eau et de sanitaires. Emplacement stratégique, idéal pour une activité de restauration rapide sans extraction ou toute autre activité commerciale. Nombreuses enseignes dynamiques à proximité. Vous êtes à la recherche d’un local commercial, d’une boutique, de bureaux ou d’un restaurant ? WALLPARTNERS, dispose d’un portefeuille de plus de 1 200 biens commerciaux disponibles à la location. N’hésitez pas à nous contacter pour une recherche personnalisée.
92100 Boulogne-Billancourt - Boulogne Billancourt
Prix net vendeur
Loyer HT
Pas de porte
Droit au bail
Button Text
Nouveauté
Vente - LIB
VL2-6203
Local Commercial | 180m² | Gare - Enghien-Les-Bains
WALL PARTNERS vous propose les murs d'un centre dentaire à vendre idéalement situé à proximité immédiate du centre ville d'Enghain, d’une surface totale d’environ 180m², comprenant : * un rez-de-chaussée de 120m², * un sous-sol, accessible directement depuis la boutique, d’environ 60m². Le local est équipé d’un point d’eau et de sanitaires. Emplacement stratégique, idéal pour une activité de service, médicale ou toute autre activité commerciale. Nombreuses enseignes dynamiques à proximité. Vous êtes à la recherche d’un local commercial, d’une boutique, de bureaux ou d’un restaurant ? WALLPARTNERS, dispose d’un portefeuille de plus de 1 200 biens commerciaux disponibles à la location. N’hésitez pas à nous contacter pour une recherche personnalisée.
95160 Montmorency - Gare - Enghien-Les-Bains
Prix net vendeur
Loyer HT
Pas de porte
Droit au bail
Button Text
Nouveauté
Location Pure -
VL2-6202
Local Commercial | 377m² | Saint-Placide
WALL PARTNERS vous propose un local commercial idéalement situé à proximité immédiate du métro Saint-Placide, d’une surface totale d’environ 377 m², comprenant : * un rez-de-chaussée de 143 m², * un R+1 de 99 m2 * un sous-sol, accessible directement depuis la boutique 100% commercial, d’environ 135 m². Le local est équipé d’un point d’eau et de sanitaires. Les trois niveaux sont reliées par un acensseur ceux qui facilitent les accès. Emplacement stratégique, idéal pour une activité de restauration rapide ou toute autre activité commerciale. Nombreuses enseignes dynamiques à proximité. Vous êtes à la recherche d’un local commercial, d’une boutique, de bureaux ou d’un restaurant ? WALLPARTNERS, dispose d’un portefeuille de plus de 1 200 biens commerciaux disponibles à la location. N’hésitez pas à nous contacter pour une recherche personnalisée.
75006 Paris - Saint-Placide
Prix net vendeur
Loyer HT
Pas de porte
Droit au bail
Button Text
Nouveauté
Vente - LIB
VL2-6200
Local Commercial | 33m² | Strasbourg - Saint-Denis
WALL PARTNERS vous propose un local commercial idéalement situé à proximité immédiate de , d’une surface totale d’environ 33 m², comprenant : * un rez-de-chaussée sur cour de 33 m², Le local est équipé d’un point d’eau et de sanitaires. Emplacement stratégique, idéal pour une activité de bureau ou toute autre activité commerciale. Nombreuses enseignes dynamiques à proximité. Vous êtes à la recherche d’un local commercial, d’une boutique, de bureaux ou d’un restaurant ? WALLPARTNERS, dispose d’un portefeuille de plus de 1 200 biens commerciaux disponibles à la location. N’hésitez pas à nous contacter pour une recherche personnalisée.
75010 Paris - Strasbourg - Saint-Denis
Prix net vendeur
Loyer HT
Pas de porte
Droit au bail
Button Text
Nouveauté
Vente - LIB
VL2-6199
Local Commercial | 81m² | Jaurès
WALL PARTNERS vous propose un local commercial idéalement situé à proximité immédiate de Jaurès, d’une surface totale d’environ 81 m², comprenant : * un rez-de-chaussée de 64 m², * un sous-sol, accessible directement depuis la boutique, d’environ 17 m². Le local est équipé d’un point d’eau et de sanitaires. Emplacement stratégique, idéal pour une activité de restauration rapide sans extraction, concession automobile ou toute autre activité commerciale. Nombreuses enseignes dynamiques à proximité. Vous êtes à la recherche d’un local commercial, d’une boutique, de bureaux ou d’un restaurant ? WALLPARTNERS, dispose d’un portefeuille de plus de 1 200 biens commerciaux disponibles à la location. N’hésitez pas à nous contacter pour une recherche personnalisée.
75010 Paris - Jaurès
Prix net vendeur
Loyer HT
Pas de porte
Droit au bail
Button Text
Nouveauté
Vente - LIB
VL2-6198
Local Commercial | 60m² | Charonne
WALL PARTNERS vous propose un local commercial idéalement situé à proximité immédiate de Charonne , d’une surface totale d’environ 70 m², comprenant : * un rez-de-chaussée de 35 m², * un sous-sol, accessible directement depuis la boutique, d’environ 25 m². * une cave en deuxième sous-sol d'environ 10 m2 Le local est équipé d’un point d’eau et de sanitaires. Emplacement stratégique, idéal pour une activité de type tertiaire ou toute autre activité commerciale. Nombreuses enseignes dynamiques à proximité. Vous êtes à la recherche d’un local commercial, d’une boutique, de bureaux ou d’un restaurant ? WALLPARTNERS, dispose d’un portefeuille de plus de 1 200 biens commerciaux disponibles à la location. N’hésitez pas à nous contacter pour une recherche personnalisée.
75011 Paris - Charonne
Prix net vendeur
Loyer HT
Pas de porte
Droit au bail
Button Text
Nouveauté
Location Pure -
VL2-6195
Local Commercial | 93m² | Saint-Ambroise
WALL PARTNERS vous propose un local commercial idéalement situé à proximité immédiate de Saint-Ambroise, d’une surface totale d’environ 93 m², comprenant : * un rez-de-chaussée de 80 m², * un sous-sol, accessible directement depuis la boutique, d’environ 13 m². Le local est équipé d’un point d’eau et de sanitaires. Emplacement stratégique, idéal pour toute activité commerciale sauf alimentaire. Nombreuses enseignes dynamiques à proximité. Vous êtes à la recherche d’un local commercial, d’une boutique, de bureaux ou d’un restaurant ? WALLPARTNERS, dispose d’un portefeuille de plus de 1 200 biens commerciaux disponibles à la location. N’hésitez pas à nous contacter pour une recherche personnalisée.
75011 Paris - Saint-Ambroise
Prix net vendeur
Loyer HT
Pas de porte
Droit au bail
Button Text
Nouveauté
Location Pure -
VL2-6192
Local Commercial | 272m² | Lisière Pereire
WALL PARTNERS vous propose un local commercial idéalement situé à proximité immédiate du tramway, d’une surface totale d’environ 272m2 de plain pied. Le local est équipé d’un point d’eau et de sanitaires. Emplacement stratégique, idéal pour toute activité commerciale avec une belle surface de vente. Nombreuses enseignes dynamiques à proximité. Vous êtes à la recherche d’un local commercial, d’une boutique, de bureaux ou d’un restaurant ? WALLPARTNERS, dispose d’un portefeuille de plus de 1 200 biens commerciaux disponibles à la location. N’hésitez pas à nous contacter pour une recherche personnalisée.
78100 Saint-Germain-en-Laye - Lisière Pereire
Prix net vendeur
Loyer HT
Pas de porte
Droit au bail
Button Text
Nouveauté
Vente - LIB
VL2-6190
Local Commercial | 130m² | Maubert-Mutualité
WALLPARTNERS vous propose un local commercial idéalement situé à proximité immédiate du métro Maubert-Mutualité (Ligne 10) , d’une surface totale d’environ 130m², comprenant : * un rez-de-chaussée de 107m², * un sous-sol, accessible directement depuis la boutique, d’environ 23m². Le local est équipé d’un point d’eau et de sanitaires. Emplacement stratégique, idéal pour une activité de restauration rapide sans extraction ou toute autre activité commerciale. Nombreuses enseignes dynamiques à proximité. Vous êtes à la recherche d’un local commercial, d’une boutique, de bureaux ou d’un restaurant ? WALLPARTNERS, dispose d’un portefeuille de plus de 1 200 biens commerciaux disponibles à la location. N’hésitez pas à nous contacter pour une recherche personnalisée.
75005 Paris - Maubert-Mutualité
Prix net vendeur
Loyer HT
Pas de porte
Droit au bail
Button Text
Nouveauté
Cession de bail -
VL2-6189
Local Commercial | 104m² | Maubert-Mutualité
WALLPARTNERS vous propose un local commercial idéalement situé à proximité immédiate du Métro Maubert-Mutualité (Ligne 10), d’une surface totale d’environ 104m², comprenant : * un rez-de-chaussée de 54m², * un premier étage d'environ 28m² * un sous-sol, accessible directement depuis la boutique, d’environ 22m². Le local possède actuellement une autorisation de terrasse extérieure pouvant accueillir une dizaine de personnes. Le local est équipé d’un point d’eau et de sanitaires. Emplacement stratégique, idéal pour une activité de restauration rapide sans extraction ou toute autre activité commerciale. Nombreuses enseignes dynamiques à proximité. Vous êtes à la recherche d’un local commercial, d’une boutique, de bureaux ou d’un restaurant ? WALLPARTNERS, dispose d’un portefeuille de plus de 1 200 biens commerciaux disponibles à la location. N’hésitez pas à nous contacter pour une recherche personnalisée.
75005 Paris - Maubert-Mutualité
Prix net vendeur
Loyer HT
Pas de porte
Droit au bail
Button Text
Nouveauté
Location Pure -
VL2-1924
Local Commercial | 244m² | Versailles Château
WALL PARTNERS vous propose un local commercial sur cour à proximité immédiate de la gare de Versailles, d'une surface totale d'environ 244 m2, comprenant un rez-de-chaussée d'environ 60m2, un premier étage d'environ 76m2 et un deuxième étage d'environ 76m2, et d'un troisième étage de 36m2, tous les niveaux communiquent entre eux, sanitaire et point d'eau, excellent emplacement pour de la restauration rapide, nombreuses enseignes à proximité. Les locaux sont complétés d'une cour pavée privative d'environ 260m2. Possibilité de pose d'un conduit d'extraction pour un restaurant.
78000 Versailles - Versailles Château
Prix net vendeur
Loyer HT
Pas de porte
Droit au bail
Button Text
Nouveauté
Cession de bail -
VL2-6188
Local Commercial | 145m² | Bérault
WALLPARTNERS vous propose un local commercial idéalement situé à proximité immédiate du métro Bérault, d’une surface totale d’environ 135 m², comprenant : * un rez-de-chaussée de 110 m², * un sous-sol, accessible directement depuis la boutique, d’environ 25 m². Le local est équipé d’un point d’eau et de sanitaires. Emplacement stratégique, idéal pour une activité de restauration avec extraction ou toute autre activité commerciale. Nombreuses enseignes dynamiques à proximité. Vous êtes à la recherche d’un local commercial, d’une boutique, de bureaux ou d’un restaurant ? WALLPARTNERS, dispose d’un portefeuille de plus de 1 200 biens commerciaux disponibles à la location. N’hésitez pas à nous contacter pour une recherche personnalisée.
94160 Saint-Mandé - Bérault
Prix net vendeur
Loyer HT
Pas de porte
Droit au bail
Button Text
Nouveauté
Vente - LIB
VL2-6179
Local Commercial | 181m² | Franconville
WALL PARTNERS vous propose un local commercial idéalement situé à proximité immédiate de Franconville, d’une surface totale d’environ 181m² de plain pied entièrement aménagé en centre dentaire, local en excellent état. Le local est équipé d’un point d’eau et de sanitaires. Emplacement stratégique, idéal pour une activité de médical, service ou toute autre activité commerciale. Nombreuses enseignes dynamiques à proximité. Vous êtes à la recherche d’un local commercial, d’une boutique, de bureaux ou d’un restaurant ? WALLPARTNERS, dispose d’un portefeuille de plus de 1 200 biens commerciaux disponibles à la location. N’hésitez pas à nous contacter pour une recherche personnalisée.
95110 Sannois - Franconville
Prix net vendeur
Loyer HT
Pas de porte
Droit au bail
Button Text
Nouveauté
Location Pure -
VL2-6177
Local Commercial | 350m² | Porte de Vincennes
WALL PARTNERS vous propose un local commercial unique et extrêmement rare, situé en rez-de-chaussée, au sein d’un immeuble entièrement rénové. Idéalement situé à proximité immédiate de la Porte de Vincennes et du métro Saint-Mandé. Local d’une surface totale d’environ 350m², ce plateau bénéficie de volumes remarquables avec 3,50 m de hauteur sous plafond ainsi qu'une luminosité éclatante, offrant un potentiel d’aménagement exceptionnel. Atouts majeurs : 4 accès indépendants sur rue ERP catégorie 5 Accessibilité PMR conforme Extraction 400, idéale pour restauration ou activités spécifiques Très forte visibilité et excellente accessibilité Boxes disponibles en complément Les locaux commerciaux de cette surface, en RDC, ERP, avec plusieurs accès rue et une telle hauteur sous plafond sont quasi inexistants sur le secteur. Ce bien s’adresse à des enseignes, activités tertiaires, médicales, culturelles ou commerciales recherchant une adresse aux portes de Paris. 📍 Disponibilité immédiate 📄 Plans et photos sur demande Vous êtes à la recherche d’un local commercial, d’une boutique, de bureaux ou d’un restaurant ? WALLPARTNERS, dispose d’un portefeuille de plus de 1 200 biens commerciaux disponibles à la location. N’hésitez pas à nous contacter pour une recherche personnalisée.
94300 Vincennes - Porte de Vincennes
Prix net vendeur
Loyer HT
Pas de porte
Droit au bail
Button Text
Nouveauté
Vente - LIB
VL2-6176
Local Commercial | 56m² | Alexandre Dumas
WALL PARTNERS vous propose un local commercial idéalement situé à proximité immédiate du métro Alexandre Dumas, d’une surface totale d’environ 56m², comprenant : * un rez-de-chaussée de 48m², * un sous-sol, accessible directement depuis la boutique, d’environ 8m². Le local est équipé d’un point d’eau et de sanitaires. Emplacement stratégique, idéal pour une activité de restauration rapide avec conduit d'extraction (350mm) ou toute autre activité commerciale. Nombreuses enseignes dynamiques à proximité. Vous êtes à la recherche d’un local commercial, d’une boutique, de bureaux ou d’un restaurant ? WALLPARTNERS, dispose d’un portefeuille de plus de 1 200 biens commerciaux disponibles à la location. N’hésitez pas à nous contacter pour une recherche personnalisée.
75011 Paris - Alexandre Dumas
Prix net vendeur
Loyer HT
Pas de porte
Droit au bail
Button Text
Nouveauté
Location Pure -
VL2-6175
Local Commercial | 94m² | Mairie du 8ᵉ arrondissement de Paris
WALL PARTNERS vous propose un local commercial idéalement situé à proximité immédiate du métro Villiers ainsi que de la Mairie du 8e arrondissement, d’une surface totale d’environ 94m², comprenant : * un rez-de-chaussée de 53m², * une mezzanine de 26m², * un sous-sol, accessible directement depuis la boutique, d’environ 15m². Le local est équipé d’un point d’eau et de sanitaires. Emplacement stratégique, idéal pour une activité de restauration avec petite cuisson (conduit 250) ou toute autre activité commerciale. Nombreuses enseignes dynamiques à proximité. Vous êtes à la recherche d’un local commercial, d’une boutique, de bureaux ou d’un restaurant ? WALLPARTNERS, dispose d’un portefeuille de plus de 1 200 biens commerciaux disponibles à la location. N’hésitez pas à nous contacter pour une recherche personnalisée.
75008 Paris - Mairie du 8ᵉ arrondissement de Paris
Prix net vendeur
Loyer HT
Pas de porte
Droit au bail
Button Text
Nouveauté
Location Pure -
VL2-5731
Local Commercial | 240m² | Gare Montparnasse
WALL PARTNERS vous propose un local commercial idéalement situé à proximité immédiate de la Gare Montparnasse, d’une surface totale d’environ 240m², comprenant : * un rez-de-chaussée de 130m², * un sous-sol, accessible directement depuis la boutique, entièrement exploitable d’environ 110m². Le local est équipé d’un point d’eau et de sanitaires PMR, de 3 montes charges, d'une chambre froide au sous-sol et de plusieurs offres intéressantes dans un local entièrement refait à neuf. Emplacement stratégique, idéal pour une activité de restauration comprenant un conduit d'extraction (500). Nombreuses enseignes dynamiques à proximité. Vous êtes à la recherche d’un local commercial, d’une boutique, de bureaux ou d’un restaurant ? WALLPARTNERS, dispose d’un portefeuille de plus de 1 200 biens commerciaux disponibles à la location. N’hésitez pas à nous contacter pour une recherche personnalisée.
75015 Paris - Gare Montparnasse
Prix net vendeur
Loyer HT
Pas de porte
Droit au bail
Button Text
Nouveauté
Location Pure -
VL2-6174
Local Commercial | 718m² | Barbès - Rochechouart
WALLPARTNERS vous propose un local commercial idéalement situé à proximité immédiate du métro Barbès-Rochechouart, d’une surface totale d’environ 718 m², comprenant * un rez-de-chaussée de 340m², * un étage commercial accessible directement depuis la boutique, d’environ 240m². * un deuxième étage à usage de réserve d'environ 53 m² * un sous-sol à usage de réserve, stockage, back office d'environ 85 m² Le local est équipé d’un point d’eau et de sanitaires. Emplacement stratégique, idéal pour une activité de restauration rapide ou une enseigne nationale Nombreuses enseignes dynamiques à proximité. Vous êtes à la recherche d’un local commercial, d’une boutique, de bureaux ou d’un restaurant ? WALLPARTNERS, dispose d’un portefeuille de plus de 1 200 biens commerciaux disponibles à la location. N’hésitez pas à nous contacter pour une recherche personnalisée.
75018 Paris - Barbès - Rochechouart
Prix net vendeur
Loyer HT
Pas de porte
Droit au bail
Button Text
Nouveauté
Vente - LIB
VL2-6166
Local Commercial | 430m² | Louis Blanc
WALLPARTNERS vous propose un local commercial sur cour libre idéalement situé à proximité immédiate du métro Louis Blanc , d’une surface totale d’environ 430 m², comprenant : * un rez-de-chaussée de 275 m², * une cave, accessible directement depuis la boutique, d’environ 20 m². * un étage de 155m2 environ. Le local est équipé d’un point d’eau et de sanitaires. Emplacement stratégique, idéal pour une activité de salle de sport ou toute autre activité commerciale. Nombreuses enseignes dynamiques à proximité. Vous êtes à la recherche d’un local commercial, d’une boutique, de bureaux ou d’un restaurant ? WALLPARTNERS, dispose d’un portefeuille de plus de 1 200 biens commerciaux disponibles à la location. N’hésitez pas à nous contacter pour une recherche personnalisée.
75010 Paris - Louis Blanc
Prix net vendeur
Loyer HT
Pas de porte
Droit au bail
Button Text
Nouveauté
Location Pure -
VL2-6164
Local Commercial | 100m² | Bourse
WALLPARTNERS vous propose un local commercial idéalement situé à proximité immédiate du métro Bourse, d’une surface totale d’environ 100 m² en rez-de-chaussée. Le local est équipé d’un point d’eau et de sanitaires. Emplacement stratégique, idéal pour une activité de galerie d'art, pilate, agence immobilière, showroom, ou toute autre activité commerciale. Nombreuses enseignes dynamiques à proximité. Vous êtes à la recherche d’un local commercial, d’une boutique, de bureaux ou d’un restaurant ? WALLPARTNERS, dispose d’un portefeuille de plus de 1 200 biens commerciaux disponibles à la location. N’hésitez pas à nous contacter pour une recherche personnalisée.
75002 Paris - Bourse
Prix net vendeur
Loyer HT
Pas de porte
Droit au bail
Button Text
Nouveauté
Location Pure -
VL2-6163
Local Commercial | 95m² | Pont Cardinet
WALLPARTNERS vous propose un local commercial idéalement situé à proximité immédiate du métro Pont Cardinet, d’une surface totale d’environ 95m², comprenant : * un rez-de-chaussée de 85m², * un sous-sol, accessible directement depuis la boutique, d’environ 10m². Le local est équipé d’un point d’eau et de sanitaires. Emplacement stratégique, idéal pour une activité de restauration rapide sans extraction ou toute autre activité commerciale. Nombreuses enseignes dynamiques à proximité. Vous êtes à la recherche d’un local commercial, d’une boutique, de bureaux ou d’un restaurant ? WALLPARTNERS, dispose d’un portefeuille de plus de 1 200 biens commerciaux disponibles à la location. N’hésitez pas à nous contacter pour une recherche personnalisée.
75011 Paris - Pont Cardinet
Prix net vendeur
Loyer HT
Pas de porte
Droit au bail
Button Text
Prix net vendeur
Droit au bail
Loyer HT
Droit d'entrée

Contactez notre agence

Réf: VL2-5605

Appelez ce numéro pour joindre notre agence:

+33 1 84 79 73 73

Nos conseillers sont à votre écoute

Suivez-nous sur nos réseaux