Location Pure - Local Commercial 75006 Paris

Local Commercial | 218m² | Sèvres-Babylone

Restauration sans extraction
Restauration avec extraction
Murs libres
Murs occupés

Surface

Surface totale
218 m²
Surface RDC
86 m²
Surface Étage
72 m²
Surface Sous-sol
60 m²

Conditions financières

Prix
Loyer HT
Droit au bail
Charges
Prix au m²
Honoraires
Droit d'entrée

Description

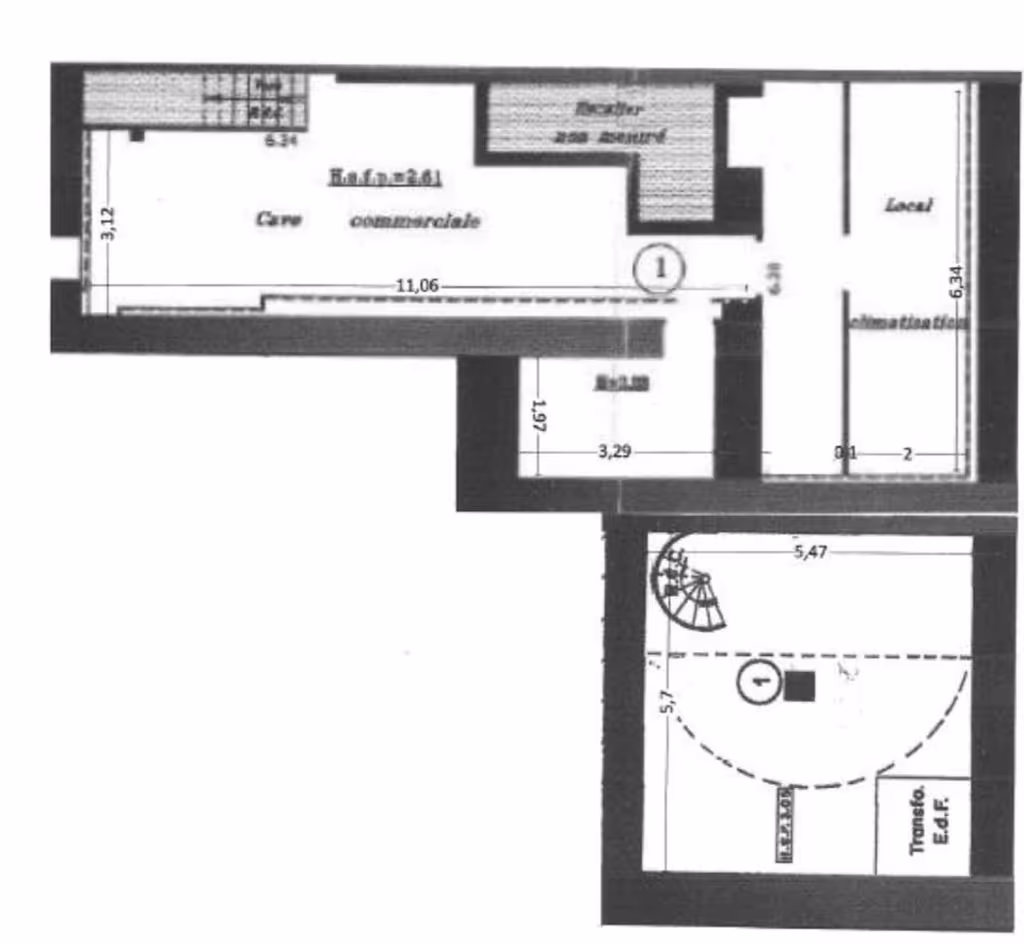
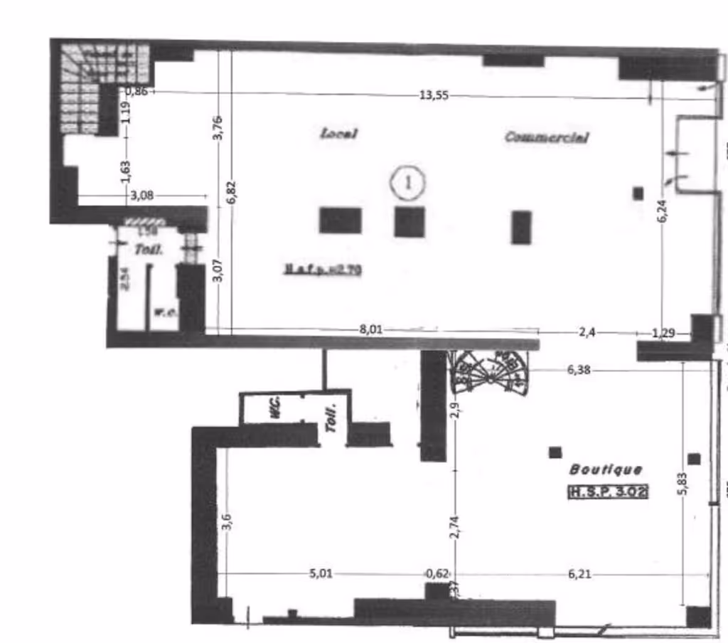
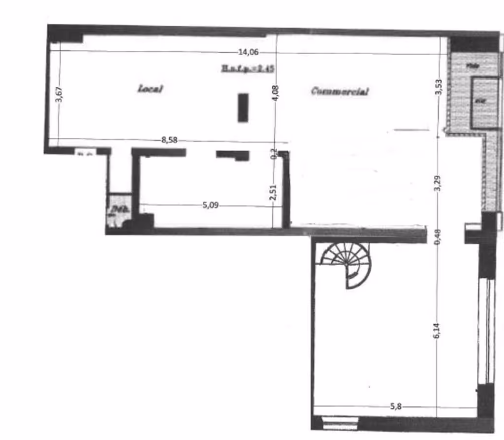
WALLPARTNERS vous propose une boutique à proximité immédiate du Bon Marché, d'une surface totale d'environ 218m2 comprenant un rez de chaussée d'environ 86 m2 d'un étage de 72 m2 et un sous-sol d'environ 60 m2 le tout est accessible par la boutique, sanitaire et point d'eau, excellent emplacement pour une activité de type tertiaire, cabinet dentaires, ammeublement, sport etc la restauration froide ou chaude n'et pas autorisé par le reglement de copropriété, ni une activité de type alimentaire, nombreuses enseignes à proximité.

Localisation du bien

VL2-719
Prix net vendeur
Loyer HT
Pas de porte
Droit au bail HT
Appelez-nous
Thank you! Your submission has been received!
Oops! Something went wrong while submitting the form.
Merci ! Votre demande est envoyée.
Une erreur est survenue.
Partager l'annonce

Vous ne trouvez pas ce que vous cherchez ?

Nos équipes sont là vous vous aider.

Appelez-nous

Biens similaires

Vous ne trouvez pas ce que recherchez, ces biens pourraient peut-être vous intéresser.

Location
Nouveauté
Location Pure -
VL2-6554
Local Commercial | 69m² | Filles du Calvaire
WALL PARTNERS vous propose un local commercial idéalement situé à proximité immédiate de la sortie du métro Saint-Sébastien Froissart, d’une surface totale d’environ 69 m², comprenant : * un rez-de-chaussée de 46 m², * un sous-sol, accessible directement depuis la boutique, d’environ 23 m². Le local est équipé d’un point d’eau et de sanitaires. Emplacement stratégique, idéal pour une activité de restauration rapide sans extraction ou toute autre activité commerciale. Nombreuses enseignes dynamiques à proximité. Vous êtes à la recherche d’un local commercial, d’une boutique, de bureaux ou d’un restaurant ? WALLPARTNERS, dispose d’un portefeuille de plus de 1 200 biens commerciaux disponibles à la location. N’hésitez pas à nous contacter pour une recherche personnalisée.
75011 Paris - Filles du Calvaire
Prix net vendeur
Loyer HT
Pas de porte
Droit au bail
Button Text
Nouveauté
Location Pure -
VL2-6552
Local Commercial | 359m² | Iéna
WALLPARTNERS vous propose un local commercial brut de béton avec possibilité d'extraction, idéalement situé à proximité immédiate du métro Iéna, d’une surface totale d’environ 359m², comprenant : * un rez-de-chaussée de 229m², * un sous-sol, accessible directement depuis la boutique, d’environ 130m². Le local est équipé d’un point d’eau et de sanitaires. Emplacement stratégique, idéal pour une activité de restauration ou toute autre activité commerciale. Nombreuses enseignes dynamiques à proximité. Vous êtes à la recherche d’un local commercial, d’une boutique, de bureaux ou d’un restaurant ? WALLPARTNERS, dispose d’un portefeuille de plus de 1 200 biens commerciaux disponibles à la location. N’hésitez pas à nous contacter pour une recherche personnalisée.
75116 Paris - Iéna
Prix net vendeur
Loyer HT
Pas de porte
Droit au bail
Button Text
Nouveauté
Location Pure -
VL2-6551
Local Commercial | 70m² | Porte de Versailles
WALLPARTNERS vous propose un local commercial idéalement situé à proximité immédiate de la Porte de Versailles, d’une surface totale d’environ 70 m², comprenant : * un rez-de-chaussée de 45 m², * un sous-sol, accessible directement depuis la boutique, d’environ 25 m². Le local est équipé d’un point d’eau et de sanitaires. Emplacement stratégique, idéal pour une activité de restauration rapide sans extraction ou toute autre activité commerciale. Nombreuses enseignes dynamiques à proximité. Vous êtes à la recherche d’un local commercial, d’une boutique, de bureaux ou d’un restaurant ? WALLPARTNERS, dispose d’un portefeuille de plus de 1 200 biens commerciaux disponibles à la location. N’hésitez pas à nous contacter pour une recherche personnalisée.
75015 Paris - Porte de Versailles
Prix net vendeur
Loyer HT
Pas de porte
Droit au bail
Button Text
Nouveauté
Location Pure -
VL2-6550
Local Commercial | 77m² | Canal Saint-Martin
WALLPARTNERS vous propose un local commercial idéalement situé à proximité immédiate du canal Saint-Martin, d’une surface totale d’environ 77 m², comprenant : * un rez-de-chaussée de 77 m², * une cave indépendante accessible par les parties communes de l'immeuble. Le local est équipé d’un point d’eau et de sanitaires. Emplacement stratégique, idéal pour une activité de restauration rapide sans extraction ou toute autre activité commerciale. Nombreuses enseignes dynamiques à proximité. Vous êtes à la recherche d’un local commercial, d’une boutique, de bureaux ou d’un restaurant ? WALLPARTNERS, dispose d’un portefeuille de plus de 1 200 biens commerciaux disponibles à la location. N’hésitez pas à nous contacter pour une recherche personnalisée.
75010 Paris - Canal Saint-Martin
Prix net vendeur
Loyer HT
Pas de porte
Droit au bail
Button Text
Nouveauté
Vente - LIB
VL2-6549
Local Commercial | 330m² | métro République
WALLPARTNERS vous propose un local commercial idéalement situé à proximité immédiate du Canal Saint-Martin & de la République, d’une surface totale d’environ 330 m², comprenant : * un rez-de-chaussée de 280 m², * un sous-sol, accessible directement depuis la boutique, d’environ 50 m². Le local est équipé d’un point d’eau et de sanitaires. Emplacement stratégique, idéal pour une salle de sport, un cabinet médical, activité de restauration rapide sans extraction ou toute autre activité commerciale. Nombreuses enseignes dynamiques à proximité. Vous êtes à la recherche d’un local commercial, d’une boutique, de bureaux ou d’un restaurant ? WALLPARTNERS, dispose d’un portefeuille de plus de 1 200 biens commerciaux disponibles à la location. N’hésitez pas à nous contacter pour une recherche personnalisée.
75010 Paris - métro République
Prix net vendeur
Loyer HT
Pas de porte
Droit au bail
Button Text
Nouveauté
Location Pure -
VL2-6548
Local Commercial | 250m² | Grands Boulevards
WALL PARTNERS vous propose un restaurant situé à proximité immédiate des Grands Boulevards, d’une surface totale d’enviro 250 m², comprenant : * un rez-de-chaussée de 150 m², * un sous-sol, accessible directement depuis la boutique, d’environ 100 m². Le local est équipé d’un point d’eau et de sanitaires. Extraction 400 mm. Emplacement stratégique, idéal pour une activité de restauration avec extraction ou toute autre activité commerciale. Nombreuses enseignes dynamiques à proximité. Vous êtes à la recherche d’un local commercial, d’une boutique, de bureaux ou d’un restaurant ? WALLPARTNERS, dispose d’un portefeuille de plus de 1 200 biens commerciaux disponibles à la location. N’hésitez pas à nous contacter pour une recherche personnalisée.
75009 Paris - Grands Boulevards
Prix net vendeur
Loyer HT
Pas de porte
Droit au bail
Button Text
Nouveauté
Location Pure -
VL2-6547
Local Commercial | 200m² | Mairie de Levallois
WALLPARTNERS vous propose un local commercial idéalement situé à proximité immédiate de la Mairie de Levallois, d’une surface totale d’environ 200 m², comprenant : * un rez-de-chaussée de 110 m², * un sous-sol, accessible directement depuis la boutique, d’environ 90 m². Le local est équipé d’un point d’eau et de sanitaires. Emplacement stratégique, idéal pour une activité de prêt à porter ou de restauration rapide sans extraction ou toute autre activité commerciale. Nombreuses enseignes dynamiques à proximité. Vous êtes à la recherche d’un local commercial, d’une boutique, de bureaux ou d’un restaurant ? WALLPARTNERS, dispose d’un portefeuille de plus de 1 200 biens commerciaux disponibles à la location. N’hésitez pas à nous contacter pour une recherche personnalisée.
92300 Levallois-Perret - Mairie de Levallois
Prix net vendeur
Loyer HT
Pas de porte
Droit au bail
Button Text
Nouveauté
Location Pure -
VL2-6516
Local Commercial | 210m² | Madeleine
WALLPARTNERS vous propose un local commercial idéalement situé à proximité immédiate du Boulevard Malsherbes , d’une surface totale d’environ 260 m², comprenant : * un rez-de-chaussée de 150 m², * un sous-sol, accessible directement depuis la boutique, d’environ 60 m². Le local est équipé d’un point d’eau et de sanitaires. Emplacement stratégique, idéal pour une activité de pilate ou toute autre activité commerciale. Nombreuses enseignes dynamiques à proximité. Vous êtes à la recherche d’un local commercial, d’une boutique, de bureaux ou d’un restaurant ? WALLPARTNERS, dispose d’un portefeuille de plus de 1 200 biens commerciaux disponibles à la location. N’hésitez pas à nous contacter pour une recherche personnalisée.
75008 Paris - Madeleine
Prix net vendeur
Loyer HT
Pas de porte
Droit au bail
Button Text
Nouveauté
Vente - OCC
VL2-6546
Local Commercial | 120m² | Champigny
WALLPARTNERS vous propose un local commercial a la vente idéalement situé à proximité immédiate du futur métro Grand Paris, d’une surface totale d’environ 120 m², comprenant : * un rez-de-chaussée de 80 m², * un sous-sol, accessible directement depuis la boutique, d’environ 30 m². Le local est équipé d’un point d’eau et de sanitaires. Emplacement stratégique, idéal pour une activité de restauration rapide avec extraction ou toute autre activité commerciale. Nombreuses enseignes dynamiques à proximité. Vous êtes à la recherche d’un local commercial, d’une boutique, de bureaux ou d’un restaurant ? WALLPARTNERS, dispose d’un portefeuille de plus de 1 200 biens commerciaux disponibles à la location. N’hésitez pas à nous contacter pour une recherche personnalisée.
94500 Champigny-sur-Marne - Champigny
Prix net vendeur
Loyer HT
Pas de porte
Droit au bail
Button Text
Nouveauté
Location Pure -
VL2-6544
Local Commercial | 72m² | Mairie du 10ème
WALLPARTNERS vous propose un local commercial idéalement situé à proximité immédiate de la mairie du 10ᵉ, d’une surface totale d’environ 72m², comprenant : * un rez-de-chaussée de 36m², * un sous-sol, accessible directement depuis la boutique, d’environ 36m². Le local est équipé d’un point d’eau et de sanitaires. Emplacement stratégique, idéal pour une activité de restauration rapide sans extraction ou toute autre activité commerciale. Nombreuses enseignes dynamiques à proximité. Vous êtes à la recherche d’un local commercial, d’une boutique, de bureaux ou d’un restaurant ? WALLPARTNERS, dispose d’un portefeuille de plus de 1 200 biens commerciaux disponibles à la location. N’hésitez pas à nous contacter pour une recherche personnalisée.
75010 Paris - Mairie du 10ème
Prix net vendeur
Loyer HT
Pas de porte
Droit au bail
Button Text
Nouveauté
Location Pure -
VL2-6543
Local Commercial | 32m² | Saint Sulpice
WALLPARTNERS vous propose un local commercial idéalement situé à proximité immédiate de l'église Saint Sulpice, d’une surface totale d’environ 32m² de Plain pied. Le local est équipé d’un point d’eau et de sanitaires. Emplacement stratégique, idéal pour une activité de restauration rapide sans extraction ou toute autre activité commerciale. Nombreuses enseignes dynamiques à proximité. Vous êtes à la recherche d’un local commercial, d’une boutique, de bureaux ou d’un restaurant ? WALLPARTNERS, dispose d’un portefeuille de plus de 1 200 biens commerciaux disponibles à la location. N’hésitez pas à nous contacter pour une recherche personnalisée.
75006 Paris - Saint Sulpice
Prix net vendeur
Loyer HT
Pas de porte
Droit au bail
Button Text
Nouveauté
Location Pure -
VL2-6541
Local Commercial | 17m² | Montparnasse-Bienvenue
WALLPARTNERS vous propose un local commercial idéalement situé à proximité immédiate de la Rue de Rennes, d’une surface totale d’environ 17m² uniquement en rez-de-chaussée. Le local est équipé d’un point d’eau et de sanitaires. Emplacement stratégique, idéal pour une activité de restauration rapide sans extraction ou toute autre activité commerciale. Nombreuses enseignes dynamiques à proximité. Vous êtes à la recherche d’un local commercial, d’une boutique, de bureaux ou d’un restaurant ? WALLPARTNERS, dispose d’un portefeuille de plus de 1 200 biens commerciaux disponibles à la location. N’hésitez pas à nous contacter pour une recherche personnalisée.
75006 Paris - Montparnasse-Bienvenue
Prix net vendeur
Loyer HT
Pas de porte
Droit au bail
Button Text
Nouveauté
Location Pure -
VL2-6540
Local Commercial | 504m² | Carreau du Temple
WALL PARTNERS vous propose un local commercial d’exception idéalement situé au cœur du Haut Marais, à proximité immédiate du Carreau du Temple et du Marché des Enfants-Rouges, dans un environnement dynamique (mode, médias, agences, conseil). Ce bien, accessible sur cour sécurisée, développe une surface totale d’environ 504 m², répartie comme suit : • Rez-de-chaussée : 335 m² • 1er étage : 169 m², accessible directement depuis le local Il se distingue par une configuration rare autour d’un vaste atrium central, offrant de beaux volumes et une excellente luminosité, ainsi qu’un aménagement flexible combinant espaces ouverts et bureaux cloisonnés. Caractéristiques : • Nombreux espaces modulables (open space et bureaux fermés) • Atrium central avec grand volume • Salles de réunion et espaces techniques (local IT, électrique, stockage) • Niveau administratif en surplomb de l’atrium • Climatisation (local technique dédié) • Fibre optique installée • Multiples points d’eau (rez-de-chaussée et étage) • Sanitaires complets, dont PMR au rez-de-chaussée Emplacement : • Quartier recherché et animé • Accès immédiat aux commerces, restaurants et services • Excellente desserte : Arts-et-Métiers (lignes 3 et 11), Temple (ligne 3), Rambuteau (ligne 11) Ce local, au fort caractère architectural typique du Marais, conviendra parfaitement à un siège social, showroom, bureaux, ou une activité de restauration sans extraction, ainsi qu’à toute autre activité commerciale. Vous êtes à la recherche d’un local commercial, d’une boutique ou de bureaux ? WALL PARTNERS dispose d’un portefeuille de plus de 1 200 biens commerciaux disponibles à la location. N’hésitez pas à nous contacter pour une recherche personnalisée.
75003 Paris - Carreau du Temple
Prix net vendeur
Loyer HT
Pas de porte
Droit au bail
Button Text
Nouveauté
Cession de bail -
VL2-6539
Local Commercial | 87m² | Boulogne Jean Jaurès
WALL PARTNERS vous propose un local commercial idéalement situé à proximité immédiate de Boulogne Jean Jaurès, d’une surface totale d’environ 77 m², comprenant : * un rez-de-chaussée de 65 m², * un sous-sol, accessible directement depuis la boutique, d’environ 12 m². Le local est équipé d’un point d’eau et de sanitaires. Emplacement stratégique, idéal pour une activité de restauration rapide sans extraction ou toute autre activité commerciale. Nombreuses enseignes dynamiques à proximité. Vous êtes à la recherche d’un local commercial, d’une boutique, de bureaux ou d’un restaurant ? WALLPARTNERS, dispose d’un portefeuille de plus de 1 200 biens commerciaux disponibles à la location. N’hésitez pas à nous contacter pour une recherche personnalisée.
92100 Boulogne-Billancourt - Boulogne Jean Jaurès
Prix net vendeur
Loyer HT
Pas de porte
Droit au bail
Button Text
Nouveauté
Cession de bail -
VL2-6538
Local Commercial | 125m² | La Varenne - Chennevières
WALL PARTNERS vous propose un local commercial idéalement situé à proximité immédiate de la gare La Varenne - Chennevières , d’une surface totale d’environ 125 m², comprenant : * un rez-de-chaussée de 125 m², Le local est équipé d’un point d’eau et de sanitaires. Emplacement stratégique, idéal pour une activité de restauration rapide sans extraction ou toute autre activité commerciale. Nombreuses enseignes dynamiques à proximité. Vous êtes à la recherche d’un local commercial, d’une boutique, de bureaux ou d’un restaurant ? WALLPARTNERS, dispose d’un portefeuille de plus de 1 200 biens commerciaux disponibles à la location. N’hésitez pas à nous contacter pour une recherche personnalisée.
94210 - La Varenne - Chennevières
Prix net vendeur
Loyer HT
Pas de porte
Droit au bail
Button Text
Nouveauté
Location Pure -
VL2-6537
Local Commercial | 110m² | Évry - Courcouronnes
WALL PARTNERS vous propose un local commercial idéalement situé à proximité immédiate de la gare d'Evry Courcouronnes, d’une surface totale d’environ 110 m², comprenant : * un rez-de-chaussée de 110 m², Le local est équipé d’un point d’eau et de sanitaires. Emplacement stratégique, idéal pour une activité de restauration rapide sans extraction ou toute autre activité commerciale. Nombreuses enseignes dynamiques à proximité. Vous êtes à la recherche d’un local commercial, d’une boutique, de bureaux ou d’un restaurant ? WALLPARTNERS, dispose d’un portefeuille de plus de 1 200 biens commerciaux disponibles à la location. N’hésitez pas à nous contacter pour une recherche personnalisée.
91000 Évry-Courcouronnes - Évry - Courcouronnes
Prix net vendeur
Loyer HT
Pas de porte
Droit au bail
Button Text
Nouveauté
Cession de bail -
VL2-6534
Local Commercial | 120m² | Saint-Michel Notre-Dame
WALL PARTNERS vous propose un local commercial idéalement situé à proximité immédiate de Saint-Michel Notre-Dame, d’une surface totale d’environ 120 m², comprenant : * un rez-de-chaussée de 60 m², * un sous-sol, accessible directement depuis la boutique, d’environ 60 m². Le local est équipé d’un point d’eau et de sanitaires. Emplacement stratégique, idéal pour une activité de restauration chaude avec extraction 400 mm présent dans les locaux ou toute autre activité commerciale. Nombreuses enseignes dynamiques à proximité. Vous êtes à la recherche d’un local commercial, d’une boutique, de bureaux ou d’un restaurant ? WALLPARTNERS, dispose d’un portefeuille de plus de 1 200 biens commerciaux disponibles à la location. N’hésitez pas à nous contacter pour une recherche personnalisée.
75005 Paris - Saint-Michel Notre-Dame
Prix net vendeur
Loyer HT
Pas de porte
Droit au bail
Button Text
Nouveauté
Location Pure -
VL2-6533
Local Commercial | 130m² | Prince-Marmottan
WALL PARTNERS vous propose un local commercial idéalement situé Avenue Jean Baptiste Clément, d’une surface totale d’environ 130 m², comprenant : * un rez-de-chaussée de 65 m², * un sous-sol, accessible directement depuis la boutique, d’environ 65 m². Le local est équipé d’un point d’eau et de sanitaires. Emplacement stratégique, idéal pour une activité de restauration rapide sans extraction ou toute autre activité commerciale. Flux piéton important, N°1 alimentaire, Rue commerçante, Zone résidentielle. À proximité : Gruppomimo, Androuet, Boulangerie LEKLA, Franck Provost, Boulangerie, Boucher, Traiteur, Primeur, Barnes, Godot&Fils, Conticini.. Vous êtes à la recherche d’un local commercial, d’une boutique, de bureaux ou d’un restaurant ? WALLPARTNERS, dispose d’un portefeuille de plus de 1 200 biens commerciaux disponibles à la location. N’hésitez pas à nous contacter pour une recherche personnalisée.
92100 Boulogne-Billancourt - Prince-Marmottan
Prix net vendeur
Loyer HT
Pas de porte
Droit au bail
Button Text
Nouveauté
Location -
VL2-6532
Local Commercial | 55m² | Berault
WALLPARTNERS vous propose un local commercial idéalement situé à proximité immédiate de Berault , d’une surface totale d’environ 55 m², comprenant : * un rez-de-chaussée de 35 m², * un sous-sol, accessible via les parties communes, d’environ 25 m². Le local est équipé d’un point d’eau et de sanitaires. Emplacement stratégique, idéal pour une activité de restauration rapide sans extraction ou toute autre activité commerciale. Nombreuses enseignes dynamiques à proximité. Vous êtes à la recherche d’un local commercial, d’une boutique, de bureaux ou d’un restaurant ? WALLPARTNERS, dispose d’un portefeuille de plus de 1 200 biens commerciaux disponibles à la location. N’hésitez pas à nous contacter pour une recherche personnalisée.
94300 Vincennes - Berault
Prix net vendeur
Loyer HT
Pas de porte
Droit au bail
Button Text
Nouveauté
Vente - LIB
VL2-6531
Local Commercial | 615m² | Porte de Saint Cloud
WALLPARTNERS vous propose un local commercial à la vente idéalement situé à proximité immédiate du métro Porte de Saint Cloud, d’une surface totale d’environ 615m en rez-de-chausséee Le local est équipé d’un point d’eau et de sanitaires. Emplacement stratégique Nombreuses enseignes dynamiques à proximité. Vous êtes à la recherche d’un local commercial, d’une boutique, de bureaux ou d’un restaurant ? WALLPARTNERS, dispose d’un portefeuille de plus de 1 200 biens commerciaux disponibles à la location. N’hésitez pas à nous contacter pour une recherche personnalisée.
75016 Paris - Porte de Saint Cloud
Prix net vendeur
Loyer HT
Pas de porte
Droit au bail
Button Text
Nouveauté
Location Pure -
VL2-6530
Local Commercial | 420m² | Fort de Champigny
Au cœur de Chevenevieres, sur un axe passant et stratégique, en emplacement premium face à Renault, ce local commercial impose sa présence avec puissance et évidence. D’une surface totale d’environ 420 m², il se compose : • 250 m² en rez-de-chaussée – un plateau généreux, fluide, prêt à accueillir tous concepts ambitieux • 120 m² en sous-sol (R-1) • 50 m² en sous-sol profond (R-2) Le tout est sublimé par un linéaire exceptionnel de 32 mètres, offrant une visibilité rare — un véritable écrin pour une enseigne en quête d’impact. Caractéristiques clés : • Extraction puissante de 400 mm (idéal restauration avec cuisson) • 3 places de parking — un atout précieux dans le secteur • Flux constant, environnement commercial actif • Adresse stratégique, en vis-à-vis d’un acteur majeur automobile
94430 Chennevières-sur-Marne - Fort de Champigny
Prix net vendeur
Loyer HT
Pas de porte
Droit au bail
Button Text
Nouveauté
Location Pure -
VL2-6529
Local Commercial | 260m² | Les Beaumonts
WALLPARTNERS vous propose un local commercial idéalement situé à proximité du Parc des Beaumonts, d’une surface totale d’environ 260m². Le local est équipé d’un point d’eau et de sanitaires. Emplacement stratégique, idéal pour une activité de bureautique ou toute autre activité commerciale. Nombreuses enseignes dynamiques à proximité. Vous êtes à la recherche d’un local commercial, d’une boutique, de bureaux ou d’un restaurant ? WALLPARTNERS, dispose d’un portefeuille de plus de 1 200 biens commerciaux disponibles à la location. N’hésitez pas à nous contacter pour une recherche personnalisée.
93100 Montreuil - Les Beaumonts
Prix net vendeur
Loyer HT
Pas de porte
Droit au bail
Button Text
Nouveauté
Vente - LIB
VL2-6523
Local Commercial | 68m² | Poissonière
WALLPARTNERS vous propose un local commercial idéalement situé à proximité immédiate de la Rue des Martyrs, d’une surface totale d’environ 68m² de plain pied. Le local est équipé d’un point d’eau. Emplacement stratégique, idéal pour une activité de restauration rapide sans extraction ou toute autre activité commerciale. Nombreuses enseignes dynamiques à proximité. Vous êtes à la recherche d’un local commercial, d’une boutique, de bureaux ou d’un restaurant ? WALLPARTNERS, dispose d’un portefeuille de plus de 1 200 biens commerciaux disponibles à la Vente/location. N’hésitez pas à nous contacter pour une recherche personnalisée.
75009 Paris - Poissonière
Prix net vendeur
Loyer HT
Pas de porte
Droit au bail
Button Text
Nouveauté
Location Pure -
VL2-6527
Local Commercial | 156m² | Centre ville Gallieni
En plein cœur de Rueil-Malmaison, au sein d’un environnement urbain vivant et structuré, découvrez ce local commercial de 156 m² entièrement situé en rez-de-chaussée. Pensé pour accueillir des activités à fort impact social, ce bien est exclusivement dédié aux usages de type CINASPIC : salle de sport, crèche, école ou cabinet médical. Une orientation claire, presque engagée, au service du bien-être, de l’éducation et de la santé. Le volume offre une belle lisibilité des espaces, facilitant l’aménagement selon vos besoins opérationnels. L’implantation en centre-ville garantit une accessibilité optimale, portée par un flux résidentiel dense et une vie de quartier active. Un emplacement cohérent, une destination maîtrisée, et une opportunité rare pour développer une activité utile, durable et ancrée dans son territoire.
92500 Rueil-Malmaison - Centre ville Gallieni
Prix net vendeur
Loyer HT
Pas de porte
Droit au bail
Button Text
Nouveauté
Cession de bail -
VL2-6526
Local Commercial | 1200m² | Zone industrielle de St-Cyr l'École
WALLPARTNERS vous propose un local commercial idéalement situé à proximité immédiate du centre ville de St-cyr , d’une surface totale d’environ 1200 m², comprenant : * un rez-de-chaussée de 1200m², 40 places de Parkings. Le local est équipé d’un point d’eau et de sanitaires. Emplacement stratégique, idéal pour une activité de restauration rapide avec extraction ou toute autre activité commerciale. Nombreuses enseignes dynamiques à proximité. Vous êtes à la recherche d’un local commercial, d’une boutique, de bureaux ou d’un restaurant ? WALLPARTNERS, dispose d’un portefeuille de plus de 1 200 biens commerciaux disponibles à la location. N’hésitez pas à nous contacter pour une recherche personnalisée.
78210 Saint-Cyr-l'École - Zone industrielle de St-Cyr l'École
Prix net vendeur
Loyer HT
Pas de porte
Droit au bail
Button Text
Nouveauté
Location Pure -
VL2-6525
Local Professionnel | 120m² | Convention
À deux pas du métro Convention, rue Dombasle, ces bureaux de 120 m² en sous-sol dévoilent un espace entièrement repensé, où chaque mètre carré a été optimisé avec précision. Rénovés avec exigence, ils offrent un cadre de travail fonctionnel, moderne et immédiatement exploitable. L’environnement est dynamique, porté par un flux constant, notamment grâce à la proximité immédiate de McDonald’s et des commerces de quartier. Un actif idéal pour une activité tertiaire, un showroom confidentiel ou des bureaux opérationnels à l’abri de l’agitation, tout en restant parfaitement connectés. Un produit rare sur ce secteur, pensé pour allier efficacité, discrétion et accessibilité.
75015 Paris - Convention
Prix net vendeur
Loyer HT
Pas de porte
Droit au bail
Button Text
Nouveauté
Cession de bail -
VL2-6522
Local Commercial | 64m² | Anatole France
WALLPARTNERS vous propose un local commercial idéalement situé à proximité immédiate du métro Anatole France , d’une surface totale d’environ 65m² en rez-de-chaussée. Le local est équipé d’un point d’eau et de sanitaires. Emplacement stratégique, idéal pour une activité de restauration rapide sans extraction ou toute autre activité commerciale. Nombreuses enseignes dynamiques à proximité. Vous êtes à la recherche d’un local commercial, d’une boutique, de bureaux ou d’un restaurant ? WALLPARTNERS, dispose d’un portefeuille de plus de 1 200 biens commerciaux disponibles à la location. N’hésitez pas à nous contacter pour une recherche personnalisée.
92300 Levallois-Perret - Anatole France
Prix net vendeur
Loyer HT
Pas de porte
Droit au bail
Button Text
Nouveauté
Location Pure -
VL2-6521
Local Commercial | 85m² | Place Mexico
WALL PARTNERS vous propose un local commercial à la vente idéalement situé à proximité immédiate de la Place Mexico ainsi que de l'avenue Victor Hugo, d’une surface totale d’environ 85m², comprenant : * un rez-de-chaussée de 65m², * un sous-sol, accessible directement depuis la boutique, d’environ 20m². Le local est équipé d’un point d’eau et de sanitaires. Emplacement stratégique, idéal pour un utilisateur ou toute autre activité commerciale. Nombreuses enseignes dynamiques à proximité. Vous êtes à la recherche d’un local commercial, d’une boutique, de bureaux ou d’un restaurant ? WALLPARTNERS, dispose d’un portefeuille de plus de 1 200 biens commerciaux disponibles à la location. N’hésitez pas à nous contacter pour une recherche personnalisée.
75016 Paris - Place Mexico
Prix net vendeur
Loyer HT
Pas de porte
Droit au bail
Button Text
Nouveauté
Location -
VL2-6520
Local Commercial | 128m² | Prefecture
WALLPARTNERS vous propose un local commercial idéalement situé à proximité immédiate de la préfecture, d’une surface totale d’environ 128m², comprenant : * un rez-de-chaussée de 98m², * un sous-sol, accessible directement depuis la boutique, d’environ 30m². * possibilité de terrasse d'environ 60m2 Le local est équipé d’un point d’eau et de sanitaires. Emplacement stratégique, idéal pour une activité de restauration rapide sans extraction ou toute autre activité commerciale. Nombreuses enseignes dynamiques à proximité. Vous êtes à la recherche d’un local commercial, d’une boutique, de bureaux ou d’un restaurant ? WALLPARTNERS, dispose d’un portefeuille de plus de 1 200 biens commerciaux disponibles à la location. N’hésitez pas à nous contacter pour une recherche personnalisée.
13006 Marseille - Prefecture
Prix net vendeur
Loyer HT
Pas de porte
Droit au bail
Button Text
Nouveauté
Location Pure -
VL2-6518
Local Commercial | 106m² | Invalides
WALL PARTNERS vous propose un local commercial entièrement refait a neuf idéalement situé rue de Bourgogne, d’une surface totale d’environ 106 m², comprenant : * un rez-de-chaussée de 56 m², * un sous-sol, accessible directement depuis la boutique, d’environ 50 m². Le local est équipé d’un point d’eau et de sanitaires. Emplacement stratégique, idéal pour une activité de service, cabinet d'architecte, studio de pilâtes ou toute autre activité commerciale. Nombreuses enseignes dynamiques à proximité. Vous êtes à la recherche d’un local commercial, d’une boutique, de bureaux ou d’un restaurant ? WALLPARTNERS, dispose d’un portefeuille de plus de 1 200 biens commerciaux disponibles à la location. N’hésitez pas à nous contacter pour une recherche personnalisée.
75007 Paris - Invalides
Prix net vendeur
Loyer HT
Pas de porte
Droit au bail
Button Text
Nouveauté
Location Pure -
VL2-6517
Local Commercial | 68m² | Poissonière
WALLPARTNERS vous propose un local commercial idéalement situé à proximité immédiate de la Rue des Martyrs, d’une surface totale d’environ 68m² de plain pied Le local est équipé d’un point d’eau. Emplacement stratégique, idéal pour une activité de restauration rapide sans extraction ou toute autre activité commerciale. Nombreuses enseignes dynamiques à proximité. Vous êtes à la recherche d’un local commercial, d’une boutique, de bureaux ou d’un restaurant ? WALLPARTNERS, dispose d’un portefeuille de plus de 1 200 biens commerciaux disponibles à la location. N’hésitez pas à nous contacter pour une recherche personnalisée.
75009 Paris - Poissonière
Prix net vendeur
Loyer HT
Pas de porte
Droit au bail
Button Text
Nouveauté
Location Pure -
VL2-3289
Local Commercial | 90m² | Place Gambetta
WALL PARTNERS vous propose un local commercial avec extraction de 400 (RESTAURANT) à proximité immédiate de la Place Gambetta dans le 20ème arrondissement de Paris. La surface totale est d'environ 90 m2, comprenant un rez-de-chaussée d'environ 70 m2 et un sous-sol d'environ 20 m2 accessible depuis la boutique. Sanitaires et d'un point d'eau. Excellent emplacement pour de la restauration, avec de nombreuses enseignes à proximité.
75020 Paris - Place Gambetta
Prix net vendeur
Loyer HT
Pas de porte
Droit au bail
Button Text
Nouveauté
Location Pure -
VL2-6513
Local Commercial | 98m² | Breguet - Sabin
WALLPARTNERS vous propose un local commercial idéalement situé à proximité immédiate de la Place de la Bastille, d’une surface totale d’environ 98m², comprenant : * un rez-de-chaussée de 48m², * un sous-sol, accessible directement depuis la boutique, d’environ 50m². Le local est équipé d’un point d’eau et de sanitaires. Emplacement stratégique, idéal pour une activité de restauration rapide sans extraction ou toute autre activité commerciale. Nombreuses enseignes dynamiques à proximité. Vous êtes à la recherche d’un local commercial, d’une boutique, de bureaux ou d’un restaurant ? WALLPARTNERS, dispose d’un portefeuille de plus de 1 200 biens commerciaux disponibles à la location. N’hésitez pas à nous contacter pour une recherche personnalisée.
75011 Paris - Breguet - Sabin
Prix net vendeur
Loyer HT
Pas de porte
Droit au bail
Button Text
Nouveauté
Location Pure -
VL2-6510
Local Commercial | 170m² | Mairie de Poissy
WALL PARTNERS vous propose un local commercial idéalement situé à proximité immédiate de l'Hôtel de Ville, d’une surface totale d’environ 170m² de plain pied. Le local est équipé d’un point d’eau et de sanitaires. Emplacement stratégique, idéal pour une activité de pilates, restauration rapide ou toute autre activité commerciale. Nombreuses enseignes dynamiques à proximité. Vous êtes à la recherche d’un local commercial, d’une boutique, de bureaux ou d’un restaurant ? WALLPARTNERS, dispose d’un portefeuille de plus de 1 200 biens commerciaux disponibles à la location. N’hésitez pas à nous contacter pour une recherche personnalisée.
78300 Poissy - Mairie de Poissy
Prix net vendeur
Loyer HT
Pas de porte
Droit au bail
Button Text
Nouveauté
Location Pure -
VL2-6509
Local Commercial | 1296m² | COMPIEGNE
WALLPARTNERS vous propose un local commercial idéalement situé à proximité immédiate de , d’une surface totale d’environ 1296 m² de plain pied Possibilité d'installer une extraction Immeuble indépendant. 35 places de parking Le local est équipé d’un point d’eau et de sanitaires. Emplacement stratégique, idéal pour une activité de restauration, bureaux ou toute autre activité commerciale. Nombreuses enseignes dynamiques à proximité. Vous êtes à la recherche d’un local commercial, d’une boutique, de bureaux ou d’un restaurant ? WALLPARTNERS, dispose d’un portefeuille de plus de 1 200 biens commerciaux disponibles à la location. N’hésitez pas à nous contacter pour une recherche personnalisée.
60200 Compiègne - COMPIEGNE
Prix net vendeur
Loyer HT
Pas de porte
Droit au bail
Button Text
Nouveauté
Location Pure -
VL2-6506
Local Commercial | 155m² | Maréchal Leclerc
WALLPARTNERS vous propose un local commercial idéalement situé à proximité immédiate de Jointville-le-pont , d’une surface totale d’environ 155 m², comprenant : * un rez-de-chaussée de 120 m², * un sous-sol, accessible directement depuis la boutique, d’environ 55 m². Le local est équipée d'une hotte à charbon. Le local est équipé d’un point d’eau et de sanitaires. Emplacement stratégique, idéal pour une activité de restauration rapide sans extraction ou toute autre activité commerciale. Nombreuses enseignes dynamiques à proximité. Vous êtes à la recherche d’un local commercial, d’une boutique, de bureaux ou d’un restaurant ? WALLPARTNERS, dispose d’un portefeuille de plus de 1 200 biens commerciaux disponibles à la location. N’hésitez pas à nous contacter pour une recherche personnalisée.
94410 Saint-Maurice - Maréchal Leclerc
Prix net vendeur
Loyer HT
Pas de porte
Droit au bail
Button Text
Nouveauté
Location Pure -
VL2-6505
Local Commercial | 170m² | Réaumur-Sébastopol
WALLPARTNERS vous propose un local commercial idéalement situé à proximité immédiate du métro Réaumur-Sébastopol, d’une surface totale d’environ 170m², comprenant : * Un rez-de-chaussée de 60m², * Deux sous-sols, accessibles directement depuis la boutique, d’environ 55m² chacun. Le local est équipé d’un point d’eau et de sanitaires. Emplacement stratégique, idéal pour une activité de restauration rapide sans extraction ou toute autre activité commerciale. Nombreuses enseignes dynamiques à proximité. Vous êtes à la recherche d’un local commercial, d’une boutique, de bureaux ou d’un restaurant ? WALLPARTNERS, dispose d’un portefeuille de plus de 1 200 biens commerciaux disponibles à la location. N’hésitez pas à nous contacter pour une recherche personnalisée.
75002 Paris - Réaumur-Sébastopol
Prix net vendeur
Loyer HT
Pas de porte
Droit au bail
Button Text
Nouveauté
Location Pure -
VL2-6451
Local Commercial | 122m² | Canal-St-Martin
WALLPARTNERS vous propose un local commercial idéalement situé à proximité immédiate de République, d’une surface totale d’environ 122 m², comprenant : * un rez-de-chaussée de 82 m², * un sous-sol, accessible directement depuis la boutique, d’environ 30 m². Le local est équipé d’un point d’eau et de sanitaires. Emplacement stratégique, idéal pour une activité de restauration rapide sans extraction, de vente au détaille ou toute autre activité commerciale. Nombreuses enseignes dynamiques à proximité. Vous êtes à la recherche d’un local commercial, d’une boutique, de bureaux ou d’un restaurant ? WALLPARTNERS, dispose d’un portefeuille de plus de 1 200 biens commerciaux disponibles à la location. N’hésitez pas à nous contacter pour une recherche personnalisée.
75010 Paris - Canal-St-Martin
Prix net vendeur
Loyer HT
Pas de porte
Droit au bail
Button Text
Nouveauté
Location Pure -
VL2-6504
Local Commercial | 2046m² | Zone de la Croix Blanche
WALL PARTNERS vous propose un local commercial idéalement situé dans l'une des plus grande zone commerciale d'Ile-de-France, offrant une superficie d'environ 2.046m² de plain pied. Le local est équipé : D’une double porte vitrée avec vitrine en façade, D’un rideau métallique assurant la sécurité du local, D’une porte sectionnelle à l’arrière (dimensions 4 x 3 m) facilitant les livraisons et accès professionnels, Ce local conviendrait parfaitement à une activité nécessitant une grande surface d’accueil ou de stockage, avec un accès facilité pour les marchandises. Possibilité d'installer un conduit de cheminée. Une HSP de 6.80m Nombreuses enseignes dynamiques à proximité. Vous êtes à la recherche d’un local commercial, d’une boutique, de bureaux ou d’un restaurant ? WALLPARTNERS, dispose d’un portefeuille de plus de 1 200 biens commerciaux disponibles à la location. N’hésitez pas à nous contacter pour une recherche personnalisée.
91700 Sainte-Geneviève-des-Bois - Zone de la Croix Blanche
Prix net vendeur
Loyer HT
Pas de porte
Droit au bail
Button Text
Nouveauté
Location Pure -
VL2-6503
Local Commercial | 200m² | Paradis
WALLPARTNERS vous propose un local commercial idéalement situé à proximité immédiate de la Gare de l'Est , d’une surface totale d’environ 200 m², comprenant : * un rez-de-chaussée de 60 m², * un sous-sol commercial, accessible directement depuis la boutique, d’environ 140 m². Entièrement refait à neuf. Le local est équipé d’un point d’eau et de sanitaires. Emplacement stratégique, idéal pour une activité de sport ou toute autre activité commerciale. Nombreuses enseignes dynamiques à proximité. Vous êtes à la recherche d’un local commercial, d’une boutique, de bureaux ou d’un restaurant ? WALLPARTNERS, dispose d’un portefeuille de plus de 1 200 biens commerciaux disponibles à la location. N’hésitez pas à nous contacter pour une recherche personnalisée.
75010 Paris - Paradis
Prix net vendeur
Loyer HT
Pas de porte
Droit au bail
Button Text
Nouveauté
Location Pure -
VL2-6501
Local Commercial | 66m² | Saint-Germain
WALL PARTNERS vous propose un local commercial idéalement situé à proximité immédiate de la rue des saint-pères, de la rue Bonaparte, et de la rue du Bac , d’une surface totale d’environ 66 m², comprenant : * un rez-de-chaussée de 36 m², * un sous-sol, accessible directement depuis la boutique, d’environ 30 m². Le local est équipé d’un point d’eau et de sanitaires. Emplacement stratégique, idéal pour une activité de décoration d'interieur, architectes, services, bijouterie, galerie d'arts, ou toute autre activité commerciale. Nombreuses enseignes dynamiques à proximité. Vous êtes à la recherche d’un local commercial, d’une boutique, de bureaux ou d’un restaurant ? WALLPARTNERS, dispose d’un portefeuille de plus de 1 200 biens commerciaux disponibles à la location. N’hésitez pas à nous contacter pour une recherche personnalisée.
75007 Paris - Saint-Germain
Prix net vendeur
Loyer HT
Pas de porte
Droit au bail
Button Text
Nouveauté
Location Pure -
VL2-6500
Local Commercial | 95m² | Mairie de Clichy
WALLPARTNERS vous propose un local commercial idéalement situé à proximité immédiate de la Mairie de Clichy, d’une surface totale d’environ 95 m², comprenant : * un rez-de-chaussée de 53 m², * un étage, accessible directement depuis la boutique, d’environ 42 m². * une cave indépendante au sous-sol. Le local est équipé d’un point d’eau et de sanitaires. Emplacement stratégique, idéal pour une activité de restauration rapide sans extraction ou toute autre activité commerciale. Nombreuses enseignes dynamiques à proximité. Vous êtes à la recherche d’un local commercial, d’une boutique, de bureaux ou d’un restaurant ? WALLPARTNERS, dispose d’un portefeuille de plus de 1 200 biens commerciaux disponibles à la location. N’hésitez pas à nous contacter pour une recherche personnalisée.
92110 Clichy - Mairie de Clichy
Prix net vendeur
Loyer HT
Pas de porte
Droit au bail
Button Text
Nouveauté
Location Pure -
VL2-6496
Local Commercial | 484m² | Rue Saint-Dominique
WALLPARTNERS vous propose un local commercial idéalement situé à proximité immédiate de la rue Saint-Dominique , d’une surface totale d’environ 484 m², le tout en rez-de-chaussée, local brut de béton, avec fluide en attente, Emplacement stratégique, idéal pour une activité, médicale, de loisir, alimentaire. Nombreuses enseignes dynamiques à proximité. Vous êtes à la recherche d’un local commercial, d’une boutique, de bureaux ou d’un restaurant ? WALLPARTNERS, dispose d’un portefeuille de plus de 1 200 biens commerciaux disponibles à la location. N’hésitez pas à nous contacter pour une recherche personnalisée.
75007 Paris - Rue Saint-Dominique
Prix net vendeur
Loyer HT
Pas de porte
Droit au bail
Button Text
Nouveauté
Location Pure -
VL2-6499
Local Commercial | 125m² | Place de la Bastille
WALLPARTNERS vous propose un local commercial idéalement situé face au métro Bastille , d’une surface totale d’environ 125m², comprenant : * un rez-de-chaussée de 67m², * un sous-sol, accessible directement depuis la boutique, d’environ 58m². Le local est équipé d’un point d’eau et de sanitaires. Emplacement stratégique, idéal pour une activité de restauration rapide sans extraction ou toute autre activité commerciale. Nombreuses enseignes dynamiques à proximité. Vous êtes à la recherche d’un local commercial, d’une boutique, de bureaux ou d’un restaurant ? WALLPARTNERS, dispose d’un portefeuille de plus de 1 200 biens commerciaux disponibles à la location. N’hésitez pas à nous contacter pour une recherche personnalisée.
75004 Paris - Place de la Bastille
Prix net vendeur
Loyer HT
Pas de porte
Droit au bail
Button Text
Nouveauté
Location Pure -
VL2-6498
Local Commercial | 66m² | Victor Hugo
WALLPARTNERS vous propose un local commercial idéalement situé à proximité immédiate du métro Victor Hugo , d’une surface totale d’environ 66m², comprenant : * un rez-de-chaussée de 47m², * un sous-sol, accessible directement depuis la boutique, d’environ 19m². Le local est équipé d’un point d’eau et de sanitaires. Emplacement stratégique, idéal pour une activité de restauration rapide sans extraction ou toute autre activité commerciale. Nombreuses enseignes dynamiques à proximité. Vous êtes à la recherche d’un local commercial, d’une boutique, de bureaux ou d’un restaurant ? WALLPARTNERS, dispose d’un portefeuille de plus de 1 200 biens commerciaux disponibles à la location. N’hésitez pas à nous contacter pour une recherche personnalisée.
75116 Paris - Victor Hugo
Prix net vendeur
Loyer HT
Pas de porte
Droit au bail
Button Text
Nouveauté
Vente - LIB
VL2-6497
Local Commercial | 35m² | Champerret
WALLPARTNERS vous propose un local commercial idéalement situé à proximité immédiate de la Porte de Champerret, d’une surface totale d’environ 35m² de plain-pied. Le local est équipé d’un point d’eau et de sanitaires. Emplacement stratégique, idéal pour une activité de restauration rapide sans extraction ou toute autre activité commerciale. Nombreuses enseignes dynamiques à proximité. Vous êtes à la recherche d’un local commercial, d’une boutique, de bureaux ou d’un restaurant ? WALLPARTNERS, dispose d’un portefeuille de plus de 1 200 biens commerciaux disponibles à la location. N’hésitez pas à nous contacter pour une recherche personnalisée.
75017 Paris - Champerret
Prix net vendeur
Loyer HT
Pas de porte
Droit au bail
Button Text
Nouveauté
Vente - OCC
VL2-6493
Local Commercial | 60m² | BHV Marais
Au cœur d’un axe mythique du Marais, à l’adresse stratégique du 24 rue de la Verrerie, en vis-à-vis direct du BHV Marais, ce local commercial incarne un actif patrimonial de premier ordre. Loué en continu depuis 2003, ce bien bénéficie d’une stabilité locative rare, gage de sécurité et de visibilité pour tout investisseur exigeant. 💼 Données clés : • Prix de vente : 1 300 000 € • Rentabilité brute : 6 % • Locataire en place depuis plus de 20 ans • Emplacement prime à très fort flux piéton Ici, on ne parle pas simplement d’un investissement… mais d’un socle patrimonial solide, ancré dans l’un des quartiers les plus dynamiques et résilients de Paris. Le Marais reste une valeur refuge, porté par une fréquentation constante, mêlant tourisme international et vie de quartier. Un actif rare, taillé pour les investisseurs en quête de rendement sécurisé et de valorisation à long terme. Dossier complet sur demande.
75004 Paris - BHV Marais
Prix net vendeur
Loyer HT
Pas de porte
Droit au bail
Button Text
Nouveauté
Location Pure -
VL2-6494
Local Commercial | 140m² | Louis Blanc
WALLPARTNERS vous propose un local commercial idéalement situé à proximité immédiate du métro Louis Blanc, d’une surface totale d’environ 140m², comprenant : * un rez-de-chaussée de 80m², * un R+1 de 10m², * un sous-sol, accessible directement depuis la boutique, d’environ 50m². Le local est équipé d’un point d’eau et de sanitaires. Emplacement stratégique, idéal pour une activité de restauration rapide sans extraction ou toute autre activité commerciale. Nombreuses enseignes dynamiques à proximité. Vous êtes à la recherche d’un local commercial, d’une boutique, de bureaux ou d’un restaurant ? WALLPARTNERS, dispose d’un portefeuille de plus de 1 200 biens commerciaux disponibles à la location. N’hésitez pas à nous contacter pour une recherche personnalisée.
75010 Paris - Louis Blanc
Prix net vendeur
Loyer HT
Pas de porte
Droit au bail
Button Text
Nouveauté
Location Pure -
VL2-6492
Local Commercial | 58m² | Commerce
WALLPARTNERS vous propose un local commercial idéalement situé à proximité immédiate de la Rue du Commerce, d’une surface totale d’environ 58m², comprenant : * un rez-de-chaussée de 52m², * une cave, accessible directement depuis les parties communes, d’environ 6m². Le local est équipé d’un point d’eau et de sanitaires. Emplacement stratégique, idéal pour une activité de restauration rapide sans extraction ou toute autre activité commerciale. Nombreuses enseignes dynamiques à proximité. Vous êtes à la recherche d’un local commercial, d’une boutique, de bureaux ou d’un restaurant ? WALLPARTNERS, dispose d’un portefeuille de plus de 1 200 biens commerciaux disponibles à la location. N’hésitez pas à nous contacter pour une recherche personnalisée.
75015 Paris - Commerce
Prix net vendeur
Loyer HT
Pas de porte
Droit au bail
Button Text
Nouveauté
Vente - LIB
VL2-6490
Local Commercial | 90m² | Vaugirard
WALL PARTNERS vous propose un local commercial idéalement situé rue Lecourbe, d’une surface totale d’environ 90 m², comprenant : * un rez-de-chaussée de 55 m², * un sous-sol, accessible directement depuis la boutique, d’environ 35 m². Le local est équipé d’un point d’eau et de sanitaires. Emplacement stratégique, idéal pour une activité de restauration rapide sans extraction ou toute autre activité commerciale. Nombreuses enseignes dynamiques à proximité. Vous êtes à la recherche d’un local commercial, d’une boutique, de bureaux ou d’un restaurant ? WALLPARTNERS, dispose d’un portefeuille de plus de 1 200 biens commerciaux disponibles à la location. N’hésitez pas à nous contacter pour une recherche personnalisée.
75015 Paris - Vaugirard
Prix net vendeur
Loyer HT
Pas de porte
Droit au bail
Button Text
Nouveauté
Location Pure -
VL2-6489
Local Commercial | 96m² | Ternes
WALL PARTNERS vous propose un local commercial idéalement situé à proximité immédiate de l'Avenue Niel , d’une surface totale d’environ 96 m², comprenant : * un rez-de-chaussée de 50 m², et une terrasse de 13 m2 avec environ 20 places. * un sous-sol, accessible directement depuis la boutique, d’environ 33 m² à usage de réserve. Le local est équipé d’un point d’eau et de sanitaires. Emplacement stratégique, idéal pour une activité de restauration. conduit d'extraction présent. Nombreuses enseignes dynamiques à proximité. Vous êtes à la recherche d’un local commercial, d’une boutique, de bureaux ou d’un restaurant ? WALLPARTNERS, dispose d’un portefeuille de plus de 1 200 biens commerciaux disponibles à la location. N’hésitez pas à nous contacter pour une recherche personnalisée.
75017 Paris - Ternes
Prix net vendeur
Loyer HT
Pas de porte
Droit au bail
Button Text
Nouveauté
Location Pure -
VL2-6488
Local Commercial | 38m² | Alésia
WALL PARTNERS vous propose un local commercial idéalement situé à proximité Avenue du Général Leclerc , d’une surface totale d’environ 38 m² au rez-de-chaussée Le local est équipé d’un point d’eau et de sanitaires. Emplacement stratégique, idéal pour une activité de restauration rapide sans extraction ou toute autre activité commerciale. Nombreuses enseignes dynamiques à proximité. Vous êtes à la recherche d’un local commercial, d’une boutique, de bureaux ou d’un restaurant ? WALLPARTNERS, dispose d’un portefeuille de plus de 1 200 biens commerciaux disponibles à la location. N’hésitez pas à nous contacter pour une recherche personnalisée.
75014 Paris - Alésia
Prix net vendeur
Loyer HT
Pas de porte
Droit au bail
Button Text
Nouveauté
Cession de bail -
VL2-6485
Local Commercial | 1300m² | Créteil Université
WALLPARTNERS vous propose un local commercial idéalement situé à proximité immédiate du métro Créteil Université, d’une surface totale d’environ 1300m² en R-1 accessible via une rampe, 3m80 de HSP Le local est équipé d’un point d’eau et de sanitaires. Emplacement stratégique, idéal pour une activité de salle de sport, supermarché, showroom automobile, etc. Nombreuses enseignes dynamiques à proximité. Vous êtes à la recherche d’un local commercial, d’une boutique, de bureaux ou d’un restaurant ? WALLPARTNERS, dispose d’un portefeuille de plus de 1 200 biens commerciaux disponibles à la location. N’hésitez pas à nous contacter pour une recherche personnalisée.
94000 Créteil - Créteil Université
Prix net vendeur
Loyer HT
Pas de porte
Droit au bail
Button Text
Nouveauté
Location -
VL2-6484
Local Commercial | 86m² | Mairie de Saint Ouen
WALLPARTNERS vous propose un local commercial avec extraction possible, idéalement situé à proximité immédiate de la mairie de Saint-Ouen, d’une surface totale d’environ 86m² au rez-de-chaussée. Le local est équipé d’un point d’eau et de sanitaires. Emplacement stratégique, idéal pour une activité de restauration rapide ou toute autre activité commerciale. Nombreuses enseignes dynamiques à proximité. Vous êtes à la recherche d’un local commercial, d’une boutique, de bureaux ou d’un restaurant ? WALLPARTNERS, dispose d’un portefeuille de plus de 1 200 biens commerciaux disponibles à la location. N’hésitez pas à nous contacter pour une recherche personnalisée.
93400 - Mairie de Saint Ouen
Prix net vendeur
Loyer HT
Pas de porte
Droit au bail
Button Text
Nouveauté
Vente - LIB
VL2-6483
Local Commercial | 60m² | Chateau Rouge
WALLPARTNERS vous propose un local commercial idéalement situé à proximité immédiate du métro Chateau Rouge, d’une surface totale d’environ 60m² en rez-de-chausséee Le local est équipé d’un point d’eau et de sanitaires. Emplacement stratégique, idéal pour une activité de restauration rapide sans extraction ou toute autre activité commerciale. Nombreuses enseignes dynamiques à proximité. Vous êtes à la recherche d’un local commercial, d’une boutique, de bureaux ou d’un restaurant ? WALLPARTNERS, dispose d’un portefeuille de plus de 1 200 biens commerciaux disponibles à la location. N’hésitez pas à nous contacter pour une recherche personnalisée.
75018 Paris - Chateau Rouge
Prix net vendeur
Loyer HT
Pas de porte
Droit au bail
Button Text
Nouveauté
Location Pure -
VL2-6482
Local Commercial | 60m² | Chateau Rouge
WALLPARTNERS vous propose un local commercial idéalement situé à proximité immédiate du métro Chateau Rouge, d’une surface totale d’environ 60m² en rez-de-chausséee Le local est équipé d’un point d’eau et de sanitaires. Emplacement stratégique, idéal pour une activité de restauration rapide sans extraction ou toute autre activité commerciale. Nombreuses enseignes dynamiques à proximité. Vous êtes à la recherche d’un local commercial, d’une boutique, de bureaux ou d’un restaurant ? WALLPARTNERS, dispose d’un portefeuille de plus de 1 200 biens commerciaux disponibles à la location. N’hésitez pas à nous contacter pour une recherche personnalisée.
75018 Paris - Chateau Rouge
Prix net vendeur
Loyer HT
Pas de porte
Droit au bail
Button Text
Nouveauté
Location Pure -
VL2-6481
Local Commercial | 35m² | Champerret
WALLPARTNERS vous propose un local commercial idéalement situé à proximité immédiate de la Porte de Champerret, d’une surface totale d’environ 35m² de plain-pied. Le local est équipé d’un point d’eau et de sanitaires. Emplacement stratégique, idéal pour une activité de restauration rapide sans extraction ou toute autre activité commerciale. Nombreuses enseignes dynamiques à proximité. Vous êtes à la recherche d’un local commercial, d’une boutique, de bureaux ou d’un restaurant ? WALLPARTNERS, dispose d’un portefeuille de plus de 1 200 biens commerciaux disponibles à la location. N’hésitez pas à nous contacter pour une recherche personnalisée.
75017 Paris - Champerret
Prix net vendeur
Loyer HT
Pas de porte
Droit au bail
Button Text
Nouveauté
Cession de bail -
VL2-6480
Local Commercial | 34m² | Place des Vosges
WALLPARTNERS vous propose un local commercial idéalement situé à proximité immédiate de la Place des Vosges, d’une surface totale d’environ 34m², comprenant : * un rez-de-chaussée de 17m², * un sous-sol, accessible directement depuis la boutique, d’environ 17m². Le local est équipé d’un point d’eau et de sanitaires. Emplacement stratégique, idéal pour une activité de restauration rapide sans extraction ou toute autre activité commerciale. Nombreuses enseignes dynamiques à proximité. Vous êtes à la recherche d’un local commercial, d’une boutique, de bureaux ou d’un restaurant ? WALLPARTNERS, dispose d’un portefeuille de plus de 1 200 biens commerciaux disponibles à la location. N’hésitez pas à nous contacter pour une recherche personnalisée.
75004 Paris - Place des Vosges
Prix net vendeur
Loyer HT
Pas de porte
Droit au bail
Button Text
Nouveauté
Vente - OCC
VL2-6477
Local Commercial | 52m² | Mairie de Suresnes
WALL PARTNERS vous propose à la vente, un local commercial occupé idéalement situé à proximité immédiate de la Mairie de Suresnes, d’une surface totale d’environ 52m², comprenant : * un rez-de-chaussée de 42m², * un sous-sol (cave), d’environ 10m². Le local est équipé d’un point d’eau et de sanitaires. Emplacement stratégique, idéal pour une activité de commerce de proximités ou toute autre activité commerciale. Nombreuses enseignes dynamiques à proximité. Vous êtes à la recherche d’un local commercial, d’une boutique, de bureaux ou d’un restaurant ? WALLPARTNERS, dispose d’un portefeuille de plus de 1 200 biens commerciaux disponibles à la location. N’hésitez pas à nous contacter pour une recherche personnalisée.
92150 Suresnes - Mairie de Suresnes
Prix net vendeur
Loyer HT
Pas de porte
Droit au bail
Button Text
Nouveauté
Location Pure -
VL2-6476
Local Commercial | 67m² | Grenelle
Au cœur de la rue de Grenelle, local commercial d’une surface totale d’environ 67 m², comprenant 44 m² en rez-de-chaussée et 23 m² en sous-sol. Adapté à une activité de restauration froide (sans extraction), ce bien conviendra parfaitement à un coffee shop, une sandwicherie ou un concept food qualitatif. Terrasse possible, véritable atout dans ce secteur recherché, bénéficiant d’un flux mixte résidentiel et bureaux. Un emplacement stratégique, idéal pour capter une clientèle exigeante.
75007 Paris - Grenelle
Prix net vendeur
Loyer HT
Pas de porte
Droit au bail
Button Text
Nouveauté
Location Pure -
VL2-6475
Local Commercial | 140m² | Maisons-Alfort - Alfortville
WALL PARTNERS vous propose un local commercial idéalement situé à proximité immédiate du RER D Maisons-Alfort-Alfortville, d’une surface totale d’environ 140 m², comprenant : * un rez-de-chaussée de 140 m², Le local est équipé d’un point d’eau et de sanitaires. Emplacement stratégique, idéal pour une activité médicale, de type tertiaire ou toute autre activité commerciale. Nombreuses enseignes dynamiques à proximité. Vous êtes à la recherche d’un local commercial, d’une boutique, de bureaux ou d’un restaurant ? WALLPARTNERS, dispose d’un portefeuille de plus de 1 200 biens commerciaux disponibles à la location. N’hésitez pas à nous contacter pour une recherche personnalisée.
94700 Maisons-Alfort - Maisons-Alfort - Alfortville
Prix net vendeur
Loyer HT
Pas de porte
Droit au bail
Button Text
Nouveauté
Location Pure -
VL2-5049
Local Commercial | 112m² | Saint-Sulpice
WALL PARTNERS vous propose un local commercial idéalement situé à proximité immédiate de Saint-Sulpice, d’une surface totale d’environ 112 m², comprenant : * un rez-de-chaussée de 57 m², * un sous-sol, accessible directement depuis la boutique, d’environ 30 m² * un R+1 de 25 m2 accessible directement depuis la boutique Le local est équipé d’un point d’eau et de sanitaires. Emplacement stratégique, idéal pour un coffee shop, pret à porter, joaillerie ou toute autre activité commerciale. Nombreuses enseignes dynamiques à proximité. Vous êtes à la recherche d’un local commercial, d’une boutique, de bureaux ou d’un restaurant ? WALLPARTNERS, dispose d’un portefeuille de plus de 1 200 biens commerciaux disponibles à la location. N’hésitez pas à nous contacter pour une recherche personnalisée.
75006 Paris - Saint-Sulpice
Prix net vendeur
Loyer HT
Pas de porte
Droit au bail
Button Text
Nouveauté
Location Pure -
VL2-6474
Local Commercial | 20m² | Jacques Bonsergent
WALL PARTNERS vous propose un local commercial idéalement situé à proximité immédiate de Jacques Bonsergent, d’une surface totale d’environ 2° m², comprenant : * un rez-de-chaussée de 20 m² plain pied, Le local est équipé d’un point d’eau et de sanitaires. Emplacement stratégique, idéal pour une activité de restauration rapide sans extraction ou toute autre activité commerciale. Nombreuses enseignes dynamiques à proximité. Vous êtes à la recherche d’un local commercial, d’une boutique, de bureaux ou d’un restaurant ? WALLPARTNERS, dispose d’un portefeuille de plus de 1 200 biens commerciaux disponibles à la location. N’hésitez pas à nous contacter pour une recherche personnalisée.
75010 Paris - Jacques Bonsergent
Prix net vendeur
Loyer HT
Pas de porte
Droit au bail
Button Text
Nouveauté
Location Pure -
VL2-6472
Local Commercial | 125m² | Cergy Préfecture
WALL PARTNERS vous propose un local commercial idéalement situé à proximité immédiate de Cergy Préfecture, d’une surface totale d’environ 125 m², comprenant : * un rez-de-chaussée de 125 m² plain pied, Le local est équipé d’un point d’eau et de sanitaires. Emplacement stratégique, idéal pour une activité médicale, bureau ou toute autre activité commerciale. Nombreuses enseignes dynamiques à proximité. Vous êtes à la recherche d’un local commercial, d’une boutique, de bureaux ou d’un restaurant ? WALLPARTNERS, dispose d’un portefeuille de plus de 1 200 biens commerciaux disponibles à la location. N’hésitez pas à nous contacter pour une recherche personnalisée.
95000 Cergy - Cergy Préfecture
Prix net vendeur
Loyer HT
Pas de porte
Droit au bail
Button Text
Nouveauté
Location Pure -
VL2-6473
Local Commercial | 108m² | Place de Clichy
WALL PARTNERS vous propose un local commercial idéalement situé à proximité immédiate de La place de Clichy , d’une surface totale d’environ 107,60 m², comprenant : * un rez-de-chaussée, boutique sur rue de 46,80 m², * un sous-sol, accessible directement depuis la boutique sur rue, d’environ 25 m². * un rez-de-chaussée sur cour indépendant de 36 m², Le local est équipé d’un point d’eau et de sanitaires. Emplacement stratégique, idéal pour une activité de tertiaire ou toute autre activité commerciale. Vous êtes à la recherche d’un local commercial, d’une boutique, de bureaux ou d’un restaurant ? WALLPARTNERS, dispose d’un portefeuille de plus de 1 200 biens commerciaux disponibles à la location. N’hésitez pas à nous contacter pour une recherche personnalisée.
75009 Paris - Place de Clichy
Prix net vendeur
Loyer HT
Pas de porte
Droit au bail
Button Text
Nouveauté
Location Pure -
VL2-1103
Local Commercial | 245m² | La Muette
WALL PARTNERS vous propose une boutique à proximité immédiate du Trocadéro, de la Muette et de la rue de Passy, d'une surface totale d'environ 245 m2 comprenant un rez-de-chaussée d'environ 105 m2, un premier niveau de sous-sol d'environ 65 m2 entièrement aménagé en cuisine avec un conduit d'extraction de 600mm jusqu'en toiture, et un deuxième niveau de sous-sol à usage de stockage, tous les niveaux communiquent entre eux par des escaliers et des monte-charges, sanitaire et point d'eau, excellent emplacement pour un restaurant gastronomique, nombreuses enseignes à proximité. Le bien est complété par une licence IV.
75116 Paris - La Muette
Prix net vendeur
Loyer HT
Pas de porte
Droit au bail
Button Text
Nouveauté
Location Pure -
VL2-6465
Local Commercial | 214m² | Métro Saint-Sulpice
Un actif qui capte le regard et retient le flux. Situé au cœur de la rue de Rennes, ce local commercial bénéficie d’un positionnement stratégique, au sein d’un environnement dense et vivant, porté par un flux piéton soutenu et une attractivité commerciale constante. Déployé sur une surface totale d’environ 214 m², ce bien s’articule avec fluidité sur trois niveaux : • 75 m² en rez-de-chaussée, véritable vitrine commerciale • 80 m² au 1er étage, idéal pour prolonger l’expérience client ou développer un espace complémentaire • 60 m² en sous-sol, parfaitement exploitable pour stockage ou réserve Son linéaire exceptionnel de 15 mètres en angle lui confère une visibilité rare, offrant une exposition maximale et un impact visuel fort. Une signature commerciale qui ne passe pas inaperçue. Ce local se prête à de nombreuses activités (hors nuisances), et séduira les enseignes en quête d’un emplacement structurant, capable de porter une image et de générer du flux. Un emplacement. Une façade. Une opportunité.
75006 Paris - Métro Saint-Sulpice
Prix net vendeur
Loyer HT
Pas de porte
Droit au bail
Button Text
Nouveauté
Location Pure -
VL2-6463
Local Commercial | 320m² | Voltaire
WALL PARTNERS vous propose un local commercial idéalement situé à proximité immédiate du métro Voltaire, d’une surface totale d’environ 320m², comprenant : * un rez-de-chaussée de 260m² totalement décloisonable (peu de poteaux et murs porteurs), * un sous-sol exploité en très bon état, accessible directement depuis la boutique, d’environ 60m². Le local est en bon état, équipé d’un point d’eau et de sanitaires. Une place de parking est comprise dans le prix. Emplacement stratégique, idéal pour une activité de services, pilates/yoga, salle de sport ou toute autre activité commerciale. Nombreuses enseignes dynamiques à proximité. Vous êtes à la recherche d’un local commercial, d’une boutique, de bureaux ou d’un restaurant ? WALLPARTNERS, dispose d’un portefeuille de plus de 1 200 biens commerciaux disponibles à la location. N’hésitez pas à nous contacter pour une recherche personnalisée.
75011 Paris - Voltaire
Prix net vendeur
Loyer HT
Pas de porte
Droit au bail
Button Text
Nouveauté
Location Pure -
VL2-6462
Local Commercial | 86m² | Ternes
WALLPARTNERS vous propose un local commercial idéalement situé à proximité immédiate des Ternes, d’une surface totale d’environ 86 m², comprenant : * un rez-de-chaussée de 68 m², * un sous-sol, accessible directement depuis la boutique, d’environ 18 m². Le local est équipé d’un point d’eau et de sanitaires. Emplacement stratégique, idéal pour une activité de restauration rapide sans extraction ou toute autre activité commerciale. Nombreuses enseignes dynamiques à proximité. Vous êtes à la recherche d’un local commercial, d’une boutique, de bureaux ou d’un restaurant ? WALLPARTNERS, dispose d’un portefeuille de plus de 1 200 biens commerciaux disponibles à la location. N’hésitez pas à nous contacter pour une recherche personnalisée.
75017 Paris - Ternes
Prix net vendeur
Loyer HT
Pas de porte
Droit au bail
Button Text
Nouveauté
Vente - LIB
VL2-6461
Local Commercial | 250m² | Jacques Bonsergent
WALL PARTNERS vous propose un local commercial idéalement situé à proximité immédiate de Jacques Bonsergent, d’une surface totale d’environ 250 m², comprenant : * un rez-de-chaussée de 190 m², * un sous-sol, accessible directement depuis la boutique, d’environ 60 m². Le local est équipé d’une extraction de diamètre 400 mm pour toutes types de restauration, point d’eau et de sanitaires. Emplacement stratégique, idéal pour une activité de restauration chaude avec extraction ou toute autre activité commerciale. Nombreuses enseignes dynamiques à proximité. Vous êtes à la recherche d’un local commercial, d’une boutique, de bureaux ou d’un restaurant ? WALLPARTNERS, dispose d’un portefeuille de plus de 1 200 biens commerciaux disponibles à la location. N’hésitez pas à nous contacter pour une recherche personnalisée.
75010 Paris - Jacques Bonsergent
Prix net vendeur
Loyer HT
Pas de porte
Droit au bail
Button Text
Nouveauté
Location Pure -
VL2-6460
Local Commercial | 165m² | Église de Créteil
WALL PARTNERS vous propose un local commercial idéalement situé à proximité immédiate de l'église de Créteil , d’une surface totale d’environ 165 m², comprenant : * un rez-de-chaussée de 85 m², * un sous-sol ERP, accessible directement depuis la boutique, d’environ 80 m². Le local est équipé d’un point d’eau et de sanitaires. Emplacement stratégique, idéal pour une activité médicale, supermarché, Pilate ou toute autre activité commerciale. Nombreuses enseignes dynamiques à proximité. Vous êtes à la recherche d’un local commercial, d’une boutique, de bureaux ou d’un restaurant ? WALLPARTNERS, dispose d’un portefeuille de plus de 1 200 biens commerciaux disponibles à la location. N’hésitez pas à nous contacter pour une recherche personnalisée.
94000 Créteil - Église de Créteil
Prix net vendeur
Loyer HT
Pas de porte
Droit au bail
Button Text
Nouveauté
Location Pure -
VL2-5019
Local Commercial | 179m² | Villiers
WALL PARTNERS vous propose un local commercial idéalement situé à proximité immédiate du métro Monceau , d’une surface totale d’environ 179 m², comprenant : * un rez-de-chaussée de 115 m², * un sous-sol, accessible directement depuis la boutique, d’environ 64 m² 100% ERP. Le local est équipé d’un point d’eau et de sanitaires. Emplacement stratégique, idéal pour une activité Pilate, showroom ou toute autre activité commerciale. Nombreuses enseignes dynamiques à proximité. Vous êtes à la recherche d’un local commercial, d’une boutique, de bureaux ou d’un restaurant ? WALLPARTNERS, dispose d’un portefeuille de plus de 1 200 biens commerciaux disponibles à la location. N’hésitez pas à nous contacter pour une recherche personnalisée.
75008 Paris - Villiers
Prix net vendeur
Loyer HT
Pas de porte
Droit au bail
Button Text
Nouveauté
Location Pure -
VL2-6459
Local Commercial | 75m² | Porte d'Auteuil
WALLPARTNERS vous propose un local commercial idéalement situé à proximité immédiate de , d’une surface totale d’environ 75 m², comprenant : * un rez-de-chaussée de 50 m², * un sous-sol, accessible directement depuis la boutique, d’environ 25 m². Le local est équipé d’un point d’eau et de sanitaires. Emplacement stratégique, idéal pour une activité de primeur, commerce de Prêt à porter, restauration rapide SANS CONDUIT DE CHEMINÉE. Nombreuses enseignes dynamiques à proximité. Vous êtes à la recherche d’un local commercial, d’une boutique, de bureaux ou d’un restaurant ? WALLPARTNERS, dispose d’un portefeuille de plus de 1 200 biens commerciaux disponibles à la location. N’hésitez pas à nous contacter pour une recherche personnalisée.
75016 Paris - Porte d'Auteuil
Prix net vendeur
Loyer HT
Pas de porte
Droit au bail
Button Text
Nouveauté
Location Pure -
VL2-6457
Local Commercial | 61m² | Daumesnil/Ledru Rollin
WALLPARTNERS vous propose un local commercial idéalement situé au 12 avenue Daumesnil, dans le 13ᵉ arrondissement de Paris, au cœur d’un environnement dynamique mêlant flux résidentiel et passage régulier. Ce bien développe une surface totale d’environ 61,5 m², répartie comme suit : • 57,5 m² en rez-de-chaussée, offrant un espace de vente lumineux et facilement aménageable • 4 m² en cave, parfait pour du stockage complémentaire DISPO EN SEPTEMBRE 2026 Le local bénéficie d’un linéaire de façade de 4 mètres, assurant une visibilité efficace sur un axe passant. Conditions d’exploitation : • Activités autorisées : restauration froide Un emplacement qui respire la simplicité efficace : parfait pour un concept agile, une enseigne qui va droit au but, ou une première implantation maîtrisée dans un quartier vivant.
75012 Paris - Daumesnil/Ledru Rollin
Prix net vendeur
Loyer HT
Pas de porte
Droit au bail
Button Text
Nouveauté
Location Pure -
VL2-6456
Local Commercial | 170m² | Saint-Paul
WALLPARTNERS vous propose un local commercial idéalement situé à proximité immédiate du métro Saint-Paul, d’une surface totale d’environ 170 m², comprenant : * un rez-de-chaussée de 100 m², * un premier sous-sol, accessible directement depuis la boutique, d’environ 35 m² * un deuxième sous-sol d'environ 15m2 * une mezzanine d'environ 20m2. Le local est équipé d’un point d’eau et de sanitaires. Emplacement stratégique, idéal pour une activité de restauration avec extraction de 400 ou toute autre activité commerciale. Nombreuses enseignes dynamiques à proximité. Vous êtes à la recherche d’un local commercial, d’une boutique, de bureaux ou d’un restaurant ? WALLPARTNERS, dispose d’un portefeuille de plus de 1 200 biens commerciaux disponibles à la location. N’hésitez pas à nous contacter pour une recherche personnalisée.
75004 Paris - Saint-Paul
Prix net vendeur
Loyer HT
Pas de porte
Droit au bail
Button Text
Nouveauté
Location Pure -
VL2-6455
Local Commercial | 83m² | Daumesnil
WALLPARTNERS vous propose un local commercial idéalement situé sur l'avenue Daumesnil, dans un environnement dynamique mêlant flux résidentiel et passage régulier. D’une surface totale d’environ 83 m², ce bien se compose de : • 63 m² en rez-de-chaussée, offrant un espace de vente lumineux et fonctionnel • 20 m² en sous-sol, directement accessible depuis le local DISPO EN SEPTEMBRE 2026 Ce local bénéficie d’un linéaire exceptionnel de 8 mètres en angle, garantissant une visibilité optimale et un fort impact commercial. 👉 Restauration froide autorisée (sans extraction) Idéal pour une activité de restauration légère, coffee shop, sandwicherie premium ou concept food sans cuisson lourde
75012 Paris - Daumesnil
Prix net vendeur
Loyer HT
Pas de porte
Droit au bail
Button Text
Nouveauté
Location Pure -
VL2-672
Local Commercial | 201m² | Centre Pompidou
WALLPARTNERS vous propose un local commercial idéalement situé à proximité immédiate du centre pompidou, d’une surface totale d’environ 202 m², comprenant : * un rez-de-chaussée de 202 m², Le local est équipé d’un point d’eau et de sanitaires. Emplacement stratégique, idéal pour une activité de restauration rapide sans extraction ou toute autre activité commerciale. Nombreuses enseignes dynamiques à proximité. Vous êtes à la recherche d’un local commercial, d’une boutique, de bureaux ou d’un restaurant ? WALLPARTNERS, dispose d’un portefeuille de plus de 1 200 biens commerciaux disponibles à la location. N’hésitez pas à nous contacter pour une recherche personnalisée.
75004 Paris - Centre Pompidou
Prix net vendeur
Loyer HT
Pas de porte
Droit au bail
Button Text
Nouveauté
Location Pure -
VL2-6454
Local Commercial | 119m² | Colbert
WALL PARTNERS vous propose un local commercial idéalement situé à proximité immédiate de Cobert, d’une surface totale d’environ 119 m², comprenant : * un rez-de-chaussée de 119 m² plain pied, Le local est équipé d’un point d’eau et de sanitaires. Emplacement stratégique, idéal pour une activité de restauration rapide sans extraction ou toute autre activité commerciale. Nombreuses enseignes dynamiques à proximité. Vous êtes à la recherche d’un local commercial, d’une boutique, de bureaux ou d’un restaurant ? WALLPARTNERS, dispose d’un portefeuille de plus de 1 200 biens commerciaux disponibles à la location. N’hésitez pas à nous contacter pour une recherche personnalisée.
92330 Sceaux - Colbert
Prix net vendeur
Loyer HT
Pas de porte
Droit au bail
Button Text
Nouveauté
Vente - LIB
VL2-6453
Local Commercial | 95m² | Goncourt
WALL PARTNERS vous propose un lot à usage mixte ( local commercial / habitation ) idéalement situé à proximité immédiate de Goncourt, d’une surface totale d’environ 95 m², comprenant : * un rez-de-chaussée de 65 m², * un sous-sol aménagé en chambre, accessible directement depuis le rez-de-chaussée, d’environ 30 m². Le local est équipé d’un point d’eau et de sanitaires. Emplacement stratégique, idéal pour de l'hébergement hotelier touristique, bureau ou toute autre activité commerciale. Nombreuses enseignes dynamiques à proximité. Vous êtes à la recherche d’un local commercial, d’une boutique, de bureaux ou d’un restaurant ? WALLPARTNERS, dispose d’un portefeuille de plus de 1 200 biens commerciaux disponibles à la location. N’hésitez pas à nous contacter pour une recherche personnalisée.
75011 Paris - Goncourt
Prix net vendeur
Loyer HT
Pas de porte
Droit au bail
Button Text
Nouveauté
Location Pure -
VL2-6452
Local Commercial | 95m² | Goncourt
WALL PARTNERS vous propose un local commercial idéalement situé à proximité immédiate de Goncourt, d’une surface totale d’environ 95 m², comprenant : * un rez-de-chaussée de 65 m², * un sous-sol aménagé en chambre, accessible directement depuis le rez-de-chaussée, d’environ 30 m². Le local est équipé d’un point d’eau et de sanitaires. Emplacement stratégique, idéal pour une activité de bureau ou toute autre activité commerciale. Nombreuses enseignes dynamiques à proximité. Vous êtes à la recherche d’un local commercial, d’une boutique, de bureaux ou d’un restaurant ? WALLPARTNERS, dispose d’un portefeuille de plus de 1 200 biens commerciaux disponibles à la location. N’hésitez pas à nous contacter pour une recherche personnalisée.
75011 Paris - Goncourt
Prix net vendeur
Loyer HT
Pas de porte
Droit au bail
Button Text
Nouveauté
Location Pure -
VL2-6450
Local Commercial | 130m² | Palais-Royal
WALLPARTNERS vous propose un local commercial idéalement situé à proximité immédiate de Palais-Royal , d’une surface totale d’environ 130 m², comprenant : * un rez-de-chaussée de 55 m², * un sous-sol, accessible directement depuis la boutique, d’environ 52 m². * un R+1, accessible directement depuis la boutique, d’environ 23 m². Le local est équipé d’un point d’eau et de sanitaires. Emplacement stratégique, idéal pour une activité de restauration. Nombreuses enseignes dynamiques à proximité. Vous êtes à la recherche d’un local commercial, d’une boutique, de bureaux ou d’un restaurant ? WALLPARTNERS, dispose d’un portefeuille de plus de 1 200 biens commerciaux disponibles à la location. N’hésitez pas à nous contacter pour une recherche personnalisée.
75001 Paris - Palais-Royal
Prix net vendeur
Loyer HT
Pas de porte
Droit au bail
Button Text
Nouveauté
Location Pure -
VL2-2807
Local Commercial | 330m² | Dugommier
WALLPARTNERS vous propose un local commercial à proximité immédiate du métro Dugommier, d'une surface totale d'environ 330 m², le tout en rez-de-chaussée, sanitaire et point d'eau, excellent emplacement pour une salle de sport, studio photo, supermarché, nombreuses enseignes à proximité.
75012 Paris - Dugommier
Prix net vendeur
Loyer HT
Pas de porte
Droit au bail
Button Text
Nouveauté
Location Pure -
VL2-6449
Local Commercial | 250m² | République
WALL PARTNERS vous propose un local commercial idéalement situé à proximité immédiate de République, d’une surface totale d’environ 250 m², comprenant : * un rez-de-chaussée de 190 m², * un sous-sol, accessible directement depuis la boutique, d’environ 60 m². Le local est équipé d'une extraction de diamètre 400 mm, d’un point d’eau et de sanitaires. Emplacement stratégique, idéal pour une salle de sport, supermarché, restauration chaude ou toute autre activité commerciale. Nombreuses enseignes dynamiques à proximité. Vous êtes à la recherche d’un local commercial, d’une boutique, de bureaux ou d’un restaurant ? WALLPARTNERS, dispose d’un portefeuille de plus de 1 200 biens commerciaux disponibles à la location. N’hésitez pas à nous contacter pour une recherche personnalisée.
75010 Paris - République
Prix net vendeur
Loyer HT
Pas de porte
Droit au bail
Button Text
Nouveauté
Location Pure -
VL2-6448
Local Commercial | 105m² | Sentier
WALL PARTNERS vous propose un local commercial idéalement situé à proximité immédiate du Sentier, d’une surface totale d’environ 105 m², comprenant : * un rez-de-chaussée de 78 m², * un sous-sol, accessible directement depuis la boutique, d’environ 27 m². Le local est équipé d’un point d’eau et de sanitaires. Emplacement stratégique, idéal pour une activité de restauration rapide sans extraction ou toute autre activité commerciale. Nombreuses enseignes dynamiques à proximité. Vous êtes à la recherche d’un local commercial, d’une boutique, de bureaux ou d’un restaurant ? WALLPARTNERS, dispose d’un portefeuille de plus de 1 200 biens commerciaux disponibles à la location. N’hésitez pas à nous contacter pour une recherche personnalisée.
75002 Paris - Sentier
Prix net vendeur
Loyer HT
Pas de porte
Droit au bail
Button Text
Nouveauté
Vente - LIB
VL2-6446
Local Commercial | 66m² | Javel
WALL PARTNERS vous propose un local commercial idéalement situé à proximité immédiate de Javel, d’une surface totale d’environ 66 m², comprenant : * un rez-de-chaussée de 66 m², Le local est équipé d’un point d’eau et de sanitaires. Emplacement stratégique, idéal pour une activité de bureau clé en main, médicale ou toute autre activité commerciale. Nombreuses enseignes dynamiques à proximité. Vous êtes à la recherche d’un local commercial, d’une boutique, de bureaux ou d’un restaurant ? WALLPARTNERS, dispose d’un portefeuille de plus de 1 200 biens commerciaux disponibles à la location. N’hésitez pas à nous contacter pour une recherche personnalisée.
75015 Paris - Javel
Prix net vendeur
Loyer HT
Pas de porte
Droit au bail
Button Text
Nouveauté
Cession de bail -
VL2-6445
Local Commercial | 345m² | Saint-Michel - Notre Dame
WALLPARTNERS vous propose un local commercial idéalement situé à proximité immédiate de , d’une surface totale d’environ 345m², comprenant : * un rez-de-chaussée de 157m², * un sous-sol, accessible directement depuis la boutique, d’environ 188m². Le local est équipé d’un conduit d'extraction à remettre aux normes, d'un point d’eau et de sanitaires. Emplacement stratégique, idéal pour une activité de Bar ou toute autre activité commerciale. Nombreuses enseignes dynamiques à proximité. Vous êtes à la recherche d’un local commercial, d’une boutique, de bureaux ou d’un restaurant ? WALLPARTNERS, dispose d’un portefeuille de plus de 1 200 biens commerciaux disponibles à la location. N’hésitez pas à nous contacter pour une recherche personnalisée.
75005 Paris - Saint-Michel - Notre Dame
Prix net vendeur
Loyer HT
Pas de porte
Droit au bail
Button Text
Nouveauté
Vente - OCC
VL2-6443
Local Commercial | 190m² | Sept Chemins
WALLPARTNERS vous propose un local commercial idéalement situé à proximité immédiate du Square Marcel Cachin, d’une surface totale d’environ 190m² de Plain-pied, comprenant : Le local est équipé d’un point d’eau et de sanitaires. Emplacement stratégique, idéal pour une activité de restauration rapide sans extraction ou toute autre activité commerciale. Nombreuses enseignes dynamiques à proximité. Vous êtes à la recherche d’un local commercial, d’une boutique, de bureaux ou d’un restaurant ? WALLPARTNERS, dispose d’un portefeuille de plus de 1 200 biens commerciaux disponibles à la location. N’hésitez pas à nous contacter pour une recherche personnalisée.
93100 Montreuil - Sept Chemins
Prix net vendeur
Loyer HT
Pas de porte
Droit au bail
Button Text
Nouveauté
Location Pure -
VL2-6442
Local Commercial | 241m² | Grands Boulevards
WALL PARTNERS vous propose un local commercial idéalement situé à proximité immédiate du métro, situé sur les Grands Boulevards, d’une surface totale d’environ 241m², comprenant : * un rez-de-chaussée de 45m², * un étage exploité en salle de restauration, accessible directement depuis la boutique, d’environ 156m². * un sous-sol, également accessible depuis la boutique, d’environ 40m². Le local est équipé d’un conduit (600mm de diamètre), d'un point d’eau et de sanitaires. Emplacement stratégique, idéal pour une activité de restauration ou toute autre activité commerciale. Nombreuses enseignes dynamiques à proximité. Vous êtes à la recherche d’un local commercial, d’une boutique, de bureaux ou d’un restaurant ? WALLPARTNERS, dispose d’un portefeuille de plus de 1 200 biens commerciaux disponibles à la location. N’hésitez pas à nous contacter pour une recherche personnalisée.
75002 Paris - Grands Boulevards
Prix net vendeur
Loyer HT
Pas de porte
Droit au bail
Button Text
Nouveauté
Location -
VL2-6441
Local Commercial | 45m² | EUROPE
WALLPARTNERS vous propose un local commercial bénéficiant d’un emplacement recherché, au cœur d’un quartier particulièrement dynamique et commerçant, au sein d’un environnement mêlant commerces de proximité et nombreux bureaux. D’une surface totale d’environ 45 m², ce local se compose de : • un rez-de-chaussée d’environ 30 m², offrant un espace de vente clair et facilement aménageable, • un sous-sol d’environ 15 m², accessible directement depuis la boutique, idéal pour le stockage ou une réserve. Le local dispose également d’une terrasse permettant d’accueillir plus de 10 places assises, véritable atout pour une activité de restauration. Situé dans un secteur très fréquenté, porté par une forte densité de bureaux et un flux piéton régulier, l’emplacement se prête parfaitement à une activité de restauration rapide sans extraction, coffee shop, petite restauration ou concept de vente à emporter. La station Europe se trouve à environ 200 mètres, assurant une excellente accessibilité et un passage constant tout au long de la journée. Vous recherchez un local commercial, une boutique, des bureaux ou un restaurant ? WALLPARTNERS dispose d’un portefeuille de plus de 1 200 biens commerciaux disponibles à la location. N’hésitez pas à nous contacter pour une recherche personnalisée et ciblée selon votre projet.
75008 Paris - EUROPE
Prix net vendeur
Loyer HT
Pas de porte
Droit au bail
Button Text
Nouveauté
Location Pure -
VL2-6434
Local Commercial | 30m² | Croix de chavaux
WALLPARTNERS vous propose un local commercial idéalement situé à proximité immédiate de , d’une surface totale d’environ m², comprenant : * un rez-de-chaussée de 30 m², Le local est équipé d’un point d’eau et de sanitaires. Emplacement stratégique, idéal pour une activité de restauration rapide sans extraction ou toute autre activité commerciale. Nombreuses enseignes dynamiques à proximité. Vous êtes à la recherche d’un local commercial, d’une boutique, de bureaux ou d’un restaurant ? WALLPARTNERS, dispose d’un portefeuille de plus de 1 200 biens commerciaux disponibles à la location. N’hésitez pas à nous contacter pour une recherche personnalisée.
93100 Montreuil - Croix de chavaux
Prix net vendeur
Loyer HT
Pas de porte
Droit au bail
Button Text
Nouveauté
Vente - OCC
VL2-6431
Local Commercial | 55m² | Convention
WALL PARTNERS vous propose un local commercial idéalement situé à proximité immédiate du métro Convention sur la rue de Vaugirard, d’une surface totale d’environ 55 m², comprenant : * un rez-de-chaussée de 36 m², * un sous-sol, accessible directement depuis la boutique, d’environ 19 m². Le local est équipé d’un point d’eau et de sanitaires. Emplacement stratégique, idéal pour une activité de service ou toute autre activité commerciale. Nombreuses enseignes dynamiques à proximité. Vous êtes à la recherche d’un local commercial, d’une boutique, de bureaux ou d’un restaurant ? WALLPARTNERS, dispose d’un portefeuille de plus de 1 200 biens commerciaux disponibles à la location. N’hésitez pas à nous contacter pour une recherche personnalisée.
75015 Paris - Convention
Prix net vendeur
Loyer HT
Pas de porte
Droit au bail
Button Text
Nouveauté
Vente - OCC
VL2-6430
Local Commercial | 35m² | Mirabeau
WALL PARTNERS vous propose un local commercial situé à proximité immédiate de l'Avenue de Versailles , d’une surface totale d’environ 35 m², comprenant : * un rez-de-chaussée de 20 m², * un sous-sol, accessible directement depuis la boutique, d’environ 15 m². Le local est équipé d’un point d’eau et de sanitaires. Nombreuses enseignes dynamiques à proximité. Vous êtes à la recherche d’un local commercial, d’une boutique, de bureaux ou d’un restaurant ? WALLPARTNERS, dispose d’un portefeuille de plus de 1 200 biens commerciaux disponibles à la location. N’hésitez pas à nous contacter pour une recherche personnalisée.
75016 Paris - Mirabeau
Prix net vendeur
Loyer HT
Pas de porte
Droit au bail
Button Text
Nouveauté
Location Pure -
VL2-6428
Local Commercial | 32m² | Porte maillot/ Argentine
WALL PARTNERS vous propose un local commercial idéalement situé à proximité immédiate de la Place Saint-Ferdinand , d’une surface totale d’environ 32 m² au rez-de-chaussée. Le local est équipé d’un point d’eau et de sanitaires. Emplacement stratégique, idéal pour une activité de service ou toute autre activité commerciale sans nuisance. Nombreuses enseignes dynamiques à proximité. Vous êtes à la recherche d’un local commercial, d’une boutique, de bureaux ou d’un restaurant ? WALLPARTNERS, dispose d’un portefeuille de plus de 1 200 biens commerciaux disponibles à la location. N’hésitez pas à nous contacter pour une recherche personnalisée.
75017 Paris - Porte maillot/ Argentine
Prix net vendeur
Loyer HT
Pas de porte
Droit au bail
Button Text
Nouveauté
Location Pure -
VL2-6427
Local Commercial | 173m² | Marx Dormoy
WALL PARTNERS vous propose un local commercial idéalement situé à proximité immédiate du marché couvert de l'Olive, d’une surface totale d’environ 173 m², comprenant : * un rez-de-chaussée de 107 m², * un sous-sol, accessible directement depuis la boutique, d’environ 58 m², et une réserve séparée de 8 m2 sur cour. Le local est équipé d’un point d’eau et de sanitaires. Emplacement stratégique, idéal pour une activité de restauration rapide sans extraction ou toute autre activité commerciale. Nombreuses enseignes dynamiques à proximité. Vous êtes à la recherche d’un local commercial, d’une boutique, de bureaux ou d’un restaurant ? WALLPARTNERS, dispose d’un portefeuille de plus de 1 200 biens commerciaux disponibles à la location. N’hésitez pas à nous contacter pour une recherche personnalisée.
75018 Paris - Marx Dormoy
Prix net vendeur
Loyer HT
Pas de porte
Droit au bail
Button Text
Nouveauté
Location Pure -
VL2-6426
Local Commercial | 378m² | Nation
WALLPARTNERS vous propose un local commercial sur cour idéalement situé à proximité du Faubourg Saint Antoine, offrant une surface totale d'environ 378 m² sur 2 plateau plateau donnant sur une cour privative de 80m2 comprenant : * un rez-de-chaussée de 178 m², * un premier étage , accessible directement depuis le local, d’environ 200 m². Le local est équipé d’un point d’eau et de sanitaires. Emplacement stratégique, idéal pour une activité de service ou toute autre activité commerciale. Nombreuses enseignes dynamiques à proximité. Vous êtes à la recherche d’un local commercial, d’une boutique, de bureaux ou d’un restaurant ? WALLPARTNERS, dispose d’un portefeuille de plus de 1 200 biens commerciaux disponibles à la location. N’hésitez pas à nous contacter pour une recherche personnalisée.
75011 Paris - Nation
Prix net vendeur
Loyer HT
Pas de porte
Droit au bail
Button Text
Nouveauté
Location Pure -
VL2-6424
Local Commercial | 96m² | Nation
WALLPARTNERS vous propose un local commercial sur cour idéalement situé à proximité du Faubourg Saint Antoine, offrant une surface totale d'environ 96m² sur un seul plateau donnant sur une cour de 80m2. Sanitaires et points d'eau présents dans le local. Toutes activités autorisées, sauf restauration nécessitant un conduit d'extraction. Le local est équipé d’un point d’eau et de sanitaires. Emplacement stratégique, idéal pour une activité de restauration rapide sans extraction ou toute autre activité commerciale. Nombreuses enseignes dynamiques à proximité. Vous êtes à la recherche d’un local commercial, d’une boutique, de bureaux ou d’un restaurant ? WALLPARTNERS, dispose d’un portefeuille de plus de 1 200 biens commerciaux disponibles à la location. N’hésitez pas à nous contacter pour une recherche personnalisée.
75011 Paris - Nation
Prix net vendeur
Loyer HT
Pas de porte
Droit au bail
Button Text
Nouveauté
Location Pure -
VL2-6421
Local Commercial | 73m² | Nation
WALL PARTNERS vous propose un local commercial situé rue de Montreuil, d’une surface totale d’environ 78 m² au rez-de-chaussée. Le local est équipé d’un point d’eau et de sanitaires. Emplacement stratégique, idéal pour une activité de service ou toute autre activité commerciale. Nombreuses enseignes dynamiques à proximité. Vous êtes à la recherche d’un local commercial, d’une boutique, de bureaux ou d’un restaurant ? WALLPARTNERS, dispose d’un portefeuille de plus de 1 200 biens commerciaux disponibles à la location. N’hésitez pas à nous contacter pour une recherche personnalisée.
75011 Paris - Nation
Prix net vendeur
Loyer HT
Pas de porte
Droit au bail
Button Text
Nouveauté
Vente - LIB
VL2-6420
Local Commercial | 280m² | Étienne Marcel
WALL PARTNERS vous propose un local commercial en fond de cour idéalement situé à proximité immédiate du métro Étienne Marcel, d’une surface totale d’environ 280m², comprenant : * un rez-de-chaussée de 200m², * un appartement divisible au premier étage, accessible directement depuis la boutique, d’environ 80m². Le local est équipé d’un point d’eau et de sanitaires. Emplacement stratégique, idéal pour une activité de showroom ou toute autre activité commerciale. Nombreuses enseignes dynamiques à proximité. Vous êtes à la recherche d’un local commercial, d’une boutique, de bureaux ou d’un restaurant ? WALLPARTNERS, dispose d’un portefeuille de plus de 1 200 biens commerciaux disponibles à la location. N’hésitez pas à nous contacter pour une recherche personnalisée.
75003 Paris - Étienne Marcel
Prix net vendeur
Loyer HT
Pas de porte
Droit au bail
Button Text
Nouveauté
Vente - LIB
VL2-6419
Local Commercial | 250m² | Centre Ville de Clamart
WALL PARTNERS vous propose un local commercial idéalement situé à proximité immédiate de la Mairie de Clamart, d’une surface totale d’environ 250m², comprenant : * un rez-de-chaussée de 180m², * un sous-sol, accessible directement depuis la boutique, d’environ 70m². Le local est équipé d’un point d’eau et de sanitaires. Emplacement stratégique, idéal pour une activité de cabinet médical/dentaire ou toute autre activité commerciale. Nombreuses enseignes dynamiques à proximité. Vous êtes à la recherche d’un local commercial, d’une boutique, de bureaux ou d’un restaurant ? WALLPARTNERS, dispose d’un portefeuille de plus de 1 200 biens commerciaux disponibles à la location. N’hésitez pas à nous contacter pour une recherche personnalisée.
92140 Clamart - Centre Ville de Clamart
Prix net vendeur
Loyer HT
Pas de porte
Droit au bail
Button Text
Nouveauté
Location Pure -
VL2-6418
Local Commercial | 132m² | Chaussée d'Antin - La Fayette
WALL PARTNERS vous propose un local commercial idéalement situé à proximité immédiate des Galeries Lafayette, sur une rue commerçante, d’une surface totale d’environ 132m², comprenant : * un rez-de-chaussée de 32m², * un étage exploitable, accessible directement depuis la boutique, d’environ 100m². Le local est équipé d’un point d’eau et de sanitaires. Emplacement stratégique, idéal pour une activité de prêt a porter, optique, esthétique, restauration sans extraction, ou toute autre activité commerciale. Nombreuses enseignes dynamiques à proximité. Vous êtes à la recherche d’un local commercial, d’une boutique, de bureaux ou d’un restaurant ? WALLPARTNERS, dispose d’un portefeuille de plus de 1 200 biens commerciaux disponibles à la location. N’hésitez pas à nous contacter pour une recherche personnalisée.
75009 Paris - Chaussée d'Antin - La Fayette
Prix net vendeur
Loyer HT
Pas de porte
Droit au bail
Button Text
Prix net vendeur
Droit au bail
Loyer HT
Droit d'entrée

Contactez notre agence

Réf: VL2-719

Appelez ce numéro pour joindre notre agence:

+33 1 84 79 73 73

Nos conseillers sont à votre écoute

Suivez-nous sur nos réseaux